**Standout Features:**
- Newly constructed, 4 double-bedroom mid-terrace town house
- High-efficiency Bosch air source heat pump with underfloor heating
- Modern open-plan kitchen/dining area and separate study
- Stunning countryside views and large windows throughout
- Off-road parking for 2 cars
- Generous garden space with limestone patio
- Located in the exclusive Wisteria Court development with only 9 homes
**Summary:**
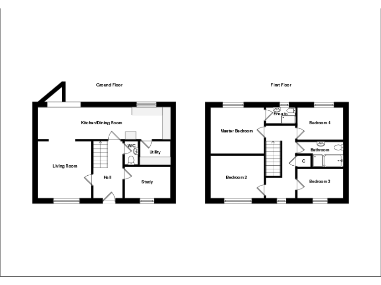
Discover the perfect blend of modern living and countryside charm in this newly constructed 4-bedroom town house at Wisteria Court, nestled in the picturesque village of Washford, Somerset. Designed by the award-winning Tregenna Group, this home boasts exceptional energy efficiency with a predicted rating of 'A', thanks to its Bosch air source heat pump and underfloor heating. Spanning approximately 1580 sq ft, you will enjoy spacious living with a refined open-plan kitchen and dining area, a separate study ideal for remote work, and a cozy living room that showcases stunning rural views.
The thoughtful layout offers a master suite with ensuite, three additional double bedrooms, and a stylish family bathroom, making it an excellent choice for families. Outside, a generous garden with a limestone patio provides an inviting outdoor space for relaxation or entertainment. With off-road parking for two cars, this chain-free property allows you to move in right away. Don't miss the opportunity to own a piece of exclusive, sustainable living in this well-connected community. Act quickly, as homes of this caliber are sure to attract interest!
4 bedroom end of terrace house for sale in Wisteria Court, Washford, TA23 — £390,000 • 4 bed • 2 bath • 1580 ft²
3 bedroom detached house for sale in Old Nursery Court, Washford TA23 — £499,950 • 3 bed • 3 bath • 1800 ft²
3 bedroom detached bungalow for sale in Old Nursery Court, TA23 — £450,000 • 3 bed • 3 bath • 1800 ft²
4 bedroom town house for sale in Old Nursery Court, Washford, TA23 — £399,000 • 4 bed • 3 bath • 1570 ft²
4 bedroom detached house for sale in Abbey Road, Washford, Watchet, Somerset, TA23 — £649,000 • 4 bed • 4 bath • 2000 ft²
4 bedroom terraced house for sale in Washford, Watchet, TA23 — £325,000 • 4 bed • 2 bath • 1162 ft²






























































