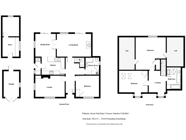
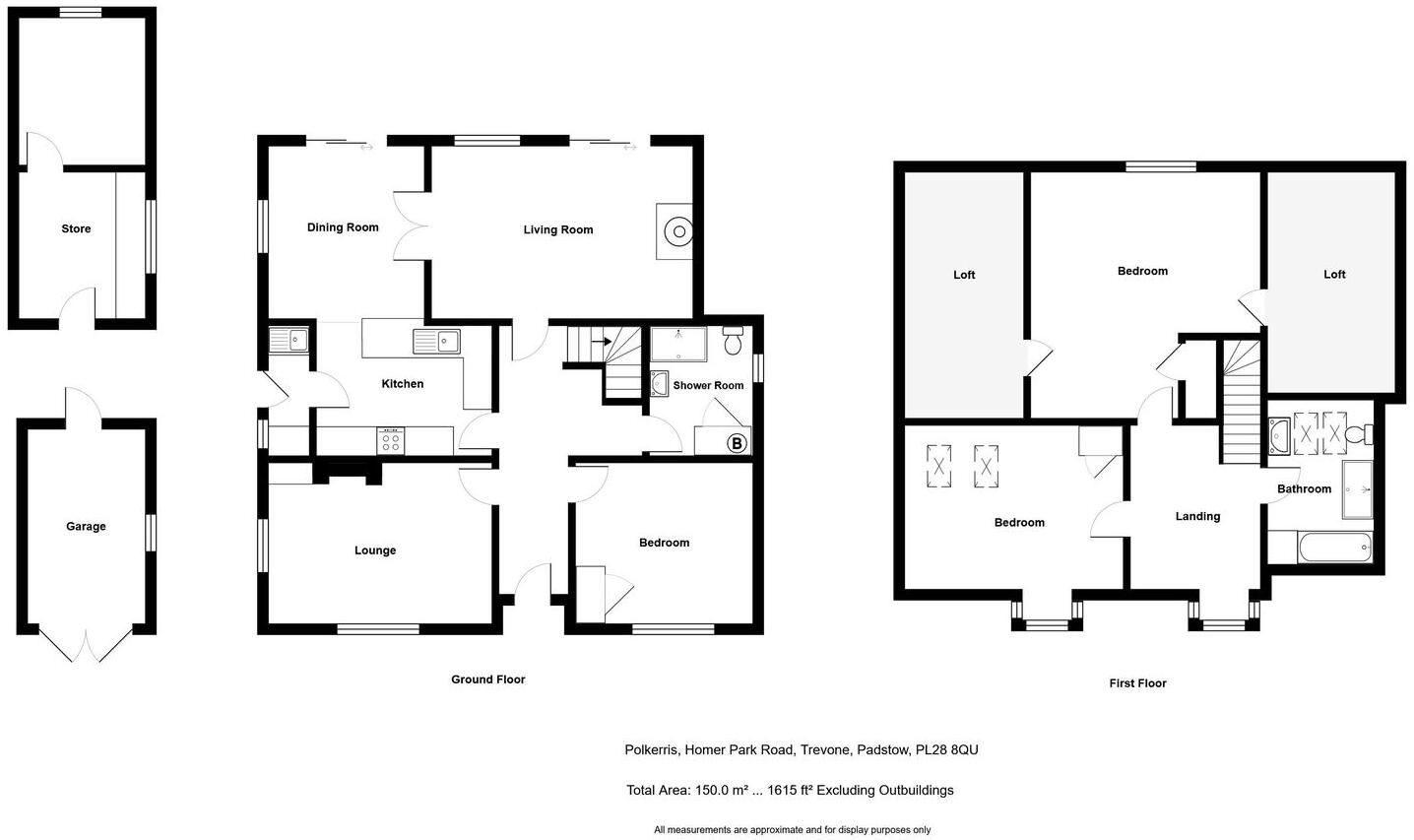
**Standout Features:**
- Prime location just 400 meters from the beach
- Spacious 3/4 bedroom layout with flexible living options
- 5.4m lounge with wood burner and separate dining room
- Modern, well-fitted kitchen with built-in appliances
- Impressive private west-facing gardens with patio and mature borders
- Driveway and garage for convenient parking
- Chain-free and ready to move in
**Overview:**
Nestled within a sought-after coastal village, this beautifully designed detached home is a rare gem that's hit the market for the first time in 14 years. Ideal for families and beach lovers alike, Polkerris features a spacious 5.4m lounge with a cozy wood burner, flowing seamlessly into a light-filled dining room and a superbly appointed kitchen. The flexible layout offers three double bedrooms and an option for a fourth, making it perfect for accommodating guests or creating a quiet home office.
Embrace the outdoor lifestyle with generous west-facing gardens, perfect for sun-soaked afternoons or entertaining friends. The property boasts low crime rates and easy access to beaches, shops, and a selection of excellent restaurants in nearby Padstow. With its fast broadband and proximity to notable schools, this home is not just a property—it's a community lifestyle that beckons you to enjoy the seaside charm. The opportunity to own this home, beautifully positioned and ready to enjoy, won't last long! Schedule your viewing today to secure your slice of coastal paradise.
4 bedroom detached house for sale in Trevone, PL28 — £1,050,000 • 4 bed • 3 bath • 2379 ft²
6 bedroom detached house for sale in Bay Road, Trevone, PL28 — £1,500,000 • 6 bed • 4 bath • 1405 ft²
4 bedroom detached house for sale in Trevone Bay, Padstow, Cornwall, PL28 — £895,000 • 4 bed • 3 bath • 1706 ft²
4 bedroom detached house for sale in St Merryn, PL28 — £1,495,000 • 4 bed • 3 bath • 3392 ft²
4 bedroom detached bungalow for sale in Polzeath, PL27 — £1,000,000 • 4 bed • 2 bath • 1072 ft²
6 bedroom bungalow for sale in Polzeath, Wadebridge, PL27 — £1,000,000 • 6 bed • 3 bath • 2652 ft²






































































































































