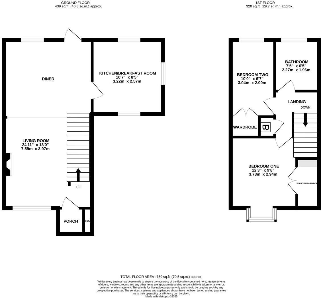
- Two bedrooms with built-in wardrobes
- Large open-plan lounge/diner and good-sized kitchen
- Rear garden with patio, shed; small plot
- Off-road parking plus attached garage
- Single family bathroom (shower only)
- Dated interior; will need modernization
- Double glazing pre-2002; partial wall insulation assumed
- Freehold; approx 759 sq ft, late-1970s build
This two-bedroom end-terrace in Highworth offers a practical, move-in-ready layout for first-time buyers or young couples. The ground floor features a large open-plan living/dining room that flows from an entrance porch, while a good-sized kitchen/breakfast room provides everyday usability. Upstairs are two bedrooms with built-in wardrobes and a single family bathroom with a shower. The property is freehold and measures approximately 759 sq ft.
Outside there is a small rear garden with a paved patio and shed, plus off-road parking and an attached garage — useful for storage or a workshop. The front overlooks a pleasant green with mature trees, in a quiet suburban setting with very low crime and nearby good-rated primary schools. Broadband speeds are average but mobile signal is excellent.
The house dates from the late 1970s–early 1980s, has cavity walls with partial insulation and double glazing fitted before 2002. These features help with comfort but also mean some energy-efficiency improvements (glazing, insulation, possible heating tuning) could be worthwhile. The interior shows mid-20th-century fittings and will benefit from modernization to suit contemporary tastes.
Overall, this property represents an affordable entry into a popular, affluent area on the Swindon fringe. It’s best for buyers willing to refresh décor and update some elements to increase value and efficiency, while enjoying a practical layout, garage and private parking.











































