Contemporary village family home with energy‑efficient systems and garage workspace.
Exclusive four‑house cul‑de‑sac, only two plots remaining
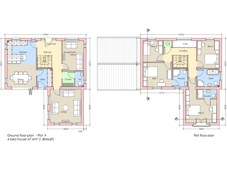
This barn‑style detached home sits in an exclusive four‑house cul‑de‑sac in Willoughby on the Wolds, newly built and finished to a high specification. The layout suits families wanting flexible space: a vaulted entrance, living room, study/snug, open plan living/dining kitchen with Smeg appliances, utility and four first‑floor bedrooms — two with en‑suites. An open double garage with storage/home office above, additional parking and a landscaped rear garden complete the plot.
Energy‑efficient features include an air‑source heat pump, ground‑floor underfloor heating, aluminium triple glazed doors and windows, and an EV charging point. The property is sold with a ten‑year Protek structural warranty and was recently re‑offered with over £10,000 of extras commissioned for the prior purchaser, now included.
Practical considerations are clear and factual: the rear garden is private but modest relative to the very large overall plot description, and the front forecourt and driveway are small to average. Energy Performance and council tax bandings are pending. This is a new build — buyers should expect typical snagging items during early occupation and confirm finishes on site inspection.
Positioned close to village amenities and well‑rated local schools, with good road links to Nottingham, Loughborough and the A46, the house appeals to families seeking a contemporary home in an affluent village setting, with low running costs and modern technology already fitted.
4 bedroom detached house for sale in Harding Close, Willoughby on the Wolds, LE12 — £600,000 • 4 bed • 2 bath • 1804 ft²
4 bedroom detached house for sale in 3 Harding Close, Willoughby on the Wolds, Loughborough, LE12 — £645,000 • 4 bed • 3 bath • 1804 ft²
4 bedroom detached house for sale in Horseshoe Close, Willoughby on the Wolds, LE12 — £499,950 • 4 bed • 3 bath • 1658 ft²
5 bedroom detached house for sale in West Thorpe, Willoughby on the Wolds, LE12 — £1,169,950 • 5 bed • 4 bath • 3381 ft²
5 bedroom detached house for sale in Main Street, Willoughby On The Wolds, Loughborough, LE12 — £795,000 • 5 bed • 3 bath • 2400 ft²
4 bedroom detached house for sale in Scalford Road, Eastwell, LE14 — £925,000 • 4 bed • 3 bath • 3100 ft²










































































































