S35 3HU - 4 bedroom semidetached house for sale in Mortomley Lane, Hi…

View on Property Piper

4 bedroom semi-detached house for sale in Mortomley Lane, High Green, S35

Summary - 146 MORTOMLEY LANE HIGH GREEN SHEFFIELD S35 3HU

4 bed 1 bath Semi-Detached

Character-rich, renovated 4-bed family home with parking and easy M1 access.
Recently fully renovated to a high standard
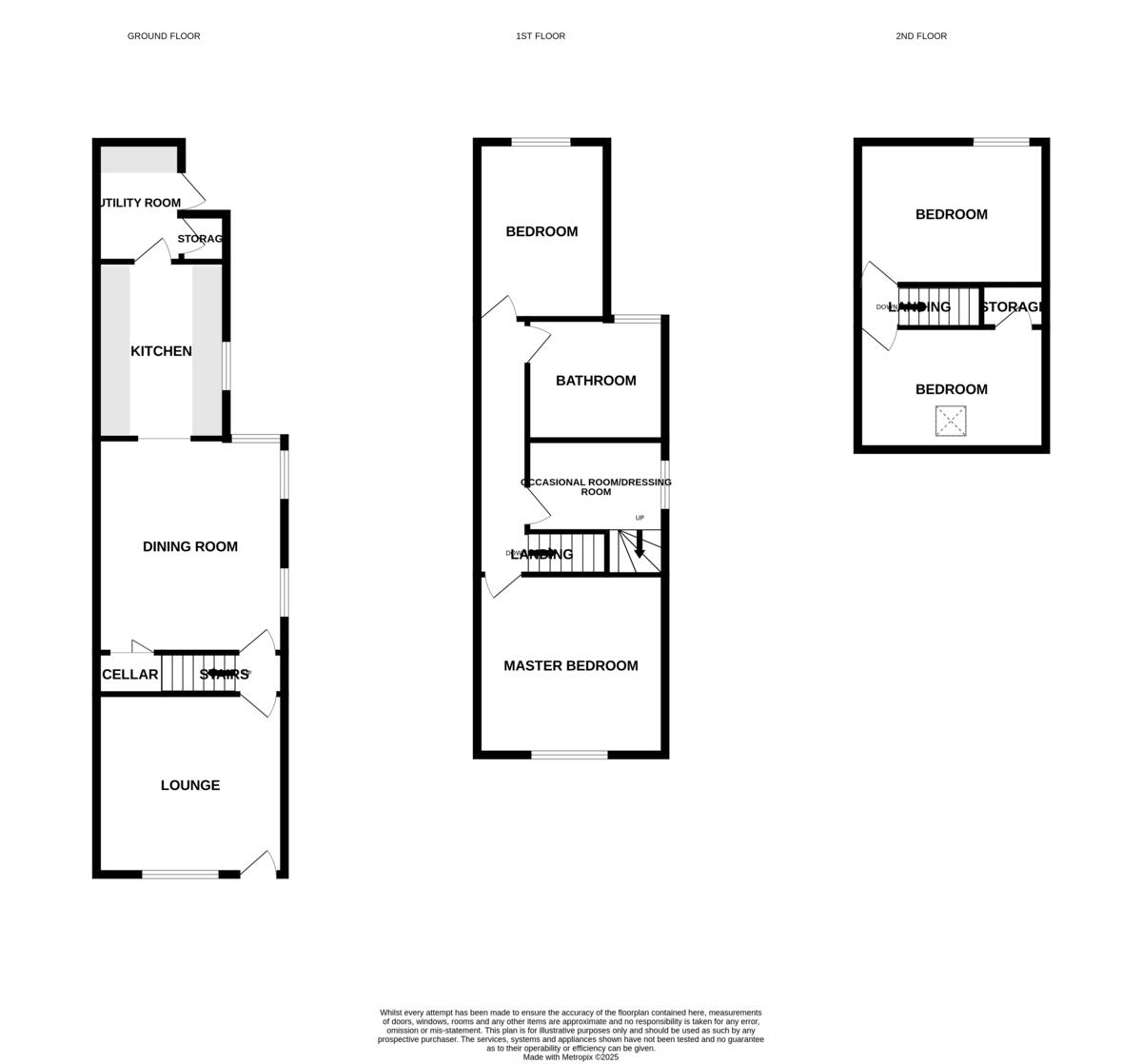
Recently renovated throughout, this Victorian semi-detached house on Mortomley Lane blends period character with contemporary finishes across three floors. The ground floor offers a welcoming lounge, separate dining room and a modern, well-equipped kitchen with rear porch/utility and useful storage — a practical layout for family life.

Bedrooms are arranged over the first and second floors: a master and second bedroom beside a family bathroom on the first floor, with two further bedrooms on the top floor offering flexible space for children, guests or a home office. The property benefits from double glazing, mains gas central heating and a compact but attractive rear garden with patio for outdoor relaxing or entertaining.

Practical advantages include off-street parking accessed via a private lane, freehold tenure and strong local conveniences — schools, leisure centre, shops and bus links are all within walking distance, and the M1 is easily reached. The area provides good mobile and broadband connectivity, useful for remote working and family routines.

Important considerations: the home sits in a neighbourhood with higher crime and significant area deprivation, and the plot is small. The building’s cavity walls are assumed uninsulated, which could mean further insulation work to improve energy efficiency. There is a single family bathroom serving four bedrooms. These are factual points to weigh against the property’s recent high-standard renovation and commuter-friendly location.

Property Details

Image Descriptions

Floorplan Description

Rooms

Textual Property Features

Target Audience

AI Tags

Detected Visual Features

EPC Details

Nearby Schools

Nearest Bars And Restaurants

,,,,}

Nearest General Shops

,,}

Nearest Grocery shops

,,}

Nearest Supermarkets

,,}

Nearest Religious buildings

,,}

Nearest Medical buildings

,,,}

Nearest Leisure Facilities

,,,,}

Nearest Tourist attractions

,,}

Nearest Train stations

,,,,}

Nearest Bus stations and stops

,,,,}

Nearest Hotels

,,}

Tags

Local Market Stats

Similar Properties

Meta

High Res Images

Compatible Images

Low res Images

Thumbnails

Raw Images

High Res Floorplan Images

Compatible Floorplan Images

Low res Floorplan Images

FloorplanImages Thumbnail

Raw Floorplan Images