Period mid-terrace with garden — great starter home, needs some maintenance and insulation work.
Freehold Edwardian mid-terrace with bay windows
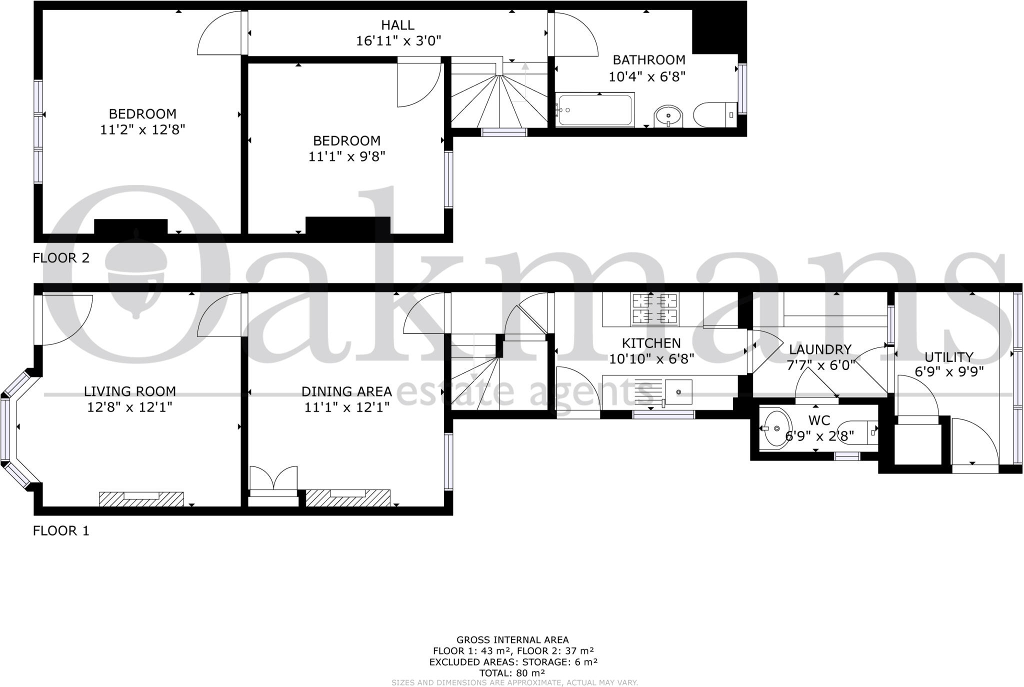
A classic Edwardian mid-terrace offered as a two-bedroom starter or investment in Bearwood. The house has period bay windows, a private rear garden and an 861 sq ft layout across two storeys, with gas central heating, double glazing and fast fibre broadband — useful for working from home. Several highly rated primary and secondary schools are within easy reach.
The property is freehold and presented as move-in ready in parts, with a practical ground-floor layout including lounge, dining room, kitchen, utility/laundry area and downstairs WC. The accommodation will suit first-time buyers or a small family wanting local amenities and good transport links in a major conurbation.
Buyers should note this is an older, solid-brick house (constructed 1900–1929) with assumed no cavity wall insulation; the EPC is currently D. Image notes flag possible roof maintenance and occasional damp risk in places, and the property will benefit from targeted updating and energy-efficiency improvements to reduce running costs. On-street parking only. The wider area shows higher deprivation and a mixed urban cultural community — good for access to shops and services but something to consider for long-term resale or letting strategy.
2 bedroom terraced house for sale in Abbey Road, Bearwood, B67 — £200,000 • 2 bed • 1 bath
2 bedroom terraced house for sale in Loxley Road, Bearwood, West Midlands, B67 — £275,000 • 2 bed • 1 bath • 937 ft²
3 bedroom terraced house for sale in Pargeter Road, Bearwood, B67 — £275,000 • 3 bed • 1 bath • 1152 ft²
2 bedroom terraced house for sale in Gladys Road, Smethwick, West Midlands, B67 — £180,000 • 2 bed • 1 bath • 725 ft²
2 bedroom terraced house for sale in Katherine Road, Bearwood, West Midlands, B67 — £205,000 • 2 bed • 1 bath
2 bedroom terraced house for sale in Reginald Road, Bearwood, B67 — £210,000 • 2 bed • 1 bath


















































































