**Standout Features:**
- Modern two-bedroom townhouse, freehold
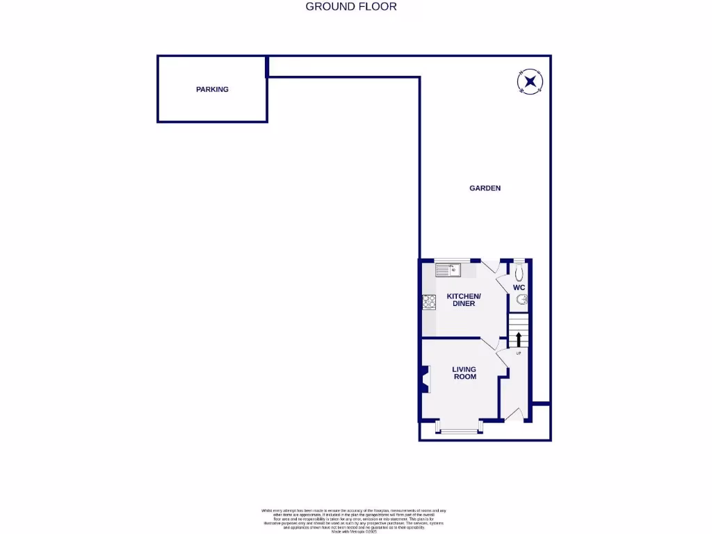
- Allocated off-street parking space
- Private garden with rear access
- Close proximity to York city centre and train station
- Ground floor WC and contemporary fitted kitchen
- Potential for rear extension, subject to planning permissions
- EPC rating: C
This modern, two-bedroom townhouse in the sought-after Holgate area is perfect for first-time buyers and investors alike. The well-presented interior features a spacious living room that invites natural light, a contemporary kitchen with integrated appliances, and a convenient ground floor WC. Upstairs, you'll find two generously sized bedrooms and a modern family bathroom, making this property comfortable and functional.
Step outside to discover a private, fully enclosed garden—ideal for relaxation or entertaining—with side access and the unique advantage of an allocated off-street parking space. The property is strategically located near York city centre and the train station, offering excellent transport links and local amenities, along with reputable schools nearby. With the potential for future renovations or extensions, this compact yet appealing townhouse is a must-see. Don’t miss out on the opportunity to make it your own!
3 bedroom town house for sale in Lindsey Avenue, York, YO26 — £235,000 • 3 bed • 1 bath • 814 ft²
3 bedroom town house for sale in Holly Bank Close, York, YO24 — £325,000 • 3 bed • 2 bath • 912 ft²
2 bedroom town house for sale in St. Pauls Mews, York, YO24 — £240,000 • 2 bed • 1 bath • 684 ft²
2 bedroom terraced house for sale in Hamilton Drive, York, YO24 — £250,000 • 2 bed • 1 bath • 754 ft²
2 bedroom terraced house for sale in Howe Hill Road, Holgate, York, YO26 4SW, YO26 — £290,000 • 2 bed • 1 bath • 821 ft²
2 bedroom terraced house for sale in St. Pauls Mews, York, YO24 — £240,000 • 2 bed • 1 bath • 653 ft²


































































