EH49 6QW - 8 bedroom detached house for sale in Preston House, Preston…

View on Property Piper

8 bedroom detached house for sale in Preston House, Preston Road, Linlithgow, West Lothian, EH49

Summary - Preston House EH49 6QW

8 bed 8 bath Detached

**Standout Features:**
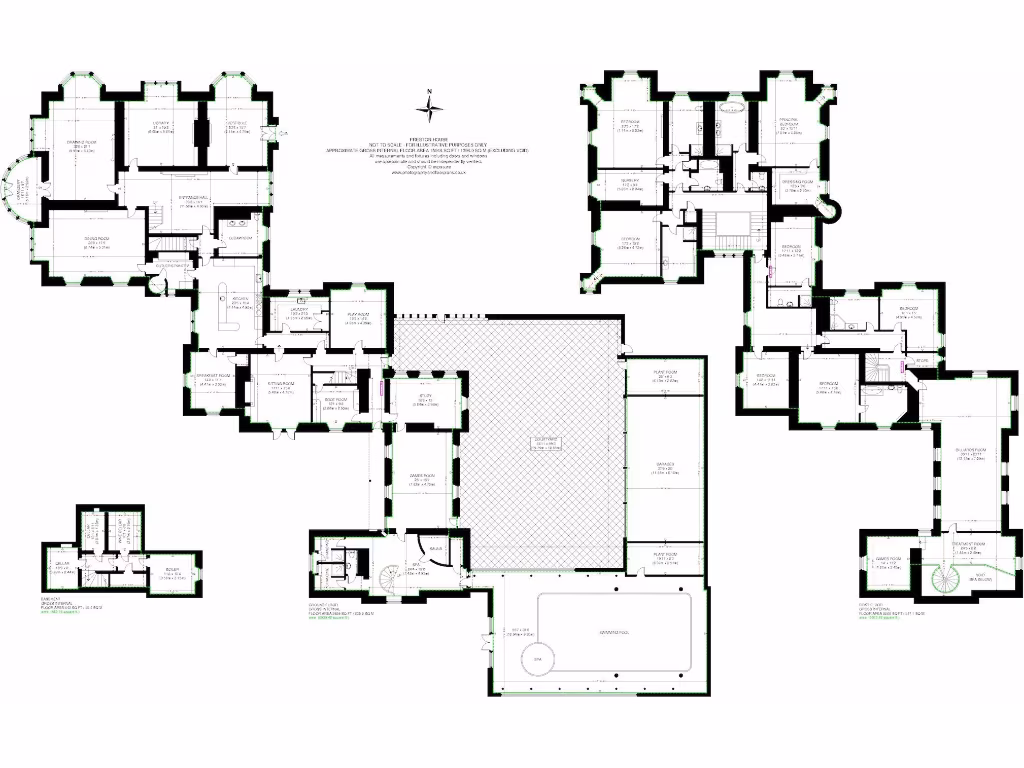
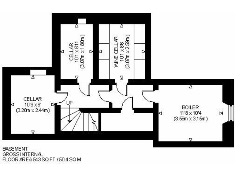
- **Size**: Expansive 15,048 sq ft, with a total of 17 rooms, including 8 bedrooms and 8 bathrooms.
- **Architecture**: Stunning Victorian Gothic Revival design with turrets and ornate stonework.
- **Grounds**: Approximately 4 acres of beautifully landscaped gardens featuring a fountain, outdoor living spaces, and a summer pavilion.
- **Luxury Amenities**: Indoor swimming pool, leisure and wellness suite, gym, games room, and butler's pantry.
- **Parking**: Five-car garage with electric gates.

Located in the charming town of Linlithgow, Preston House is a meticulously restored Scots Baronial mansion that combines opulent contemporary living with striking historical architecture. Set within a sprawling 4-acre estate, this stunning property features high ceilings, luxurious spaces, and beautiful views of the surrounding countryside and distant hills.

The interior offers an abundance of leisure options including a gym, games room, and a wellness suite with an indoor pool, catering well to families or those who love to entertain. The lush gardens provide a private retreat, while the grand entrance and sweeping driveway enhance the estate's exclusivity.

However, potential buyers should take note of the property's EPC rating of Band E which may necessitate some sustainability upgrades, and the slow broadband speeds could affect connectivity for remote work or digital entertainment. Overall, this mansion promises not just a home, but a lifestyle—ideal for those seeking serenity in an affluent rural setting. Don’t miss your chance to experience luxurious living in this remarkable property!

Property Details

Brochure Descriptions

Image Descriptions

Floorplan Description

Rooms

Textual Property Features

Detected Visual Features

Nearest Bars And Restaurants

,,,,}

Nearest General Shops

,,}

Nearest Grocery shops

,,}

Nearest Supermarkets

,,}

Nearest Religious buildings

,,}

Nearest Medical buildings

,,,}

Nearest Airports

}

Nearest Leisure Facilities

,,,,}

Nearest Tourist attractions

,,}

Nearest Train stations

,,,,}

Nearest Bus stations and stops

,,,,}

Nearest Hotels

,,}

Tags

Local Market Stats

Similar Properties

Meta

High Res Images

Compatible Images

Low res Images

Thumbnails

Raw Images

High Res Floorplan Images

Compatible Floorplan Images

Low res Floorplan Images

FloorplanImages Thumbnail

Raw Floorplan Images