Affordable three-bedroom terrace with garden, parking and good transport links for first-time buyers..
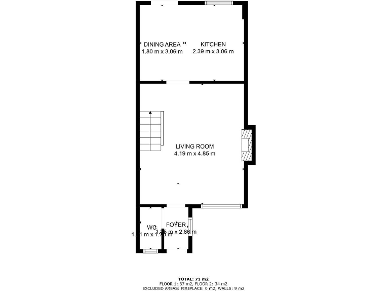
- Three bedrooms in a compact 764 sq ft end-terrace
- Rear lawned garden with patio and brick-walled driveway
- Off-street parking included
- Close to shops, bus routes and primary schools
- Single family bathroom only
- Local area: very deprived with above-average crime levels
- Several nearby primary schools rated "Requires improvement"
- Tenure unknown — ensure confirmation before exchange
This three-bedroom end-of-terrace offers an affordable entry into Liverpool at a competitive price of £145,000. At about 764 sq ft the house is a compact, practical family starter with a welcoming lounge, a modern-feeling kitchen/diner and a rear lawned garden with patio — useful for outdoor space in a small plot. Off-street parking and good local transport links make day-to-day life straightforward.
The layout suits first-time buyers or young families seeking a manageable home that can be improved over time. Bedrooms are comfortable rather than large, and the single family bathroom keeps maintenance simple. The property has mid-20th-century brick character and standard ceiling heights; it looks well maintained externally but will benefit from selective updating inside to personalise and add value.
Buyers should note material local factors plainly: the area is marked by high deprivation and above-average crime, and several nearby primary schools have Ofsted ratings of "Requires improvement" (though some local secondaries are rated Good). Tenure is unknown and should be confirmed early in the process. Overall, this is a pragmatic purchase for someone prioritising location, transport and scope to add value over time rather than a finished, high-spec home.
3 bedroom terraced house for sale in Glade Road, Liverpool, Merseyside, L36 — £140,000 • 3 bed • 1 bath • 1741 ft²
3 bedroom end of terrace house for sale in Chilcott Road, Liverpool, Merseyside, L14 — £170,000 • 3 bed • 1 bath • 934 ft²
3 bedroom end of terrace house for sale in Longreach Road, Liverpool, L14 — £160,000 • 3 bed • 1 bath • 793 ft²
3 bedroom end of terrace house for sale in Wellfarm Close, Liverpool, L9 — £150,000 • 3 bed • 1 bath • 796 ft²
3 bedroom end of terrace house for sale in Hollingbourne Road, Liverpool, Merseyside, L11 — £160,000 • 3 bed • 1 bath • 730 ft²
3 bedroom end of terrace house for sale in Wade Brook Way, Liverpool, Merseyside, L24 — £220,000 • 3 bed • 2 bath • 804 ft²






























































































