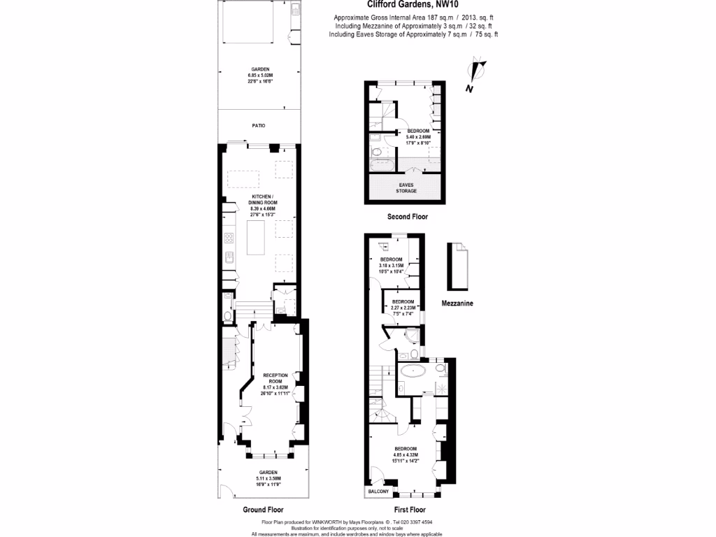
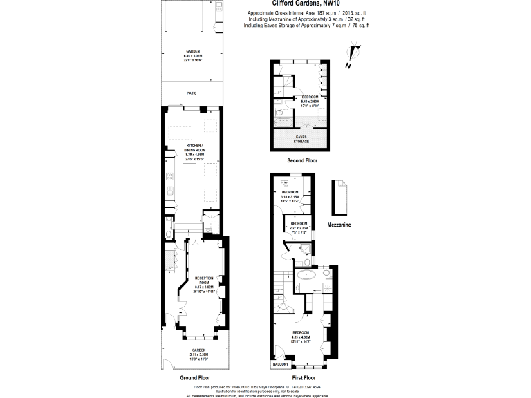
**Standout Features:**
- Newly renovated, four-bedroom Victorian home with back-to-brick transformation
- Spacious 2013 sq ft layout with high ceilings
- Impressive contemporary kitchen/diner with skylight and direct garden access
- Luxury master suite and two modern bathrooms
- Smart technology features including underfloor heating and advanced security systems
- Professionally landscaped garden with built-in BBQ and outdoor kitchen
- Ideal location in the affluent Kensal Rise area, near excellent schools and transport links
This stunning, fully extended Victorian family home offers an exceptional blend of modern luxury and timeless charm, spanning 2013 square feet. Every aspect of the back-to-brick renovation showcases meticulous attention to detail, particularly in the expansive kitchen/diner designed for entertaining, complete with a skylight and large bi-folding doors that open onto a serene, professionally landscaped garden—perfect for outdoor gatherings. The property also features a luxurious master suite and two stylish bathrooms, coupled with smart home technology for comfort and protection.
Located in the sought-after Kensal Rise, this property provides access to a vibrant community replete with local amenities, parks, and dining options, making it a fitting choice for families and professionals alike. Excellent transport links to Central London via nearby stations make commuting a breeze, and top-rated schools, including Princess Frederica's and Ark Franklin Academy, are just a stone's throw away. This exceptional property defines modern living in an idyllic setting—don’t miss out on the chance to call it home!
4 bedroom house for sale in Clifford Gardens, Kensal Rise, NW10 — £1,785,000 • 4 bed • 3 bath • 1947 ft²
5 bedroom terraced house for sale in Clifford Gardens, Kensal Rise, London NW10 — £1,500,000 • 5 bed • 3 bath • 2105 ft²
3 bedroom terraced house for sale in Holberton Gardens, London, NW10 — £950,000 • 3 bed • 2 bath • 1121 ft²
4 bedroom terraced house for sale in College Road, London, NW10 — £1,199,950 • 4 bed • 2 bath • 1476 ft²
5 bedroom terraced house for sale in Buchanan Gardens, London, NW10 — £1,875,000 • 5 bed • 2 bath • 2010 ft²
5 bedroom house for sale in St. Quintin Gardens, North Kensington, W10 — £4,000,000 • 5 bed • 3 bath • 3289 ft²


































































