Newly renovated two-bed basement flat with courtyard — proven holiday‑let income potential..
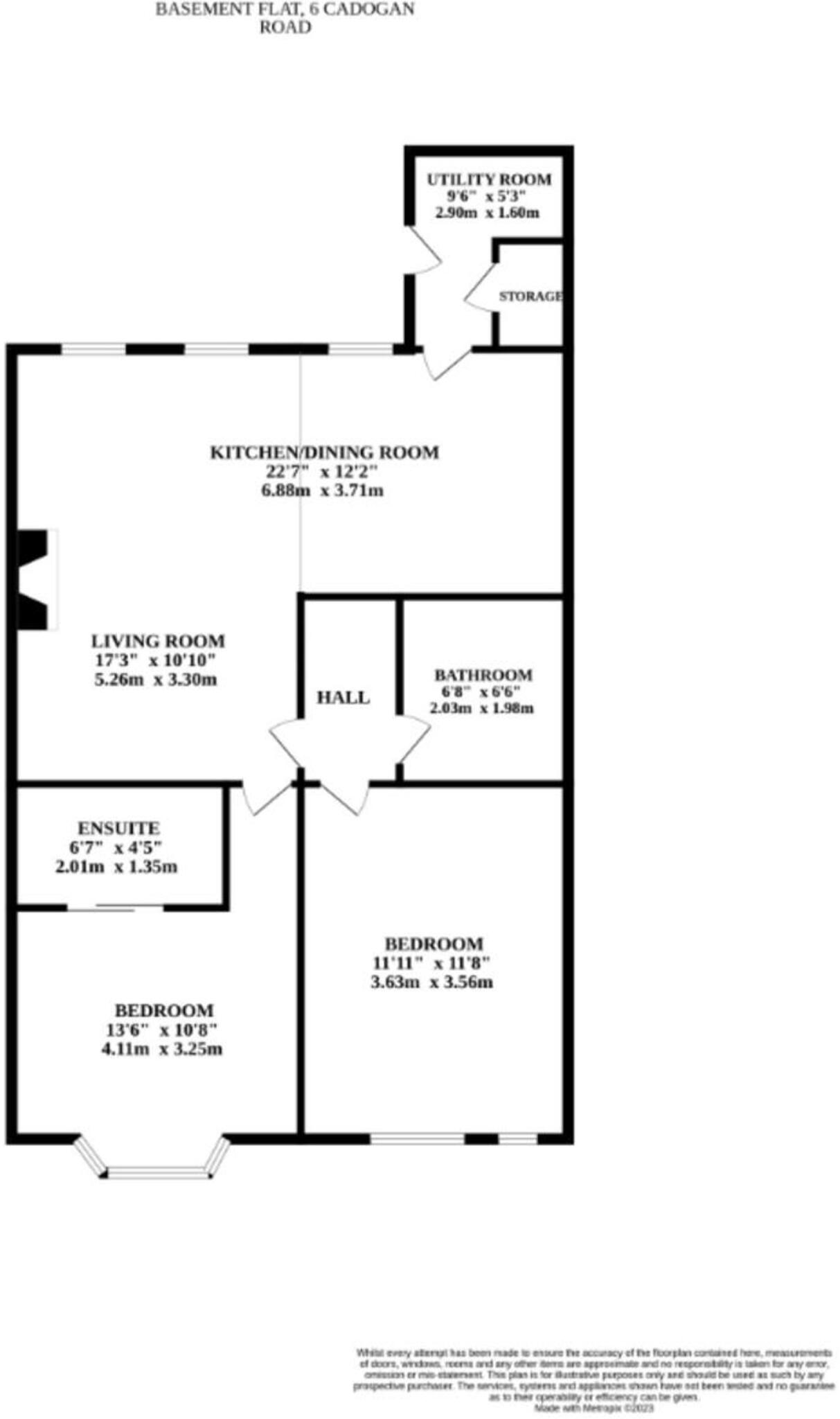
- Newly renovated two-bedroom basement apartment, circa 868 sq ft
- Open-plan kitchen, dining and living area with modern fixtures
- Master bedroom with private en suite shower room
- Private low-maintenance front courtyard, good for evening sun
- Currently successful holiday let; strong short-term income potential
- Leasehold with 997 years remaining; check any service charges
- On-street parking only; no private parking
- Local area: very deprived with above-average crime rates
Set in Cromer’s sought-after coastal town, this newly renovated two-bedroom basement apartment offers contemporary, low-maintenance living a short walk from the pier and town centre. The open-plan kitchen/dining/living space, modern fixtures and private courtyard make it attractive to holidaymakers and long-term tenants alike.
The layout includes a master bedroom with en suite, a second bedroom, separate shower room and a handy utility/storage area. At around 868 sq ft, the accommodation is well-proportioned for a two-bedroom apartment and benefits from mains gas central heating and an EPC rating of C.
Practical considerations: this is a leasehold property (997 years remaining) arranged as a basement flat with on-street parking only. The building conversion is recent, and the flat has been tastefully updated, but the immediate neighbourhood scores as very deprived with above-average crime — factors likely to influence rental demand and insurance costs.
For investors, the property’s proven holiday-let performance and seaside location present clear income potential. For owner-occupiers seeking a low-maintenance bolt-hole by the sea, the private courtyard and modern finish are strong positives. Prospective buyers should verify leasehold terms, running costs and local management arrangements before committing.
2 bedroom flat for sale in Cadogan Road, Cromer, NR27 — £195,000 • 2 bed • 1 bath • 678 ft²
3 bedroom flat for sale in Prince Of Wales Road, Westbourne House Prince Of Wales Road, NR27 — £260,000 • 3 bed • 2 bath • 1109 ft²
1 bedroom ground floor flat for sale in Prince Of Wales Road, Clevedon House Prince Of Wales Road, NR27 — £130,000 • 1 bed • 1 bath • 527 ft²
2 bedroom apartment for sale in Surrey Street, Surrey House, NR27 — £225,000 • 2 bed • 1 bath • 666 ft²
1 bedroom apartment for sale in Cabbell Road, Cromer, NR27 — £139,990 • 1 bed • 1 bath • 541 ft²
2 bedroom duplex for sale in Prince Of Wales Road, Cromer, NR27 — £135,000 • 2 bed • 2 bath • 764 ft²


































































































