Huge terrace, long lease and allocated parking close to top local schools.
Allocated off-street parking space included
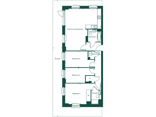
This three-bedroom, new-build apartment sits high in Azores House and is designed for modern urban living. A generous open-plan kitchen/living/dining room leads onto a substantial wrap-around terrace with broad city views — an unusual outdoor space for central London. The master bedroom includes a fitted wardrobe in an alcove and the home benefits from underfloor heating and integrated kitchen appliances.
Practical details that matter: the property is leasehold with a long remaining term (circa 950 years) and comes with an allocated off-street parking space. The floorplan is linear and roomy — total area is very large at approximately 2,659 sq ft — but the home has a single bathroom, which should be considered by families or sharers. The advertised service charge is £2,875 (average); buyers should confirm exact annual costs and what they cover.
This apartment will suit buyers seeking a roomy, low-maintenance new build with standout outdoor space and strong local amenities. It’s close to several well-regarded primary and secondary schools and benefits from good public transport links and nearby local shops, leisure and green space. Viewings will appeal to those who prioritise indoor-outdoor entertaining space and a long leasehold term.
Note: this description is based on provided specifications and marketing material. Prospective purchasers should verify service charge details, exact measurements, and any planning or management arrangements during due diligence.
3 bedroom apartment for sale in Clapham Park Marketing Suite,
107 Clarence Avenue,
London,
SW4 8FR, SW4 — £830,000 • 3 bed • 1 bath • 761 ft²
1 bedroom apartment for sale in Clapham Park Marketing Suite,
107 Clarence Avenue,
London,
SW4 8FR, SW4 — £517,500 • 1 bed • 1 bath • 516 ft²
2 bedroom apartment for sale in Clapham Park Marketing Suite,
107 Clarence Avenue,
London,
SW4 8FR, SW4 — £690,000 • 2 bed • 1 bath • 714 ft²
3 bedroom apartment for sale in Clapham Park Marketing Suite,
107 Clarence Avenue,
London,
SW4 8FR, SW4 — £790,000 • 3 bed • 1 bath • 761 ft²
1 bedroom apartment for sale in Clapham Park Marketing Suite,
107 Clarence Avenue,
London,
SW4 8FR, SW4 — £530,000 • 1 bed • 1 bath • 535 ft²
2 bedroom apartment for sale in Clapham Park Marketing Suite,
107 Clarence Avenue,
London,
SW4 8FR, SW4 — £680,000 • 2 bed • 1 bath • 715 ft²


























































































