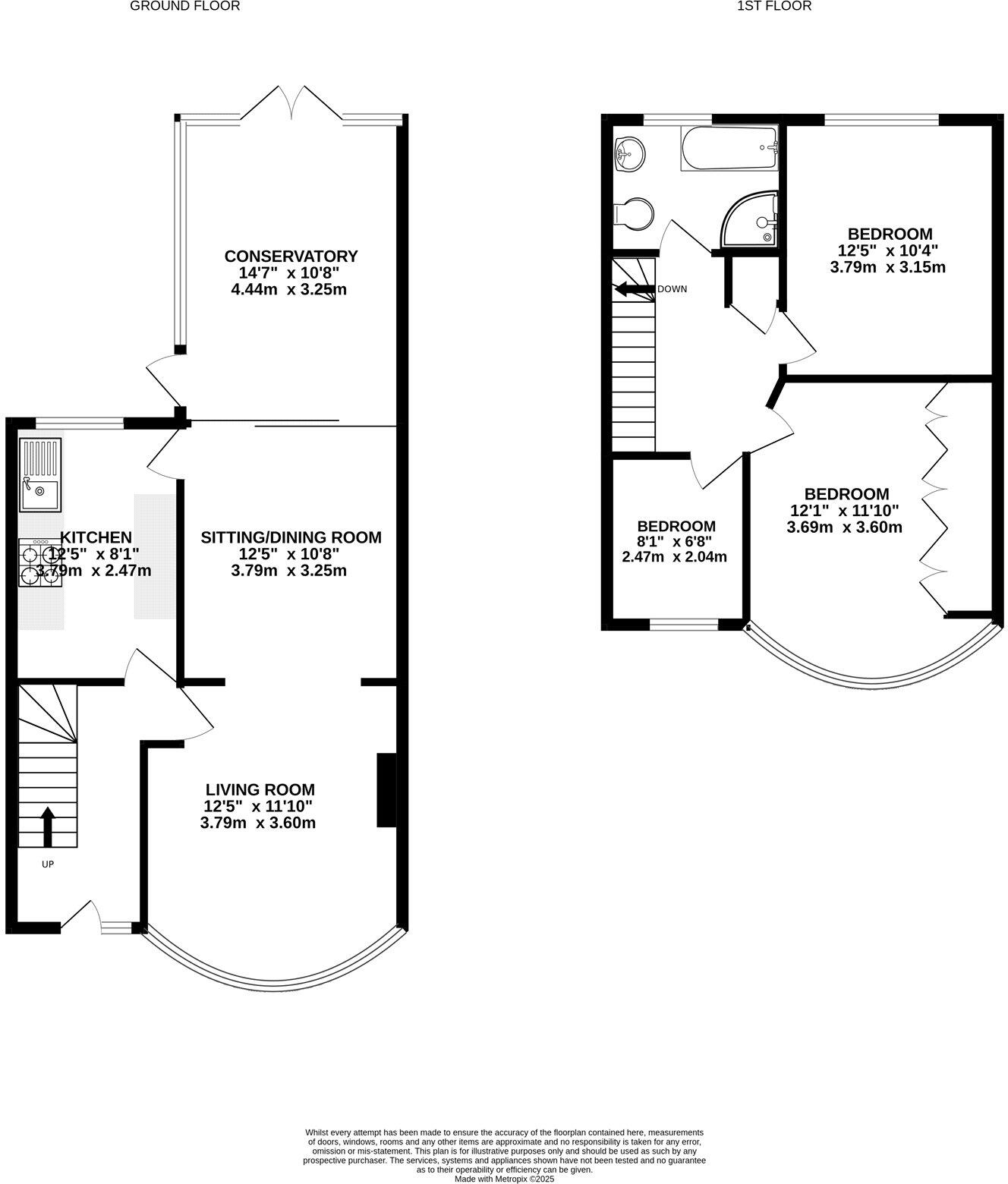
**Standout Features:**
- Three bedrooms with spacious layouts
- Conservatory with underfloor heating
- Modern, integrated kitchen
- Secluded, established rear garden with patio and greenhouse
- Driveway parking and garage
- New windows installed to the front
**Overview:**
Discover the perfect family home in this thoughtfully presented three-bedroom semi-detached property located on a desirable residential road. Enjoy the seamless flow of the open-plan reception area leading into a conservatory, ideal for both entertaining and relaxation, thanks to the underfloor heating. The modern kitchen boasts wood cabinets and black countertops, setting the stage for culinary creativity.
The property is surrounded by a picturesque garden, complete with established trees and shrubs, providing a private retreat after a long day. Additional highlights include driveway parking and a garage, enhancing convenience for families. Set just under a mile from the train station with direct links to London Waterloo and within walking distance to desirable schools, this home promises an excellent lifestyle for families.
While the property is in good condition, it's essential to note that its modest size may best suit smaller families or first-time buyers seeking a quiet, affluent community. Don't miss out on this charming home—schedule a viewing today and envision your family's future in this idyllic setting!
3 bedroom semi-detached house for sale in Elston Place, Aldershot, Hampshire, GU12 — £400,000 • 3 bed • 1 bath • 779 ft²
4 bedroom semi-detached house for sale in Gillian Avenue, Aldershot, Hampshire, GU12 — £500,000 • 4 bed • 2 bath • 1396 ft²
3 bedroom end of terrace house for sale in Wilson Road, Aldershot, Hampshire, GU12 — £375,000 • 3 bed • 2 bath • 650 ft²
3 bedroom semi-detached house for sale in Holly Road, Aldershot, Hampshire, GU12 — £400,000 • 3 bed • 1 bath • 1109 ft²
3 bedroom semi-detached house for sale in Roberts Road, Aldershot, Hampshire, GU12 — £300,000 • 3 bed • 1 bath • 672 ft²
3 bedroom terraced house for sale in Eddy Road, Aldershot, Hampshire, GU12 — £325,000 • 3 bed • 1 bath • 675 ft²














































































