**Standout Features:**
- New build in a gated community
- Corner plot with privacy and security
- High specification finishes
- Open plan kitchen/breakfast area with modern appliances
- Double garage and ample off-road parking
- Generous outdoor space with a rear garden
- Excellent access to local amenities and reputable schools
**Potential Downsides:**
- Broadband speeds are very slow
- Photos depict a show home; actual property may vary slightly in aesthetic
**Property Summary:**
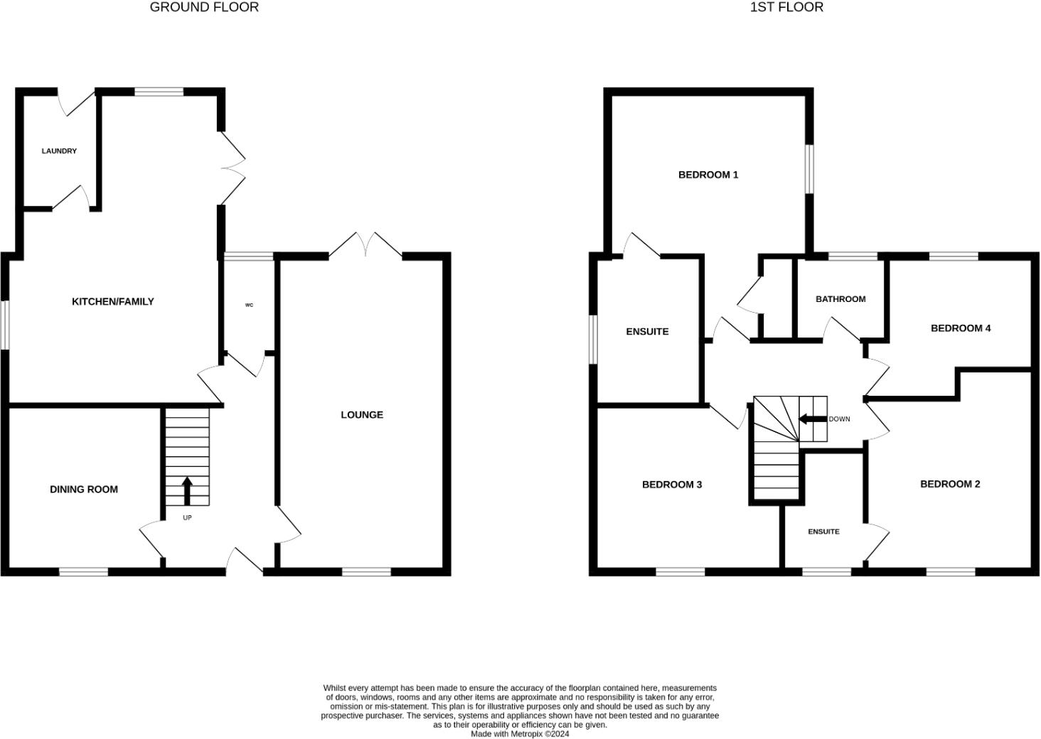
Welcome to this stunning four-bedroom detached home, perfectly positioned within a gated community in the charming village of Moulton, Northampton. Spanning 1,705 sq ft, this new build offers a contemporary brick exterior and a spacious interior that is ideal for family living. Enter through an inviting hall leading to a bright and airy open-plan kitchen/breakfast room, complemented by a separate dining area and a generous lounge. The ground floor flows seamlessly, featuring a utility room and WC for added convenience.
Upstairs, discover four well-sized bedrooms, including a master suite complete with an ensuite bathroom and dressing area, plus an additional ensuite for another bedroom. The robust layout ensures comfort, while the large rear garden invites outdoor activities. With a double garage and ample parking, this property ticks all the boxes for modern family life.
Located near several reputable schools and amenities, this home offers not just comfort but future potential in a highly sought-after area. Experience the exclusivity of living in a gated community—schedule a viewing today before this unique opportunity is gone!
4 bedroom detached house for sale in Thorpeville, Moulton, Northampton, NN3 — £625,000 • 4 bed • 2 bath • 1907 ft²
5 bedroom detached house for sale in Lavender Hill, Moulton, Northampton, NN3 — £675,000 • 5 bed • 4 bath • 2491 ft²
4 bedroom detached house for sale in NN3 Park View, Moulton, NN3 — £675,000 • 4 bed • 3 bath • 2500 ft²
4 bedroom detached house for sale in Underbank Lane | Moulton | NN3 — £411,000 • 4 bed • 2 bath • 1241 ft²
4 bedroom detached house for sale in Mulbridge Way, Moulton, Northampton, NN3 — £375,000 • 4 bed • 3 bath • 1181 ft²
3 bedroom semi-detached house for sale in Mulbridge Way, Moulton, NN3 — £290,000 • 3 bed • 2 bath • 769 ft²


































































































