Central one‑bed mews flat — ideal first home or York rental.
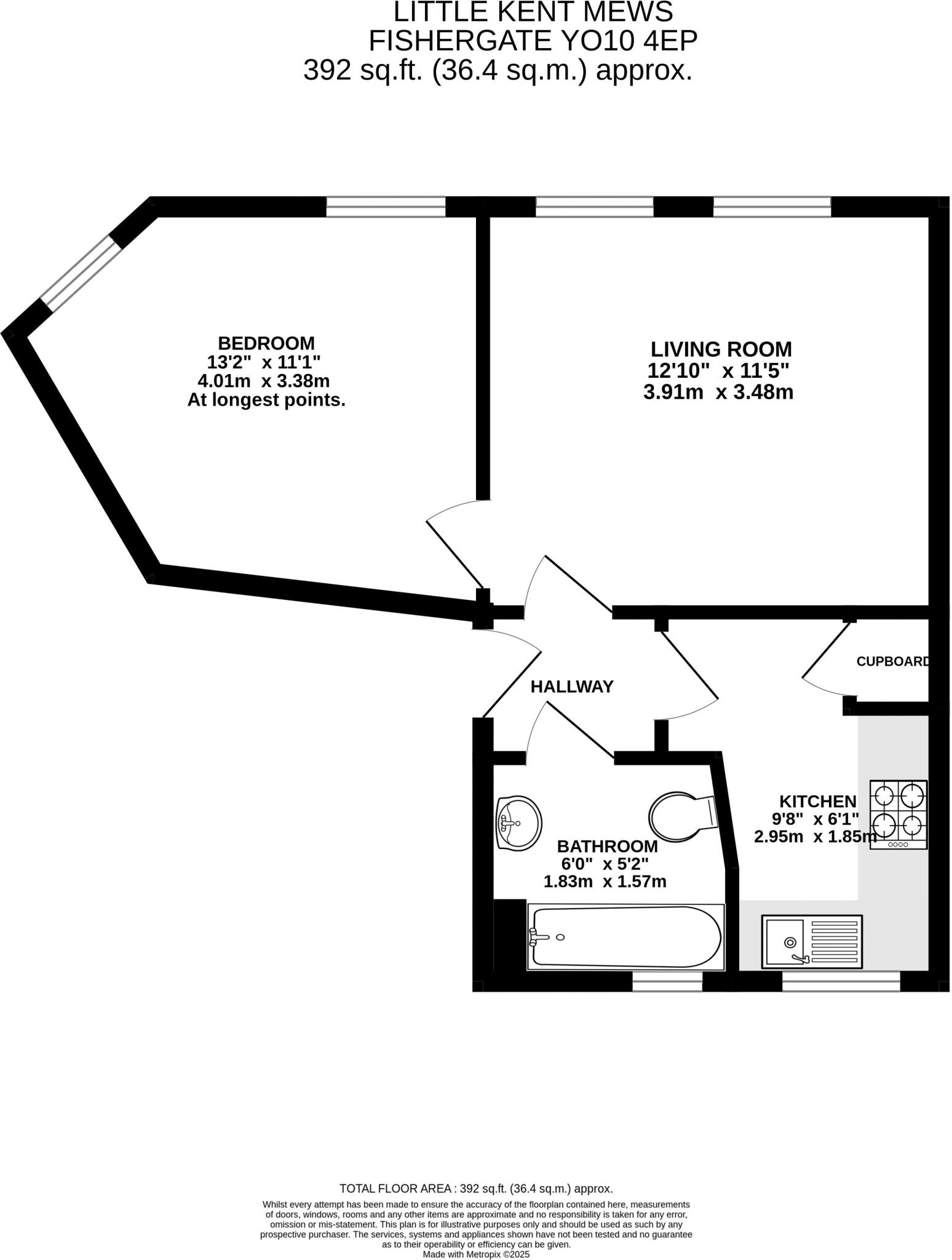
Compact one‑bed one‑floor apartment, approx. 392 sq ft
Set just outside York’s city walls, this compact one‑bedroom first‑floor mews apartment suits first‑time buyers, commuters or buy‑to‑let investors. The property is well presented with a modern fitted kitchen and bathroom, sash‑style windows that bring good natural light, and a secure communal courtyard with dedicated bike and bin storage.
At about 392 sq ft, the layout is efficient but modest — comfortable for a single occupant or couple. The building conversion (c.2003) keeps period character while offering contemporary finishes. Riverside walks, pubs, cafes and the university are all within easy walking distance, making daily life and rental demand convenient.
Practical considerations: the flat is leasehold with 102 years remaining, an annual service charge around £1,444 and an EPC rating of D. The footprint and communal external space are limited; there’s no private garden. Not suitable for holiday‑let use.
Overall this apartment offers affordable access to central York and strong local rental appeal, provided buyers are comfortable with a small footprint, communal maintenance costs and a mid‑length lease.
1 bedroom apartment for sale in College Mews, York, YO31 — £160,000 • 1 bed • 1 bath • 480 ft²
1 bedroom apartment for sale in Queens Staith Mews, Skeldergate, YO1 — £160,000 • 1 bed • 1 bath • 420 ft²
1 bedroom flat for sale in Navigation Road, York, YO1 — £165,000 • 1 bed • 1 bath • 566 ft²
1 bedroom apartment for sale in The Tannery, Lawrence Street, York, YO10 — £185,000 • 1 bed • 1 bath • 605 ft²
2 bedroom apartment for sale in Barbican Court, Fawcett Street, York, YO10 — £210,000 • 2 bed • 1 bath • 528 ft²
1 bedroom apartment for sale in Barbican Road, York, YO10 — £175,000 • 1 bed • 1 bath • 385 ft²










































































