IP33 3UN - 3 bedroom semidetached house for sale in Abbot Road, Bury S…

View on Property Piper

3 bedroom semi-detached house for sale in Abbot Road, Bury St. Edmunds, IP33

Summary - 81 ABBOT ROAD BURY ST. EDMUNDS IP33 3UN

3 bed 2 bath Semi-Detached

Three-bed corner-plot home with garage and big renovation potential, chain free.
Corner plot with large gardens and good outdoor space
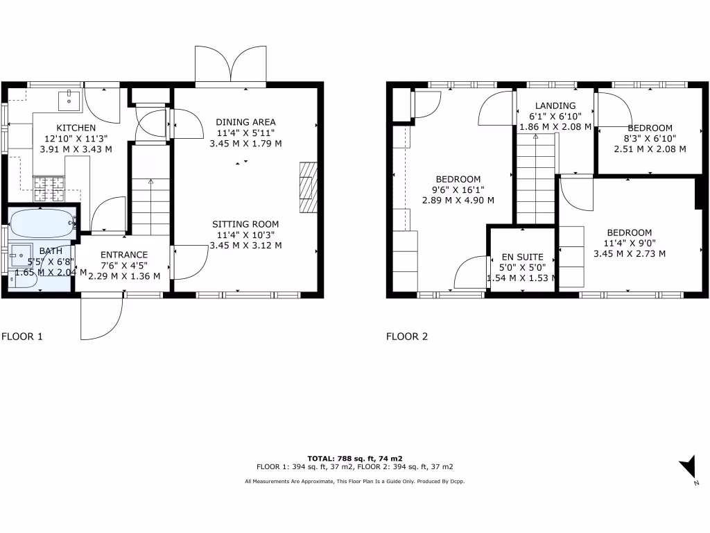
Set on a sizable corner plot on the favoured west side of Bury St Edmunds, this three-bedroom semi-detached home offers a practical family layout and clear potential. The entrance hall leads to a kitchen/breakfast room, separate sitting and dining areas, and a ground-floor bathroom. Upstairs the master bedroom benefits from an ensuite, joined by two further bedrooms.

The property includes a driveway and single garage, double glazing, gas central heating and generous gardens — useful for children, pets and outdoor entertaining. At around 914 sq ft the house is an average-sized family home in a very affluent area with good local schools and fast broadband.

The house requires modernisation throughout, which is reflected in the price. Cosmetic and layout improvements would significantly increase comfort and market value for a buyer willing to invest. Sold freehold and chain free, this is a straightforward opportunity to create a long-term family home or add value for resale.

Buyers should note the need for renovation works and that some rooms are modest in size. There is no flood risk and council tax is described as affordable, making the property practical as-is while offering scope for improvement.

Property Details

Image Descriptions

Floorplan Description

Rooms

Textual Property Features

Target Audience

AI Tags

Detected Visual Features

EPC Details

Nearby Schools

Nearest Bars And Restaurants

,,,,}

Nearest General Shops

,,}

Nearest Grocery shops

,,}

Nearest Supermarkets

,,}

Nearest Religious buildings

,,}

Nearest Medical buildings

,,,}

Nearest Leisure Facilities

,,,,}

Nearest Tourist attractions

,,}

Nearest Train stations

,,,,}

Nearest Bus stations and stops

,,,,}

Nearest Hotels

,,}

Tags

Local Market Stats

AirBnB Data

Similar Properties

Meta

High Res Images

Compatible Images

Low res Images

Thumbnails

Raw Images

High Res Floorplan Images

Compatible Floorplan Images

Low res Floorplan Images

FloorplanImages Thumbnail

Raw Floorplan Images