**Standout Features:**
- Rare development opportunity in St Mary’s Bay, a sought-after coastal village.
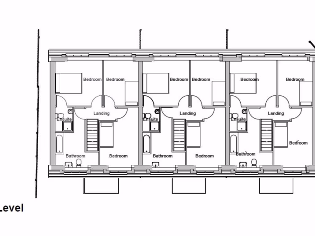
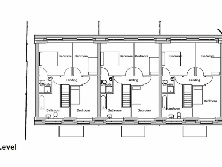
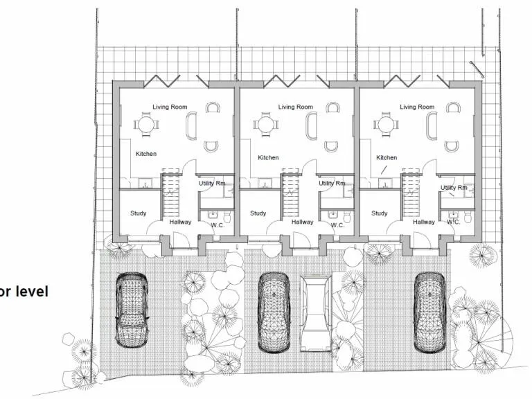
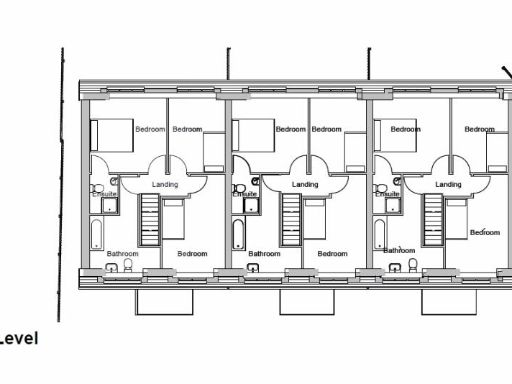
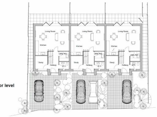
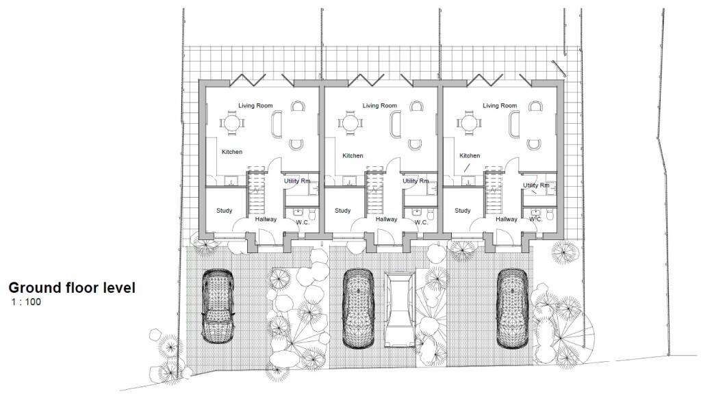
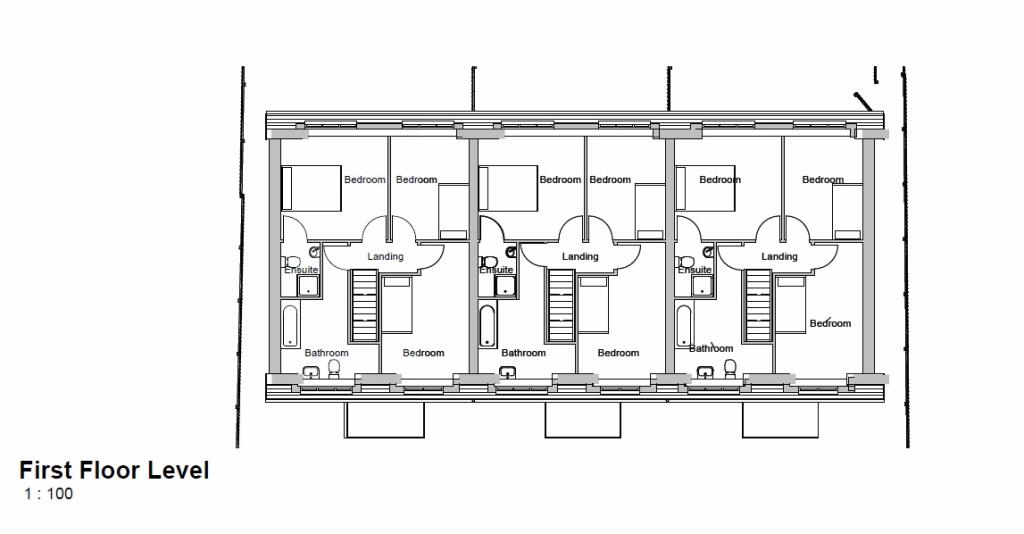
- Full planning permission granted for a terrace of three homes; reference 24/1761/FH and 25/0277/FH/CON.
- Level plot situated in a quiet cul-de-sac, allowing for easy construction.
- Freehold tenure, adding security for investment.
- Close proximity to local amenities, the beach, and recreational facilities.
Nestled in the tranquil St Mary’s Bay, this generous plot offers a remarkable chance for savvy builders and developers. Fully approved plans permit the demolition of the existing bungalow to pave the way for a contemporary terrace of three residential homes. Imagine crafting vibrant, modern residences that harness the charm of seaside living while being nestled in a peaceful cul-de-sac. With local schools rated 'Good' and amenities only a short walk away, future occupants will relish the balance of coastal culture and suburban convenience.
However, while the potential here is immense, it’s essential to be mindful of the current structure and any associated demolition requirements. The plot's status as freehold also ensures your investment is secure, providing flexibility for further enhancements or additional development down the line. Don’t let this exceptional chance slip away in this desirable location—envision the possibilities and seize the opportunity to create a thriving residential community!
2 bedroom semi-detached house for sale in Warren Lodge, Dymchurch Road, New Romney, Kent TN28 8UE, TN28 — £140,000 • 2 bed • 2 bath
Plot for sale in Tower Estate, Dymchurch, TN29 — £75,000 • 1 bed • 1 bath
3 bedroom detached house for sale in Dunstall Gardens, St. Marys Bay, Romney Marsh, Kent, TN29 — £425,000 • 3 bed • 2 bath
3 bedroom detached house for sale in Fairway Close, St Mary's Bay, TN29 0, TN29 — £395,000 • 3 bed • 1 bath • 1287 ft²
Land for sale in St Leonards Road, Hythe, CT21 — £175,000 • 1 bed • 1 bath • 1362 ft²
Commercial development for sale in Plots 5 & 6, Dymchurch Road, New Romney, Kent TN28 8UE, TN28 — £140,000 • 2 bed • 2 bath • 528 ft²










































