Chain-free three-bedroom with parking, garden and loft-extension potential.
- Chain free freehold three-bedroom mid-terrace
- Recently renovated interior, neutral finishes throughout
- Off-street parking to the front (private driveway)
- Large stone‑paved rear garden and conservatory
- Single bathroom only; may limit larger families
- Solid brick walls likely without cavity insulation
- EPC rating C; energy improvements possible
- Potential to extend (loft/rear) subject to planning
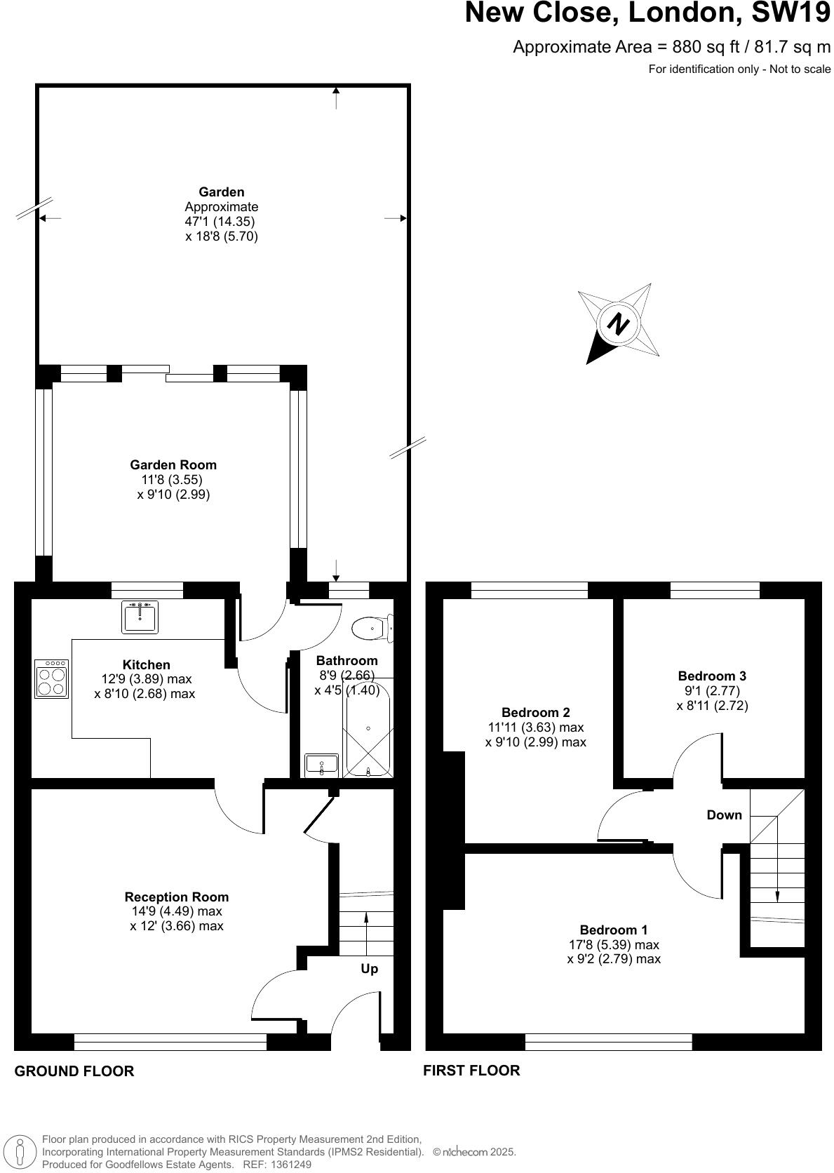
A chain-free, mid-terraced three-bedroom house in SW19 presented in refreshed condition and ready to occupy. The property benefits from off-street parking to the front, a sizeable stone‑paved rear garden, and a bright conservatory that links indoor and outdoor space. Recent works have left interior finishes neutral and move-in ready.
The layout suits first-time buyers or buy-to-let investors: a ground-floor reception, fitted kitchen, conservatory and garden, with three bedrooms and a single bathroom upstairs. The house sits on a small inner-urban plot but offers clear scope to extend (loft or rear extension subject to planning) to increase living space and long‑term value.
Practical details: freehold tenure, EPC rating C, council tax band C, no flood risk and mains gas central heating. The area has good transport links with direct buses to Morden Underground for fast Northern Line access to Central London, plus local amenities close by.
Points to note: the property is in an area with relative deprivation and average crime rates. The building is a period mid-terrace (c.1900–1929) with solid-brick walls likely lacking cavity insulation; further insulation or energy upgrades may be required to improve efficiency. There is one bathroom, which may be restrictive for larger households.
 3 bedroom end of terrace house for sale in Glenthorpe Road, Morden, SM4 — £650,000 • 3 bed • 1 bath • 938 ft²
 3 bedroom end of terrace house for sale in Glenthorpe Road, Morden, SM4 — £650,000 • 3 bed • 1 bath • 938 ft² 3 bedroom terraced house for sale in Peterstow Close, London, SW19 — £650,000 • 3 bed • 1 bath • 886 ft²
 3 bedroom terraced house for sale in Peterstow Close, London, SW19 — £650,000 • 3 bed • 1 bath • 886 ft² 3 bedroom terraced house for sale in Roslyn Close, Borders Of Colliers Wood, Surrey, CR4 — £450,000 • 3 bed • 1 bath • 714 ft²
 3 bedroom terraced house for sale in Roslyn Close, Borders Of Colliers Wood, Surrey, CR4 — £450,000 • 3 bed • 1 bath • 714 ft² 3 bedroom terraced house for sale in Arundel Avenue, Morden, SM4 — £650,000 • 3 bed • 1 bath • 1079 ft²
 3 bedroom terraced house for sale in Arundel Avenue, Morden, SM4 — £650,000 • 3 bed • 1 bath • 1079 ft² 3 bedroom terraced house for sale in All Saints Road, London, SW19 — £660,000 • 3 bed • 2 bath • 909 ft²
 3 bedroom terraced house for sale in All Saints Road, London, SW19 — £660,000 • 3 bed • 2 bath • 909 ft² 3 bedroom end of terrace house for sale in Albert Drive, London, SW19 — £675,000 • 3 bed • 1 bath • 1148 ft²
 3 bedroom end of terrace house for sale in Albert Drive, London, SW19 — £675,000 • 3 bed • 1 bath • 1148 ft²


























































