Characterful family home near schools, station and Trans-Pennine Trail.
Three-bedroom Victorian stone semi-detached home with attic and cellar
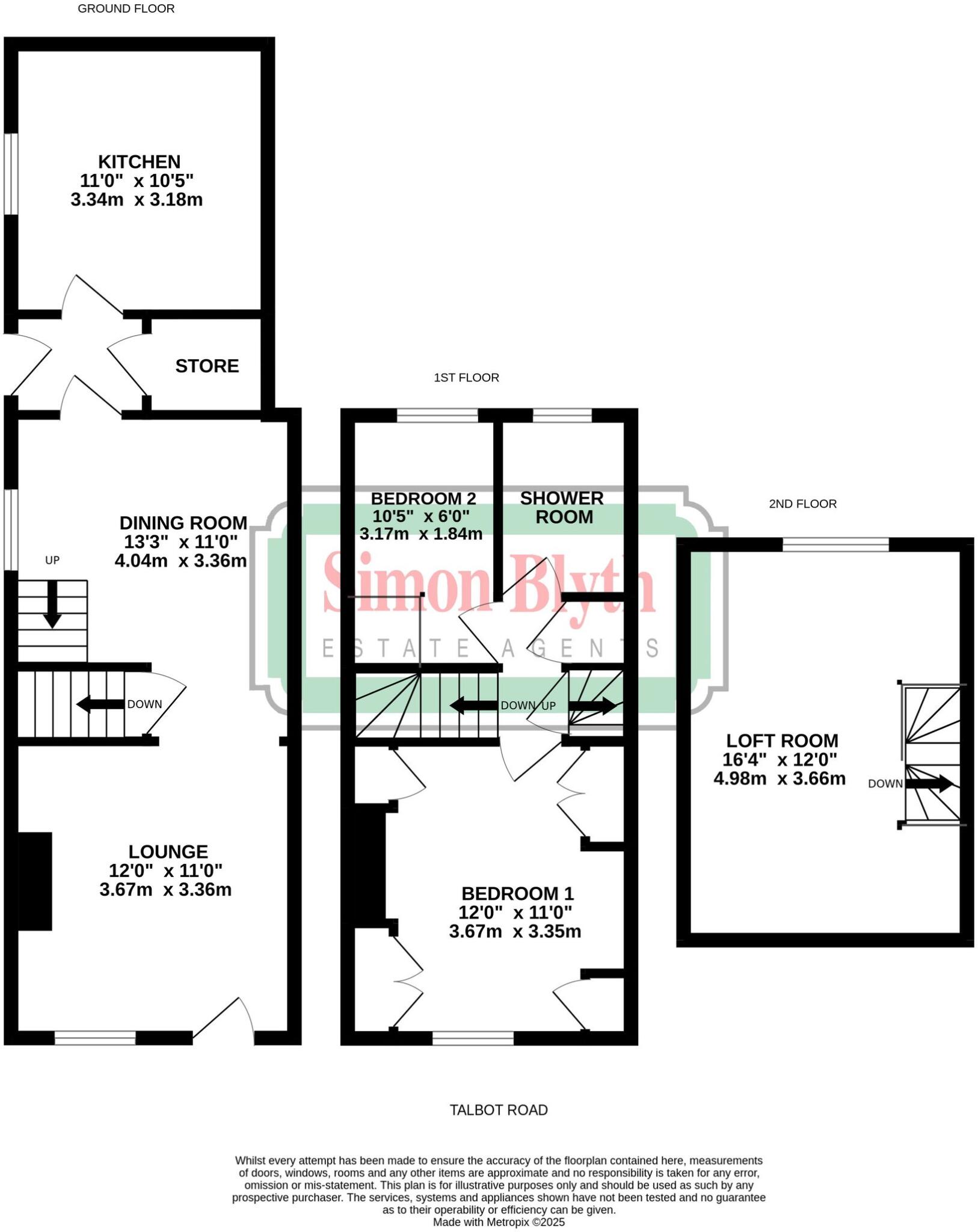
A stone-built Victorian semi offers a comfortable family home in a quiet Penistone spot with views over adjacent fields. The house extends over three storeys plus cellar and includes a front lounge, separate dining room, breakfast kitchen and an attic bedroom — practical layout for family living and home working. Solar panels and a mains-gas boiler keep running costs lower; council tax is described as cheap and the property sits in a very affluent, well-served area with fast broadband and excellent mobile signal.
Practical outdoor features include a side garden with a decent lawn, off-street parking and scope — subject to planning consent — to extend parking or add a garage. There is no upper vendor chain and the location is close to Penistone amenities, Tesco, the train station, Trans-Pennine Trail and several well-rated schools, making the house convenient for commuting and family life.
Buyers should note some rooms are dated and would benefit from renovation: the living room shows mid-century fittings and carpeting that may need updating, and the property has an EPC rating of D. The attic is used as a sizeable room but has a wall-mounted gas heater rather than full central heating; prospective purchasers should inspect heating distribution and consider modernization plans. Planning would be required for any parking or garaging changes.
Overall this is a characterful, well-located semi-detached house with sensible running-cost advantages and clear potential for improvement. It will suit families seeking space, good local schools and easy transport links, or buyers wanting a practical renovation with added scope for parking improvements.
3 bedroom semi-detached house for sale in Bond Road, Barnsley, S75 — £249,995 • 3 bed • 1 bath • 1355 ft²
3 bedroom semi-detached house for sale in Clarel Street, Penistone, Sheffield, S36 6AU, S36 — £200,000 • 3 bed • 1 bath • 1171 ft²
3 bedroom terraced house for sale in The Common, Ecclesfield, Sheffield, South Yorkshire, S35 — £170,000 • 3 bed • 1 bath • 1081 ft²
3 bedroom semi-detached house for sale in Church View Crescent, Penistone, S36 — £185,000 • 3 bed • 1 bath
4 bedroom detached house for sale in Fullshaw Bank, Penistone, S36 — £440,000 • 4 bed • 2 bath • 1615 ft²
3 bedroom end of terrace house for sale in Carr Road, Deepcar, Sheffield, South Yorkshire, S36 — £185,000 • 3 bed • 1 bath • 1252 ft²










































































































































