**Standout Features:**
- Spacious one-bedroom top floor flat in a desirable area.
- Secure underground parking and gated access.
- Access to secluded communal gardens.
- Excellent transport links to central London via East Croydon Station.
- Close proximity to amenities, parks, and top-rated schools.
**Potential Concerns:**
- Property’s age (built between 1976-1982) may imply some maintenance considerations.
- Above-average crime rate in the area.
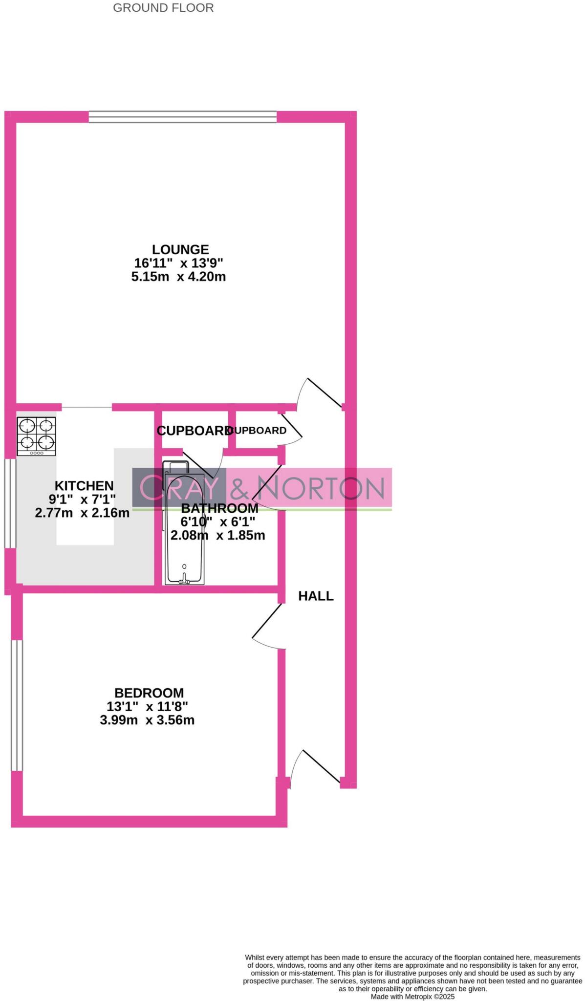
Discover the perfect blend of space and convenience with this generously sized one-bedroom top floor flat located in the vibrant community of Addiscombe. With a long lease and secure underground parking, this property offers a unique opportunity for first-time buyers or investors looking to enter the market. The flat features an inviting entrance hall, a modern bathroom, a fitted kitchen, and an expansive reception room illuminated by natural light, making it ideal for comfortable living.
Enjoy the serenity of the secluded communal gardens or take advantage of the excellent transport links—Trams, buses, and East Croydon Station are just a short walk away, ensuring seamless commutes to central London and Gatwick Airport. The property is situated near a variety of amenities, including shops and the beautiful Lloyd Park, perfect for weekend relaxation or outdoor activities. Although the property is in good condition, keep in mind that it could require some updates, given its mid-20th-century construction. Don’t miss this fantastic chance to secure a spacious home in a lucrative location—schedule your viewing today and start envisioning your new lifestyle!
1 bedroom flat for sale in Academy Gardens, Croydon, CR0 — £210,000 • 1 bed • 1 bath • 485 ft²
1 bedroom flat for sale in Lower Addiscombe Road, Addiscombe, CR0 — £215,000 • 1 bed • 1 bath • 408 ft²
1 bedroom apartment for sale in Canning Road, Addiscombe, CR0 — £250,000 • 1 bed • 1 bath • 526 ft²
1 bedroom flat for sale in Outram Road, Addiscombe, CR0 — £230,000 • 1 bed • 1 bath • 442 ft²
1 bedroom flat for sale in Sinclair Court, Canning Road, Croydon, CR0 — £230,000 • 1 bed • 1 bath • 502 ft²
1 bedroom flat for sale in Lower Addiscombe Road, Addiscombe, CR0 — £215,000 • 1 bed • 1 bath • 464 ft²


































