Renovated 4-bed detached with south-facing garden and flexible ground-floor bedroom.
Four bedrooms including garage-conversion ground-floor bedroom with en-suite
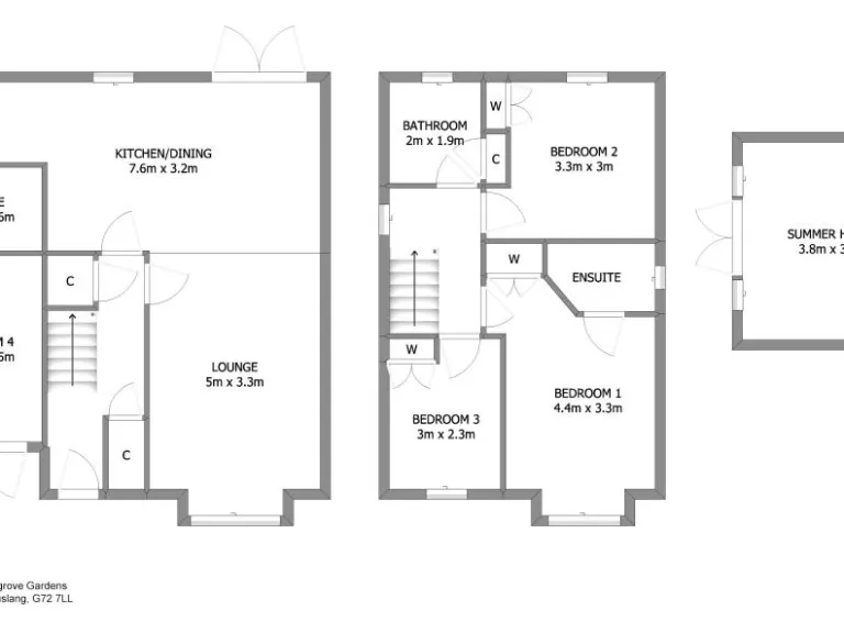
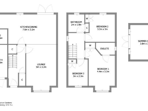
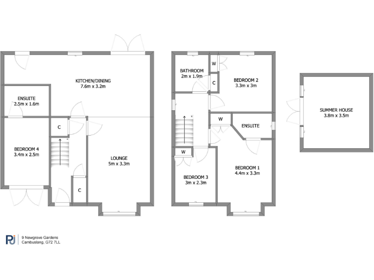
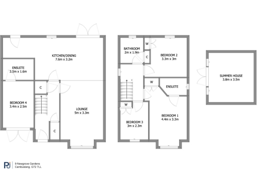
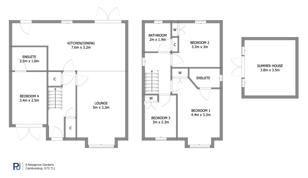
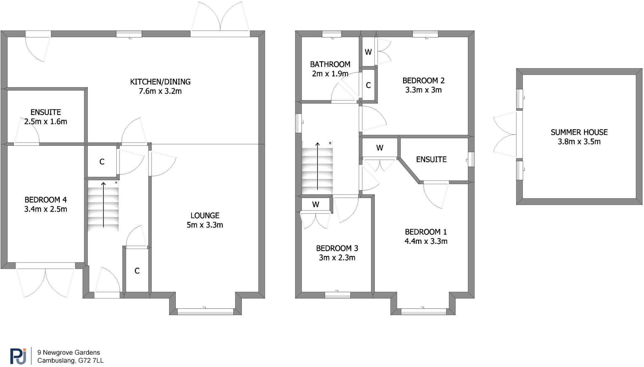
Light-filled and recently upgraded, this four-bedroom detached house in a quiet cul-de-sac offers a turn-key family home with flexible accommodation. The former garage is now a practical ground-floor fourth bedroom with en-suite — useful for elderly relatives, teenagers, or as a home office. The interior benefits from new flooring, fresh décor and professionally re-fitted kitchen, family bathroom and two en-suites, so little immediate work is needed.
Externally the property sits on a south-facing, low-maintenance rear garden with decked seating, artificial lawn and a large powered summerhouse, extending year-round living space. Practical features include double glazing, gas central heating, EV charging point, block-paved driveway and good broadband and mobile signal. The home is close to local shops, a Morrison’s supermarket, schools and transport links to Cambuslang and Glasgow.
A few factual points to note: the overall floor area is relatively small (approx. 951 sq ft) for a four-bedroom detached house, and the property sits within an area recorded as very deprived, which may affect resale and local services. Tenure is not specified in the provided information. Overall, the house will suit buyers seeking a ready-to-move-in family home with versatile ground-floor accommodation and low-maintenance outdoor space.
4 bedroom end of terrace house for sale in 20 McGahey Drive, Cambuslang, Glasgow, G72 — £239,000 • 4 bed • 3 bath • 1027 ft²
4 bedroom detached house for sale in Greenlees Road, Cambuslang, Glasgow, G72 — £475,000 • 4 bed • 2 bath • 1910 ft²
4 bedroom detached villa for sale in Paxton Crescent, Mavorpark Gardens, East Kilbride, G74 , G74 — £275,000 • 4 bed • 3 bath • 1130 ft²
4 bedroom detached house for sale in Drumgray Drive, Cambuslang, Glasgow, South Lanarkshire, G72 — £320,000 • 4 bed • 2 bath
4 bedroom detached house for sale in Rye Drive, Barmulloch, Glasgow, G21 — £250,000 • 4 bed • 2 bath
4 bedroom detached house for sale in Walnut Gate, Cambuslang, Glasgow, South Lanarkshire, G72 — £315,000 • 4 bed • 4 bath • 1119 ft²














































































































































































































