**Standout Features:**
- Modern, contemporary design with integrated kitchen appliances
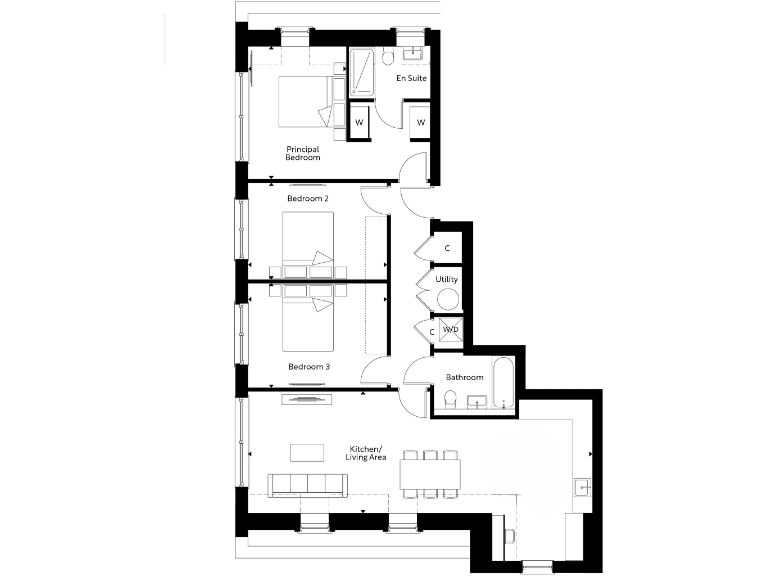
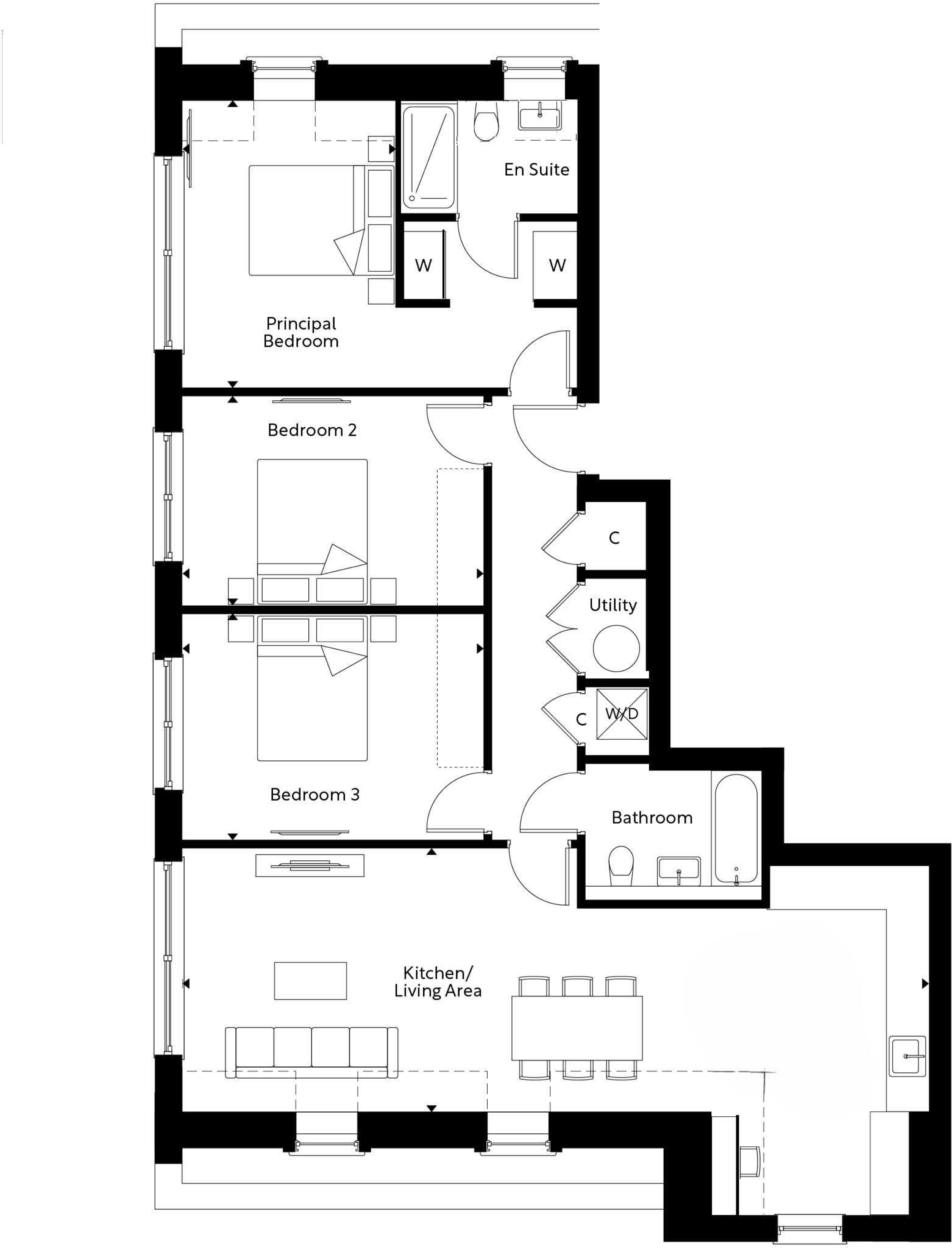
- Spacious three-bedroom layout with two bathrooms, including an en-suite
- Open-plan living area flooded with natural light
- Separate utility room and additional storage for functionality
- Secure underground parking with dedicated garage space
- New build with a 999-year lease and 10-year Build Zone Warranty
- Located in a desirable area with affluent surroundings and fast broadband
**Potential Concerns:**
- Leasehold property may involve service charges (approx. £3,230/year)
- Council tax information not specified
This contemporary second-floor apartment in Goldfinch House, Weybridge, offers a harmonious blend of style and practicality. Spread over 1,105 sq. ft., this newly built three-bedroom home features an inviting open-plan living and dining area, perfect for entertaining or relaxing with family. The principal bedroom includes built-in wardrobes with an en-suite bathroom, while the additional bedrooms provide ample space and comfort, ideal for families or professionals.
Benefit from modern conveniences, including a separate utility room equipped with a NEFF washer/dryer and video entry for enhanced security. The well-maintained grounds of Riverside Gardens, complemented by secure underground parking, add another level of appeal. This chain-free property is a rare find in an affluent community, positioned perfectly for both convenience and quality of life.
With excellent schools, fast broadband, and a vibrant local lifestyle, this property embraces modern living at its finest. Don't miss out on this opportunity to claim your spot in one of Weybridge's most sought-after developments!
3 bedroom apartment for sale in Riverside Gardens, Oatlands Drive, Weybridge, KT13 — £795,000 • 3 bed • 2 bath • 1157 ft²
1 bedroom apartment for sale in Riverside Gardens, Jubilee Gardens, Weybridge, KT13 — £395,000 • 1 bed • 1 bath • 551 ft²
3 bedroom apartment for sale in Riverside Gardens, Oatlands Drive, Weybridge, KT13 — £875,000 • 3 bed • 2 bath • 1099 ft²
3 bedroom apartment for sale in High Point, Weybridge, Surrey, KT13 — £355,000 • 3 bed • 1 bath • 819 ft²
2 bedroom apartment for sale in Thames Street, Weybridge, KT13 — £325,000 • 2 bed • 2 bath • 823 ft²
3 bedroom apartment for sale in Churchfields Avenue, Weybridge, KT13 — £720,000 • 3 bed • 2 bath • 1252 ft²














































