Affordable two-bedroom home near major stations, ready for updating and value uplift.
Freehold Victorian mid-terrace with period features and solid-brick walls
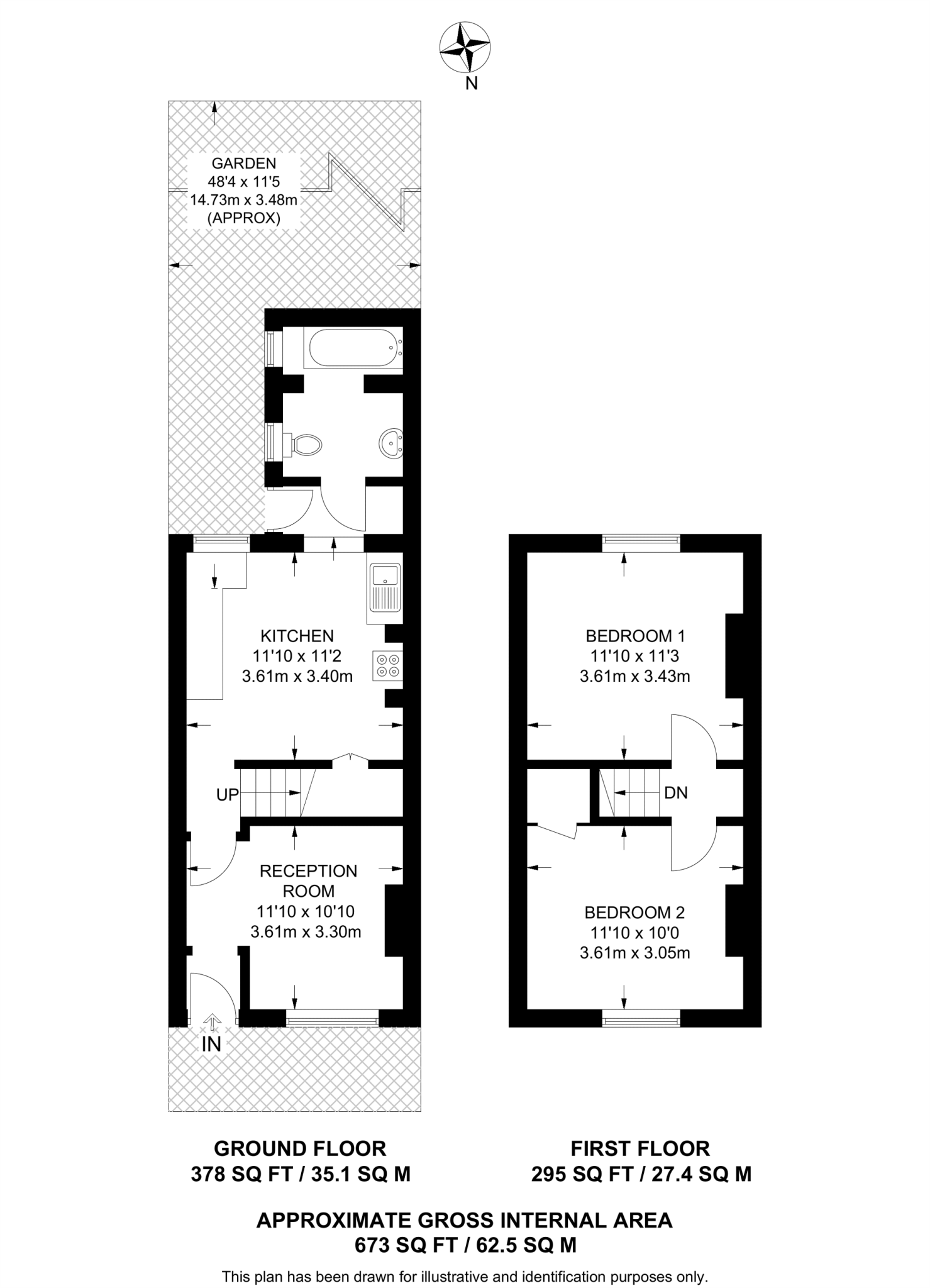
This Victorian mid-terrace offers a practical two-bedroom layout close to both West and East Croydon stations, ideal for first-time buyers seeking commuter convenience. The ground floor features a bright reception room and a separate eat-in kitchen, while upstairs provides two well-sized double bedrooms and a three-piece bathroom. Outside, a private garden and small plot give outdoor space rare for this price bracket.
The house is freehold with traditional solid-brick construction and period character, presenting clear scope to add value through sympathetic updating. The living room retains a fireplace and original features but would benefit from modernization; some fabric improvements and insulation are likely needed given assumed solid walls. Double glazing is present though the install date is unknown.
Practical utilities include mains gas central heating with a boiler and fast broadband plus excellent mobile signal. Local amenities and several well-rated schools are within easy reach, supporting everyday life for new owners. NOTE: the area records high crime and significant deprivation, which should factor into buyer decisions and any refurbishment plans.
Overall this is an affordable entry-level terrace with commuter links and upside for buyers willing to invest in updating and insulation work.
2 bedroom terraced house for sale in Bourne Street, Croydon, CR0 — £360,000 • 2 bed • 1 bath • 797 ft²
2 bedroom terraced house for sale in Leslie Grove, East Croydon, CR0 — £400,000 • 2 bed • 1 bath • 748 ft²
2 bedroom terraced house for sale in Warren Road, Croydon, CR0 — £375,000 • 2 bed • 1 bath • 723 ft²
2 bedroom terraced house for sale in Church Road, Croydon, CR0 — £425,000 • 2 bed • 1 bath • 2676 ft²
2 bedroom terraced house for sale in Helder Street, South Croydon, CR2 — £385,000 • 2 bed • 1 bath • 753 ft²
2 bedroom terraced house for sale in Old Palace Road, Croydon, CR0 — £375,000 • 2 bed • 1 bath • 744 ft²


























































































