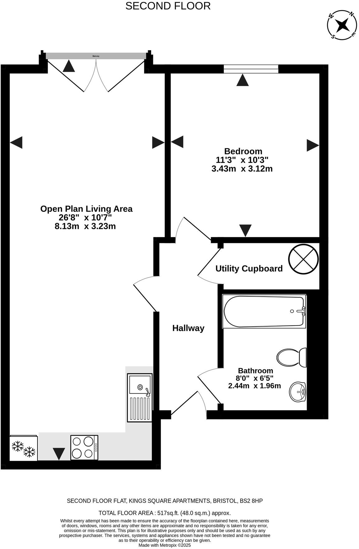
**Standout Features:**
- Spacious 1 bedroom second floor flat (48 sqm / 516 sq ft)
- Juliette balcony with a southerly aspect
- Large open-plan living area (26ft 8 x 10ft 7)
- Lift access, ideal for convenience
- Quiet location near City Centre and vibrant Stokes Croft
- No onward chain for a quick move
- Leasehold with 979 years remaining
**Summary:**
Discover urban living at its finest with this spacious 1 bedroom flat in Kings Square Apartments. This second-floor residence offers a generous open-plan living area illuminated by large windows, leading to a charming Juliette balcony. Perfect for those seeking a quiet escape in a bustling city, it is ideally located just a short walk from the City Centre and the trendy Stokes Croft, rich with cultural offerings and nightlife. The apartment is well-appointed with a modern bathroom, a sizeable double bedroom, and convenient lift access.
With no onward chain, this property presents an excellent opportunity for first-time buyers or investors looking to capitalize on a thriving rental market in Bristol’s multicultural neighborhood. Although the service charges and ground rent are on the pricier side, the potential for greater returns and the apartment's modern appeal justify the costs. The property’s EPC rating of C ensures energy efficiency, adding to its desirability. Don’t miss out on this exceptional home in a community-driven area, where art, culture, and comfort converge.
1 bedroom apartment for sale in King Square Avenue, Bristol, BS2 — £260,000 • 1 bed • 1 bath • 528 ft²
1 bedroom flat for sale in King Square Avenue, BRISTOL, BS2 — £200,000 • 1 bed • 1 bath • 418 ft²
1 bedroom flat for sale in King Square Avenue, Stokes Croft, BS2 — £254,000 • 1 bed • 1 bath • 494 ft²
1 bedroom flat for sale in King Square, Bristol, BS2 — £250,000 • 1 bed • 1 bath • 631 ft²
1 bedroom apartment for sale in Armidale Place, Bristol, BS6 — £190,000 • 1 bed • 1 bath • 447 ft²
1 bedroom flat for sale in Bell Avenue, City Centre, Bristol, BS1 4AP, BS1 — £265,000 • 1 bed • 1 bath • 495 ft²










































