Fully let Cotswold retail investment with strong tourist footfall and short-term lease considerations.
- Prime High Street location in Bourton-on-the-Water, high tourist footfall
- Fully let to PSR Limited (Just for Pets) on new lease from 11 Apr 2025
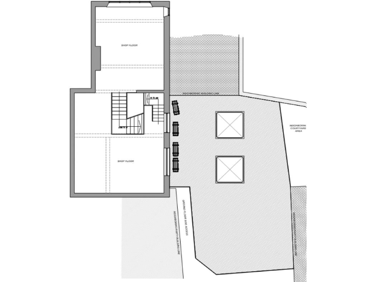
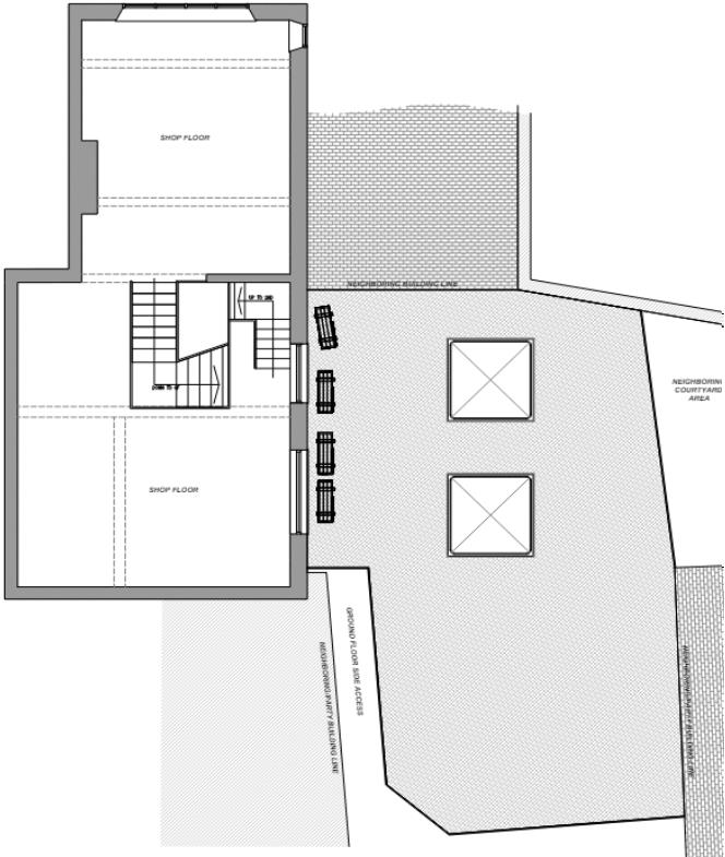
- Total 2,770 sq ft; 1,376 sq ft ground floor retail space
- Newly refurbished; open and trading with immediate rental income
- Rent £45,000 pa; gross initial yield c.5.81% at asking price
- Lease 10 years only; lenders may refuse mortgage finance
- Tenant break and rent review at year five affect income certainty
- Medium flood risk; small plot and conservation-area maintenance required
A rare, fully let commercial investment in the heart of Bourton-on-the-Water, occupying 2,770 sq ft over three floors with a prominent double frontage. The property has been newly refurbished and is open and trading, producing £45,000 pa from a new 10-year lease to PSR Limited (trading as Just for Pets). The location benefits from very high tourist footfall, strong local amenities and an attractive Cotswold stone facade within the village conservation area.
This is a straightforward, hands-off income asset for an investor seeking prime town-centre exposure and an immediate rental return (gross initial yield c. 5.81% at the guide price of £775,000). The lease is fully repairing and insuring (subject to Schedule of Condition), with an upward-only market rent review and a tenant break option in year five—factors that will affect medium-term income certainty.
Buyers should note material limitations: the lease term is only ten years from April 2025, which may restrict some lenders and reduce buyer demand. The property sits in a medium flood-risk zone and occupies a small plot in a conservation area, and the building’s traditional stone walls are assumed to have no added insulation. These points increase the importance of considering lending, insurance and long-term maintenance costs.
Overall, this is an attractive, characterful Cotswold retail investment offering immediate income and tourist-driven demand, but best suited to investors comfortable with a shorter lease profile, potential lender restrictions, and ongoing conservation-area maintenance responsibilities.
2 bedroom character property for sale in Victoria Street, Bourton-On-The-Water, Cheltenham, GL54 — £985,000 • 2 bed • 1 bath • 3933 ft²
Commercial property for sale in Victoria Street, Bourton-On-The-Water, Cheltenham, GL54 — £985,000 • 1 bed • 1 bath • 3933 ft²
High street retail property for sale in High Street, Bourton-on-the-Water, Cheltenham, Gloucestershire, GL54 — £175,000 • 1 bed • 1 bath • 892 ft²
2 bedroom apartment for sale in Rissington Road, Bourton On The Water, GL54 — £350,000 • 2 bed • 1 bath • 694 ft²
High street retail property for sale in West Market Place, Cirencester, Gloucestershire, GL7 — £610,000 • 1 bed • 1 bath • 4173 ft²
Commercial property for sale in Hospital Road, Moreton-in-Marsh, Gloucestershire, GL56 — £340,000 • 1 bed • 1 bath • 1722 ft²






















































































