Chain free freehold Victorian end-of-terrace with period features
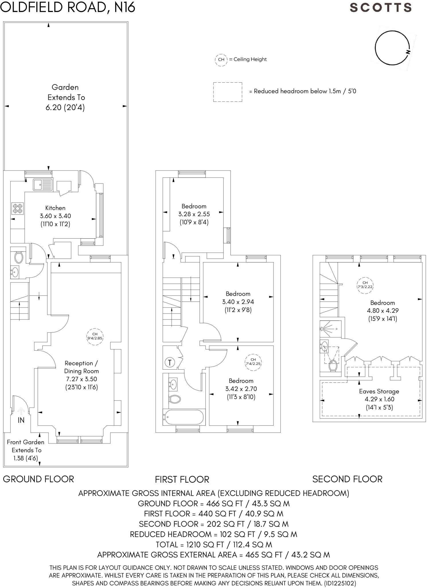
Approx. 1,210 sq ft across three storeys, principal bedroom top floor
Extended kitchen-diner opening to low-maintenance west-facing garden
Double reception with high ceilings and large bay window
Three bedrooms plus family bathroom on first floor; en suite to principal
Small plot size; garden compact rather than large
No flood risk; local crime and deprivation levels are average
Council tax band not provided — buyer to verify
Set across three storeys, this end-of-terrace Victorian home balances period character with contemporary living. At approximately 1,210 sq ft the layout includes a double reception, extended kitchen-diner and a west-facing garden designed for low-maintenance outdoor living. High ceilings, sash windows and bay frontage preserve original charm while light-filled modern finishes make the space move-in ready.
The principal bedroom occupies the top floor and benefits from rooftop views, an en suite shower and generous eaves storage. Three further bedrooms and a family bathroom sit on the first floor, making this a practical family layout or a spacious home for professionals wanting home working space. Broadband and mobile signal are strong, and the house sits in a well-connected Stoke Newington location close to Clissold Park and Church Street.
Practical points are clear and factual: the property sits on a small plot and the garden is west-facing (afternoon sun). It is chain free and freehold, with no recorded flood risk. Local indicators are broadly average for crime and area deprivation; council tax band is not provided. These are sensible details for buyers weighing transport, schools and local amenities.
This home will suit families or buyers seeking a characterful, well-presented house near excellent primary schools and independent shops. There is scope to personalise upper-floor rooms and garden landscaping further, but the property’s contemporary updates and solid Victorian proportions deliver immediate everyday comfort and long-term potential.
4 bedroom terraced house for sale in Foulden Road, Stoke Newington, N16 — £1,400,000 • 4 bed • 2 bath • 1919 ft²
3 bedroom terraced house for sale in Defoe Road, LONDON N16 — £1,250,000 • 3 bed • 1 bath • 1094 ft²
3 bedroom terraced house for sale in Oldfield Road, Stoke Newington, N16 — £1,500,000 • 3 bed • 2 bath • 1456 ft²
4 bedroom terraced house for sale in Lordship Road, Stoke Newington, London, N16 — £1,350,000 • 4 bed • 1 bath • 1580 ft²
4 bedroom terraced house for sale in Albion Road, London, N16 — £1,850,000 • 4 bed • 2 bath • 2384 ft²
4 bedroom terraced house for sale in Sandbrook Road, Stoke Newington, Hackney, London, N16 — £1,750,000 • 4 bed • 2 bath • 1539 ft²


























































































