**Standout Features:**
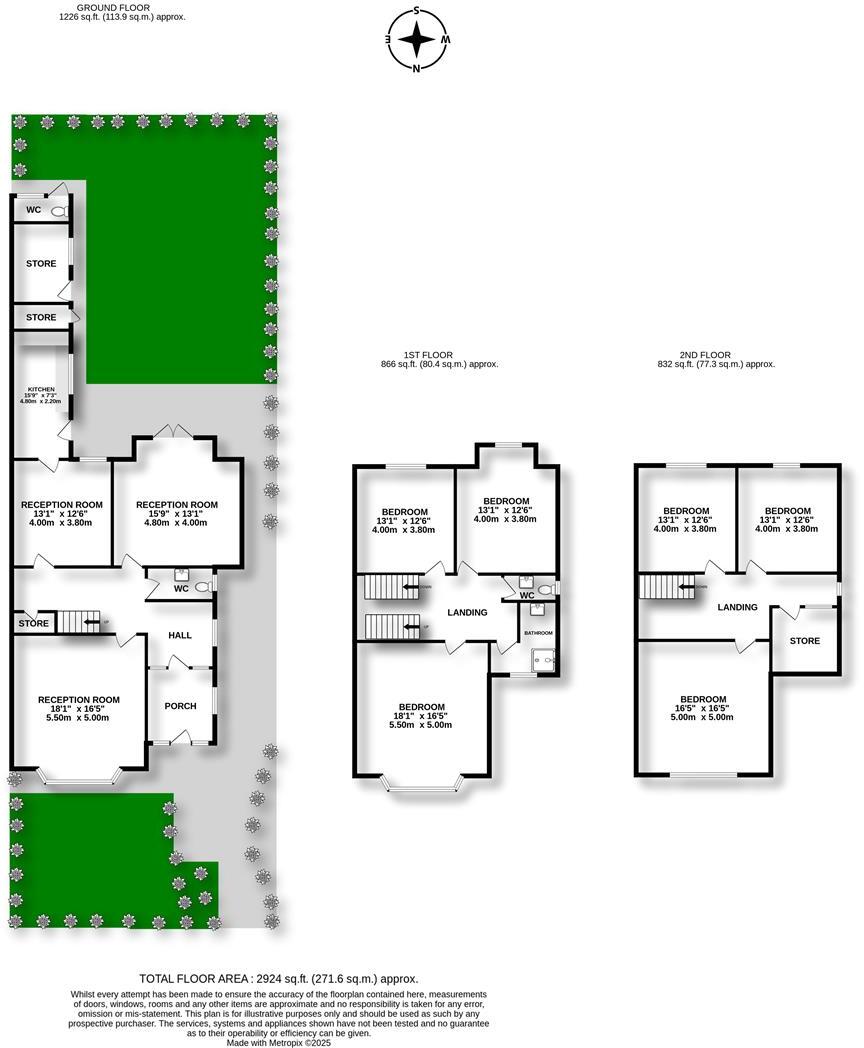
- Six spacious bedrooms across three floors
- Three versatile reception rooms
- Rich Victorian architectural details
- Chain-free sale, offering immediate occupancy
- Established south-facing rear garden
- Potential for extensive refurbishment
**Notable Concerns:**
- Requires full renovation throughout
- High crime rate in the area
- Lack of insulation in walls
This distinguished Victorian semi-detached home is a rare opportunity for visionary buyers looking for a substantial property to refurbish and personalize. Spanning 2,924 square feet, it boasts six large bedrooms and three reception rooms, providing ample space for families or potential rental arrangements. The property presents a blank canvas and invites you to retain its original features such as detailed woodwork, high ceilings, and charming architectural elements while crafting your dream home.
Nestled within an established area, the home is conveniently located near St Anselm's College and just a short walk from Birkenhead Park, offering an ideal setting for families. Although the property requires complete renovation, its generous proportions and desirable garden space make it ripe for transformation into a stunning family residence. Be aware that the property is situated in a high-crime area, and the absence of wall insulation presents a significant undertaking for renovators. This chain-free sale sets the stage for a swift transition into your new venture—don’t miss the opportunity to create a beautiful family haven in this classic Victorian home!



























































































































