Rare Class Q opportunity to create a two-bedroom rural home close to village amenities..
Class Q planning granted for two-bedroom detached dwelling (Ref P/PAAC/2025/03383)
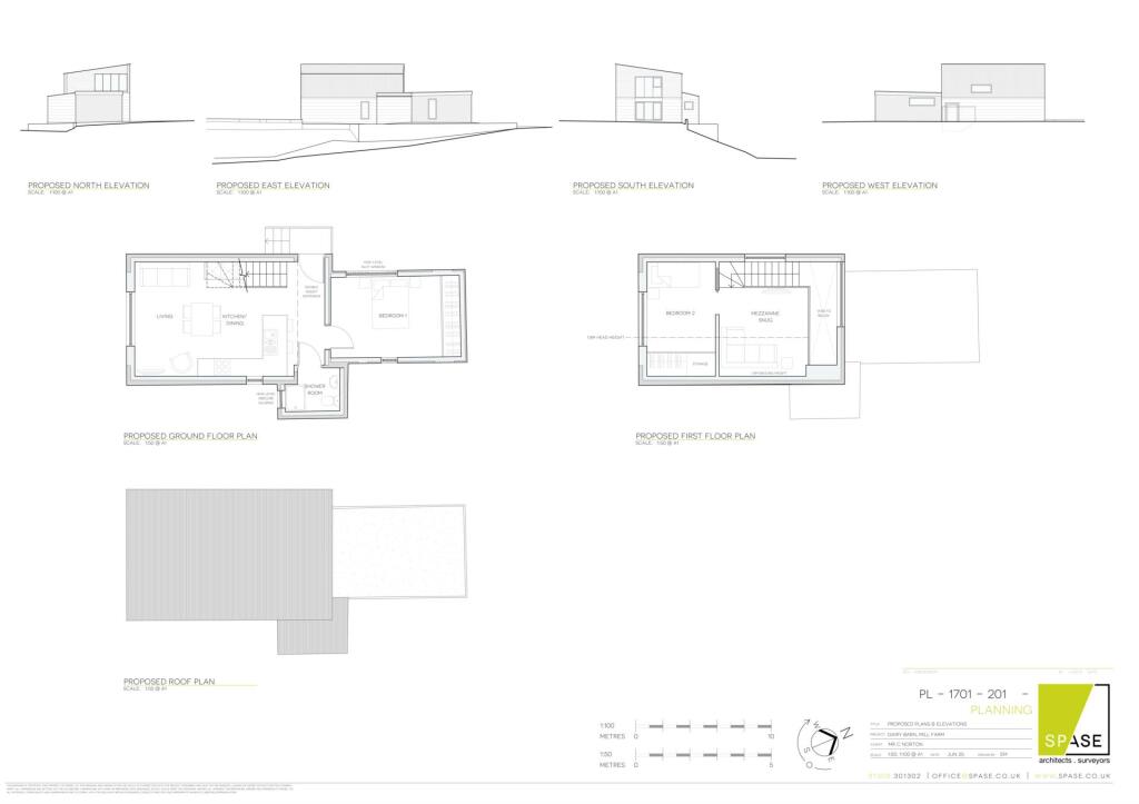
This unusual Class Q opportunity offers a former milk parlour with planning permission (P/PAAC/2025/03383) to create a detached two-bedroom home on the edge of Okeford Fitzpaine. The approved scheme provides an open-plan ground floor with a master bedroom and shower room, plus a first-floor bedroom and mezzanine snug — a straightforward brief for a self-builder or developer to deliver a compact rural home with countryside views.
The site sits in a peaceful lane, within walking distance of the village shop and pub, and includes a garden and parking within the curtilage on a plot of about 0.095 acre. Broadband and mobile signals are strong and there is no identified flood risk. Public footpaths, Blandford Forest and regional routes such as the Wessex Ridgeway are immediately accessible, increasing the site’s appeal for buyers seeking countryside lifestyle or holiday-let potential.
Important practical points: the purchase is for the agricultural building with planning granted under Class Q — building regulations, construction costs and connection of services remain the buyer’s responsibility. Any purchaser must satisfy themselves on service availability, site access via a track from Little Lane, and the cost and time implications of conversion works. The property is offered freehold at a low entry price, reflecting the conversion requirement and making it a sensible option for a hands-on buyer or investor willing to fund the build.
In short, this is a cost-effective route to a bespoke two-bedroom rural dwelling in a desirable Dorset village — well suited to someone who can manage a conversion project and who values a quiet countryside position with local amenities close by.
Cottage for sale in Okeford Fitzpaine. Barn Development with 2.5 Acres, DT11 — £375,000 • 1 bed • 1 bath
Land for sale in Okeford Fitzpaine, Dorset, DT11 — £250,000 • 1 bed • 1 bath • 8712 ft²
Plot for sale in The Common Okeford Fitzpaine, Blandford Forum, Dorset, DT11 — £90,000 • 1 bed • 1 bath • 1232 ft²
4 bedroom detached house for sale in Tiley, Middlemarsh, SHERBORNE, Dorset, DT9 — £450,000 • 4 bed • 1 bath
Land for sale in Lot 2 - Okeford Fitzpaine, Dorset, DT11 — £100,000 • 1 bed • 1 bath
Land for sale in Lot 1 - Okeford Fitzpaine, Dorset, DT11 — £125,000 • 1 bed • 1 bath










