Modern open-plan apartment near transport links and waterside walking routes.
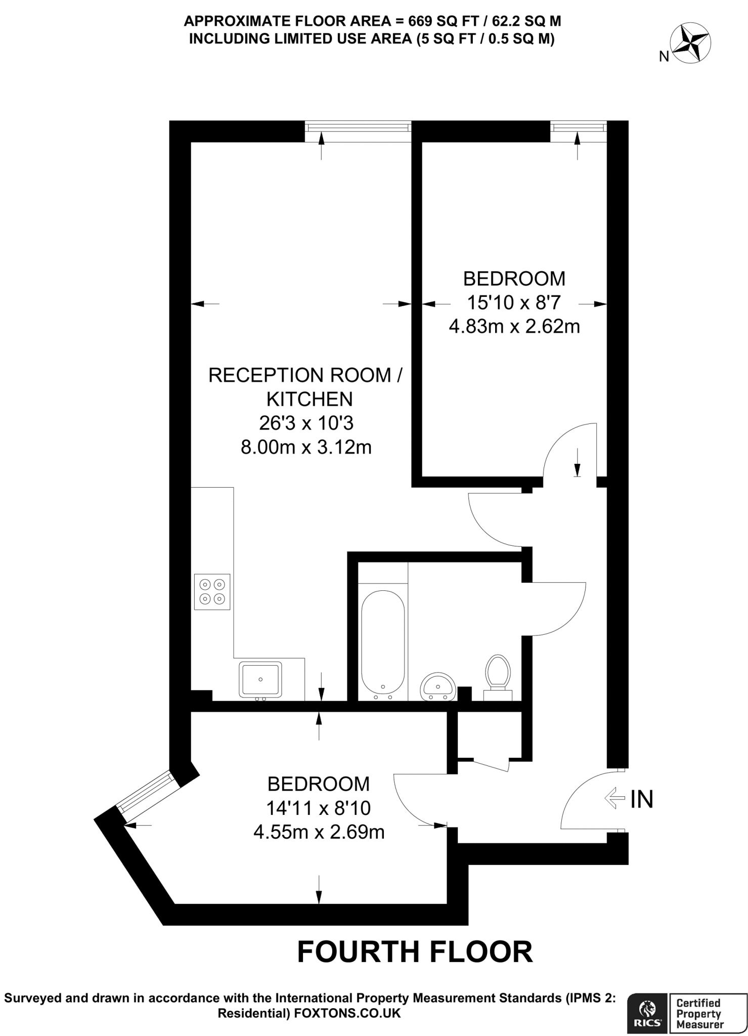
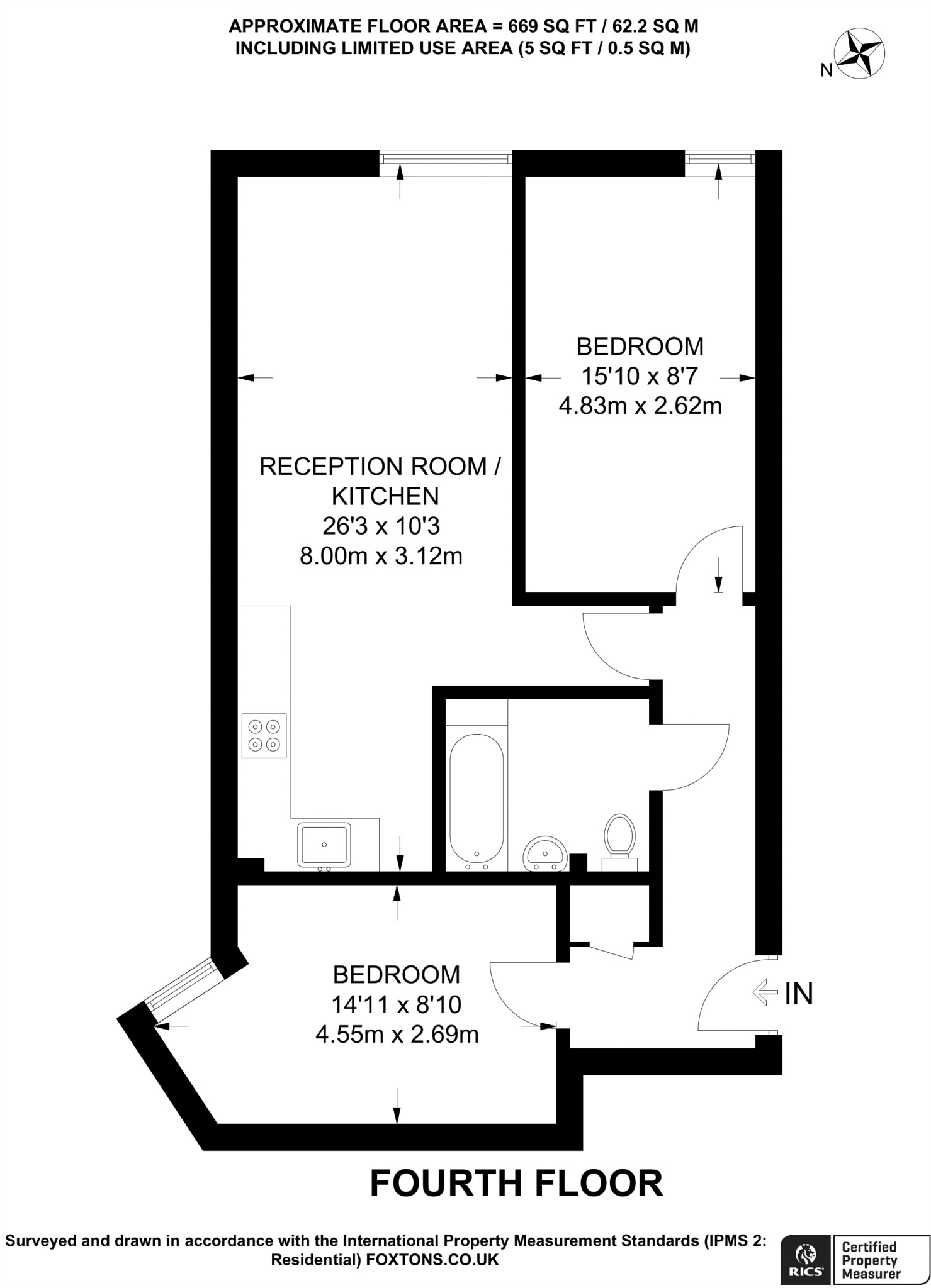
Fourth-floor two-bedroom flat with lift and secure entry system
Bright open-plan reception/kitchen with modern finishes
Canal views and easy access to Regents Canal towpath
Approx 669 sq ft — comfortable two-bedroom layout
Double glazing and mains gas central heating, low maintenance
Lease c.80 years remaining — lenders may refuse mortgages
Very high local crime and area deprivation — consider security
Close to Camden Road and Mornington Crescent stations, schools
Set on the fourth floor of a contemporary purpose-built block, this two-bedroom apartment offers bright, open-plan living with canal views. The reception and kitchen flow together, with modern finishes, double glazing and wood flooring giving a fresh, low-maintenance feel. Lift access and a secure entry system add everyday convenience.
The property sits close to the Regents Canal towpath and benefits from easy access to Camden Road and Mornington Crescent stations, plus frequent local buses. At about 669 sq ft the layout provides comfortable space for a couple or small family, and several well-regarded primary and secondary schools lie within easy reach.
Buyers should note the lease has around 80 years remaining; mortgage lenders can be selective on shorter leases and this could affect financing. The surrounding area is inner-city and has a very high recorded crime level and pockets of deprivation; factor this into commuting, lifestyle and insurance considerations.
Overall, the flat suits a first-time buyer seeking modern, well-connected city living with waterside character, or an investor comfortable managing lease and area-related factors. The apartment is ready to move into with scope to personalise, but longer-term purchasers may want to investigate lease extension options and local safety measures before committing.
2 bedroom flat for sale in Camden Road, Camden, London, NW1 — £950,000 • 2 bed • 2 bath • 872 ft²
1 bedroom apartment for sale in St Pancras Way, London, NW1 — £425,000 • 1 bed • 1 bath • 560 ft²
1 bedroom flat for sale in St. Pancras Way, Camden Town, NW1 — £445,000 • 1 bed • 1 bath • 533 ft²
2 bedroom flat for sale in Centric Close, Camden Town, London, NW1 — £1,000,000 • 2 bed • 1 bath • 894 ft²
1 bedroom flat for sale in St. Pancras Way, London, NW1 — £410,000 • 1 bed • 1 bath • 531 ft²
1 bedroom flat for sale in St. Pancras Way, Camden, NW1 — £425,000 • 1 bed • 1 bath • 530 ft²


















































































































