LA16 7FN - 2 bedroom semidetached bungalow for sale in School View, Lo…

View on Property Piper

2 bedroom semi-detached bungalow for sale in School View, Lots Road, Askam-in-Furness, LA16

Summary - 13 School View, ASKAM-IN-FURNESS LA16 7FN

2 bed 1 bath Semi-Detached Bungalow

**Standout Features:**
- Brand new semi-detached bungalow (constructed 2023)
- Two spacious bedrooms and a stylish family bathroom
- Fitted kitchen with integrated appliances (subject to build stage)
- Driveway for off-road parking and a sizeable rear garden
- Gas central heating and double glazing throughout
- Located in a family-friendly community near the sea with excellent local amenities
- A low management service fee of £250/year

**Summary:**
Welcome to this modern two-bedroom semi-detached bungalow on School View, nestled in the charming community of Askam-in-Furness. With its inviting entrance hall, spacious lounge that features French doors leading to a light-filled rear garden, and a contemporary fitted kitchen, this newly built home offers an ideal blend of comfort and style for families, young professionals, and those looking to downsize.

Situated just a stone's throw from local amenities, including schools with good Ofsted ratings, this property makes daily life convenient and enjoyable. The excellent broadband speeds and low crime rate enhance the appeal, making it perfect for those seeking a secure and connected lifestyle. Future owners will benefit from a 10-year warranty and can envision personal touches within the spacious layout. While the management fee is modest, it provides additional peace of mind in this beautifully designed community. Don’t miss the chance to own a piece of this exclusive development; schedule a viewing today and imagine your future in this lovely home!

Property Details

Image Descriptions

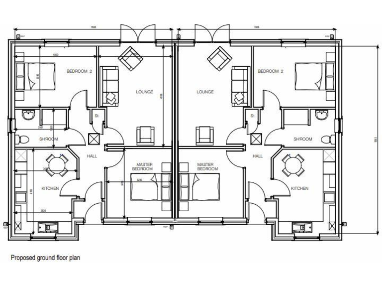
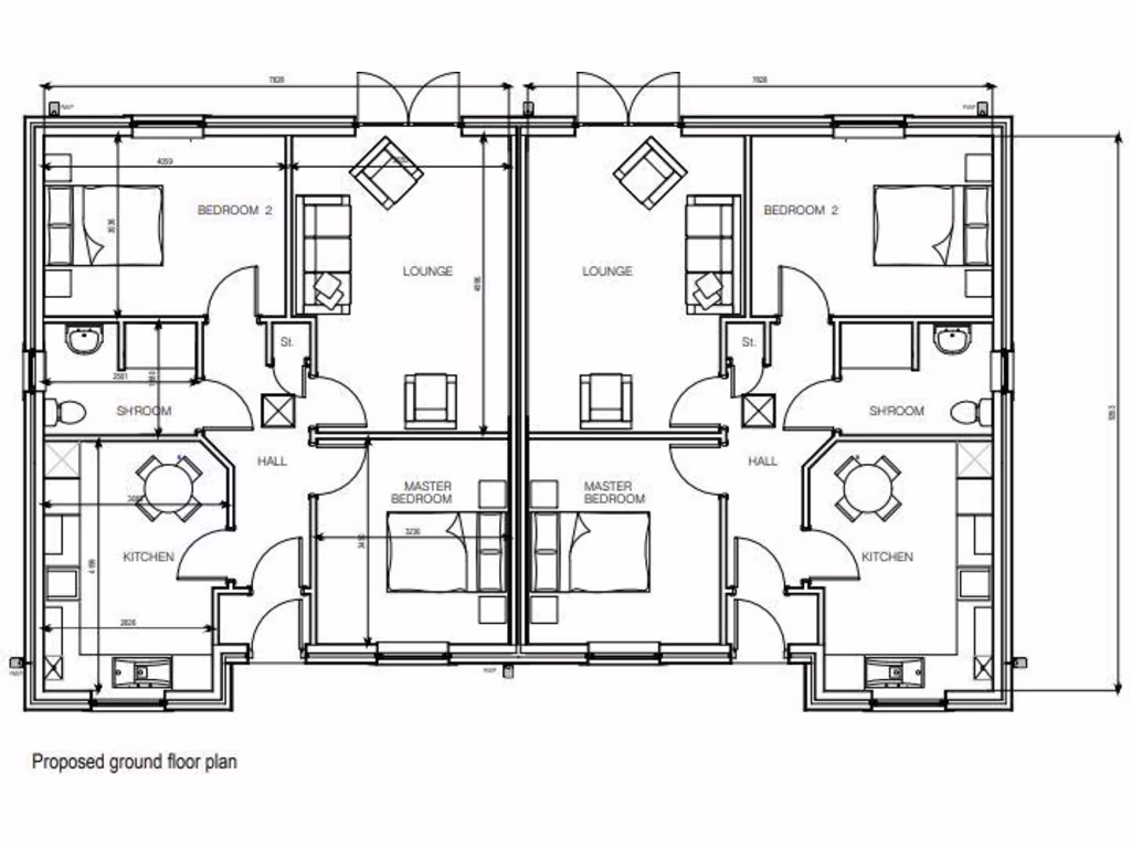
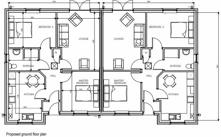
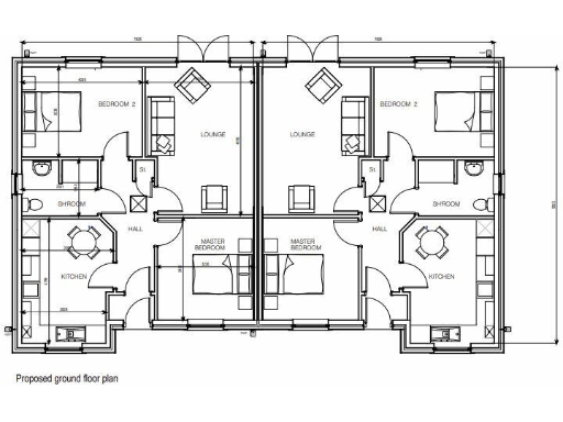
Floorplan Description

Rooms

Textual Property Features

Detected Visual Features

EPC Details

Nearby Schools

Nearest Bars And Restaurants

,,,,}

Nearest General Shops

,,}

Nearest Grocery shops

,,}

Nearest Supermarkets

,,}

Nearest Religious buildings

,,}

Nearest Medical buildings

,,,}

Nearest Leisure Facilities

,,,,}

Nearest Tourist attractions

,,}

Nearest Train stations

,,,,}

Nearest Bus stations and stops

,,,,}

Nearest Hotels

,,}

Tags

Local Market Stats

Similar Properties

Meta

High Res Images

Compatible Images

Low res Images

Thumbnails

Raw Images

High Res Floorplan Images

Compatible Floorplan Images

Low res Floorplan Images

FloorplanImages Thumbnail

Raw Floorplan Images