**Standout Features:**
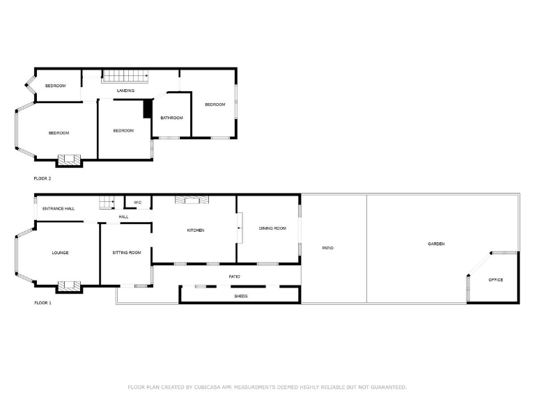
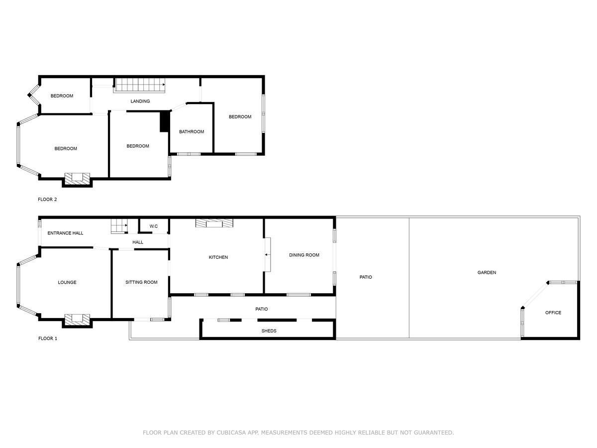
- Extended four-bedroom semi-detached character home
- Luxury fitted kitchen with island and spacious dining area
- High ceilings and many original period features
- South-east facing rear garden with outbuildings including a summerhouse/office
- Off-street parking for 1-2 vehicles
- No onward chain for a seamless purchase
- Ideal location near Chalkwell Beach and Chalkwell Station
Located in the heart of Leigh-on-Sea, this delightful extended four-bedroom semi-detached home seamlessly blends character with modern family living. With high ceilings and numerous original features, this spacious abode invites you in with a generous entrance hall leading to a cozy lounge and a snug family room, perfect for relaxation. The heart of the home is the luxurious fitted kitchen, complete with a central island and steps down to a dining area that overlooks the charming south-east facing garden, creating an inviting space for family gatherings.
Situated within easy walking distance of local amenities, including the vibrant Leigh Road and Broadway, as well as direct train access to London Fenchurch Street, this property offers unparalleled convenience. The garden is an outdoor oasis, featuring several outbuildings that present additional versatility—whether for workspace or leisure. Families will appreciate the nearby well-regarded schools, which cater to all ages.
Although the property is primed for immediate enjoyment, it holds wonderful potential for further personalization and improvement. Don’t miss this exclusive opportunity to own a charming character home in a highly sought-after area—schedule your viewing today!















































































































































