Five bedrooms, modern kitchen and large southerly garden near top schools and parks.
Five bedrooms over three floors, including top-floor en-suite suite
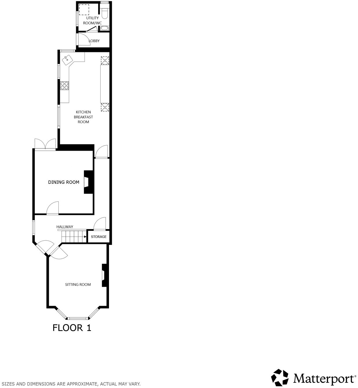
Bay-fronted reception room, high ceilings and many original features
Modern fitted kitchen/breakfast room with integrated appliances
Utility room with ground-floor WC; two generous reception rooms
Southerly rear garden, off-street parking and single garage
Part under-floor heating in bathrooms; gas central heating throughout
Solid-brick walls assumed uninsulated; EPC rating E (energy improvements advised)
Council tax band above average; household running costs may be higher
This bay-fronted semi-detached property in Stoneygate combines period character with contemporary updates across approximately 1,841 sq ft. Original features such as high ceilings, bay windows and a decorative entrance hall sit alongside a modern fitted kitchen/breakfast room, two reception rooms and useful utility with ground-floor WC — making daily living comfortable and flexible for a growing household.
Accommodation is arranged over three levels and includes five bedrooms, an en-suite shower room and a family bathroom; the top-floor suite and bathrooms benefit from part under-floor heating. The house sits on a small gated frontage with off-street parking and garage, and a substantial southerly rear garden that provides private outdoor space for children and entertaining.
Practical points to note: the building is solid-brick and double-glazed, but insulation within the walls is assumed absent and the EPC is rated E, so energy-efficiency improvements would be beneficial. Council tax is above average. For buyers who value location, this address offers excellent access to local independent shops, parks, the University, hospitals and a strong selection of nearby schools.
Overall this freehold property will suit buyers seeking a character residence with contemporary living spaces and potential to increase thermal performance and long-term value.
5 bedroom terraced house for sale in Knighton Drive, Stoneygate, Leicester, LE2 — £675,000 • 5 bed • 2 bath • 2077 ft²
5 bedroom detached house for sale in Morland Avenue, Stoneygate, Leicester, LE2 — £825,000 • 5 bed • 2 bath • 2400 ft²
4 bedroom semi-detached house for sale in Dovedale Road, Stoneygate, Leicester, LE2 — £600,000 • 4 bed • 2 bath • 1600 ft²
5 bedroom character property for sale in Knighton Drive, Stoneygate, Leicester, LE2 — £695,000 • 5 bed • 2 bath • 2807 ft²
5 bedroom semi-detached house for sale in Knighton Drive, Stoneygate , LE2 — £725,000 • 5 bed • 2 bath • 2853 ft²
6 bedroom character property for sale in Alexandra Road, Stoneygate, Leicester, LE2 — £650,000 • 6 bed • 2 bath • 2668 ft²










































































































































































