Modern first-floor flat with balcony and gated parking near park and station.
One double bedroom, compact but well planned layout
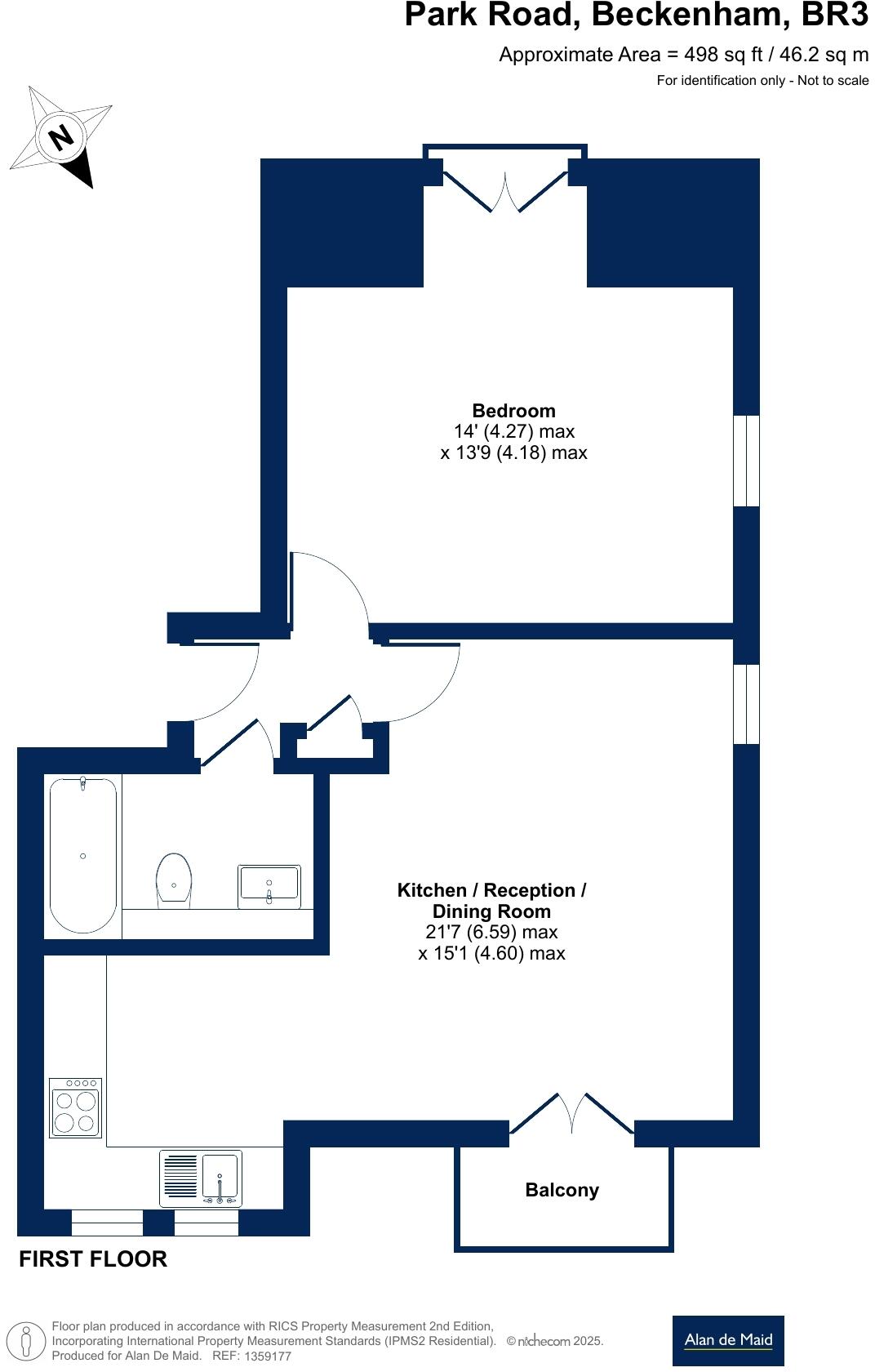
This well-presented one-bedroom first-floor flat on Park Road offers low-maintenance, modern living minutes from Beckenham Place Park and Beckenham Junction station. The open-plan living area opens onto a private balcony, bringing in light and creating a pleasant spot for morning coffee. The interior feels contemporary throughout, with fitted kitchen and a neatly finished bathroom.
Practical conveniences include gated allocated parking, attractive communal gardens and a share of freehold tenure — strong positives for both owner-occupiers and buy-to-let buyers. The building dates from the early 1990s and appears well maintained externally, sitting behind a low brick boundary and mature street trees for some added privacy.
Buyers should note the flat is compact at about 498 sq ft and is best suited to a single occupant or couple. Heating runs on electrically powered boiler and radiators, which can increase running costs compared with gas. Broadband speeds are average and details on service charges and any ground rent are not supplied, so budget for communal maintenance costs when considering affordability.
Overall this flat combines a desirable Beckenham location, secure parking and modern presentation — a sensible pick for a first-time buyer seeking a manageable city-suburban home or an investor after a straightforward rental proposition. Viewings will suit those prioritising location and convenience over generous internal space.
2 bedroom flat for sale in Southend Road, Beckenham, BR3 — £400,000 • 2 bed • 2 bath • 787 ft²
1 bedroom flat for sale in Rectory Road, Beckenham, Kent, BR3 — £250,000 • 1 bed • 1 bath • 458 ft²
1 bedroom apartment for sale in Park Road, Beckenham, Bromley, BR3 — £350,000 • 1 bed • 1 bath • 588 ft²
2 bedroom apartment for sale in Bromley Road, Beckenham, BR3 — £425,000 • 2 bed • 2 bath • 788 ft²
1 bedroom apartment for sale in Wessex Court, Beckenham Road, Beckenham, BR3 — £275,000 • 1 bed • 1 bath • 451 ft²
1 bedroom apartment for sale in Park Road, Beckenham, BR3 — £339,995 • 1 bed • 1 bath • 600 ft²






































