SR2 9SH - 3 bedroom semidetached house for sale in Acklam Avenue, SUN…

View on Property Piper

3 bedroom semi-detached house for sale in Acklam Avenue, SUNDERLAND, Tyne and Wear, SR2

Summary - 6 ACKLAM AVENUE SUNDERLAND SR2 9SH

3 bed 1 bath Semi-Detached

Characterful 1930s three-bed with parking, short drive to the coast and A19..
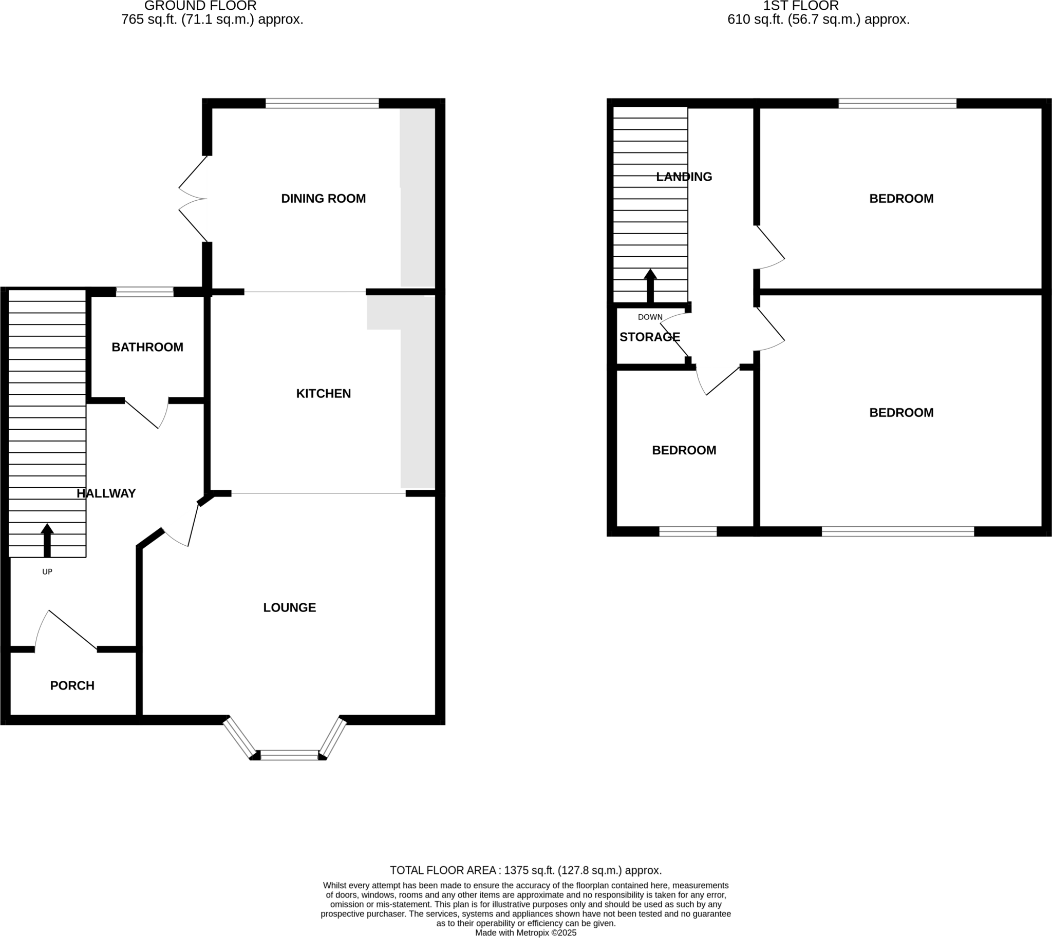
Three bedrooms with family bathroom, good-sized rooms
A roomy three-bedroom semi-detached house in a 1930s build, set on a modest plot with off-street parking and both front and rear gardens. The open-plan ground floor links lounge, dining and a modern kitchen to create a bright, sociable living space that suits family life and everyday entertaining. Bedrooms are well-proportioned and the property is presented in good order throughout.

Practical benefits include freehold tenure, mains gas central heating, double glazing and a D-rated EPC. The location is commuter-friendly: the A19 is around five minutes away and the coast is an approximate five-minute drive, offering easy access to seaside walks without being directly on the seafront. Broadband and mobile signal are strong locally.

Be aware of a few material points: the plot is relatively small, so outdoor space is limited; glazing predates 2002 and the EPC is D, which may mean improvement work to cut running costs; and local crime statistics are above average, which may influence suitability for some buyers. Overall this house will suit growing families or commuters wanting a spacious, characterful home near the coast with parking and room to personalise.

Property Details

Brochure Descriptions

Image Descriptions

Floorplan Description

Rooms

Textual Property Features

Target Audience

AI Tags

Detected Visual Features

EPC Details

Nearby Schools

Nearest Bars And Restaurants

,,,,}

Nearest General Shops

,,}

Nearest Grocery shops

,,}

Nearest Supermarkets

,,}

Nearest Religious buildings

,,}

Nearest Medical buildings

,,,}

Nearest Airports

,}

Nearest Leisure Facilities

,,,,}

Nearest Tourist attractions

,,}

Nearest Train stations

,,,,}

Nearest Bus stations and stops

,,,,}

Nearest Hotels

,,}

Tags

Local Market Stats

Similar Properties

Meta

High Res Images

Compatible Images

Low res Images

Thumbnails

Raw Images

High Res Floorplan Images

Compatible Floorplan Images

Low res Floorplan Images

FloorplanImages Thumbnail

Raw Floorplan Images