Large countryside home with parking, workshop and annex potential.
Detached barn conversion with character features and exposed beams
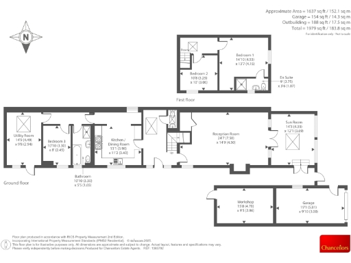
Set in the desirable village of Bucknell, this substantial barn conversion offers flexible family living across nearly 2,000 sq ft. The ground floor feels spacious and characterful, with exposed beams, quarry tiles and two feature log burners creating cosy living spaces. A sunroom overlooks private, low-maintenance gardens, while the kitchen/dining room with a Range cooker sits conveniently to the rear.
Accommodation is currently arranged as three bedrooms plus a versatile ground-floor room and two bathrooms. The ground-floor room and adjacent utility provide simple potential to form a fourth bedroom or a self-contained annex with its own entrance. The first floor houses a master bedroom with en-suite shower and a further guest bedroom.
Practical benefits include driveway parking for multiple vehicles, a carport, and a workshop/garage with electric supply. The property is sold freehold and with no onward chain, offering a quicker move for buyers. Nearby village amenities, a local train station and several well-regarded schools add everyday convenience for families.
Buyers should note the property’s older construction: solid brick walls are assumed uninsulated and the heating is oil-fired with a boiler and radiators. There is a medium flood risk for the area, and some buyers may wish to upgrade insulation or update services. These are important considerations when assessing running costs and renovation potential.
5 bedroom barn conversion for sale in Bucknell, Shropshire, SY7 — £500,000 • 5 bed • 2 bath • 2876 ft²
4 bedroom detached bungalow for sale in Bucknell, Shropshire, SY7 — £450,000 • 4 bed • 2 bath • 1546 ft²
3 bedroom end of terrace house for sale in Bucknell, Shropshire, SY7 — £320,000 • 3 bed • 1 bath • 1256 ft²
3 bedroom detached house for sale in Bucknell, Bucknell, SY7 — £230,000 • 3 bed • 1 bath • 1316 ft²
4 bedroom barn conversion for sale in Wrentnall, Pulverbatch, Shrewsbury, SY5 — £595,000 • 4 bed • 3 bath • 2757 ft²
4 bedroom barn conversion for sale in Leebotwood, Church Stretton, SY6 — £480,000 • 4 bed • 3 bath • 1836 ft²


























































































