Spacious family living with driveway and garden near good schools.
Over 2,000 sq ft across three floors, including loft room
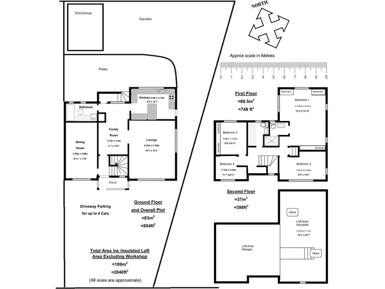
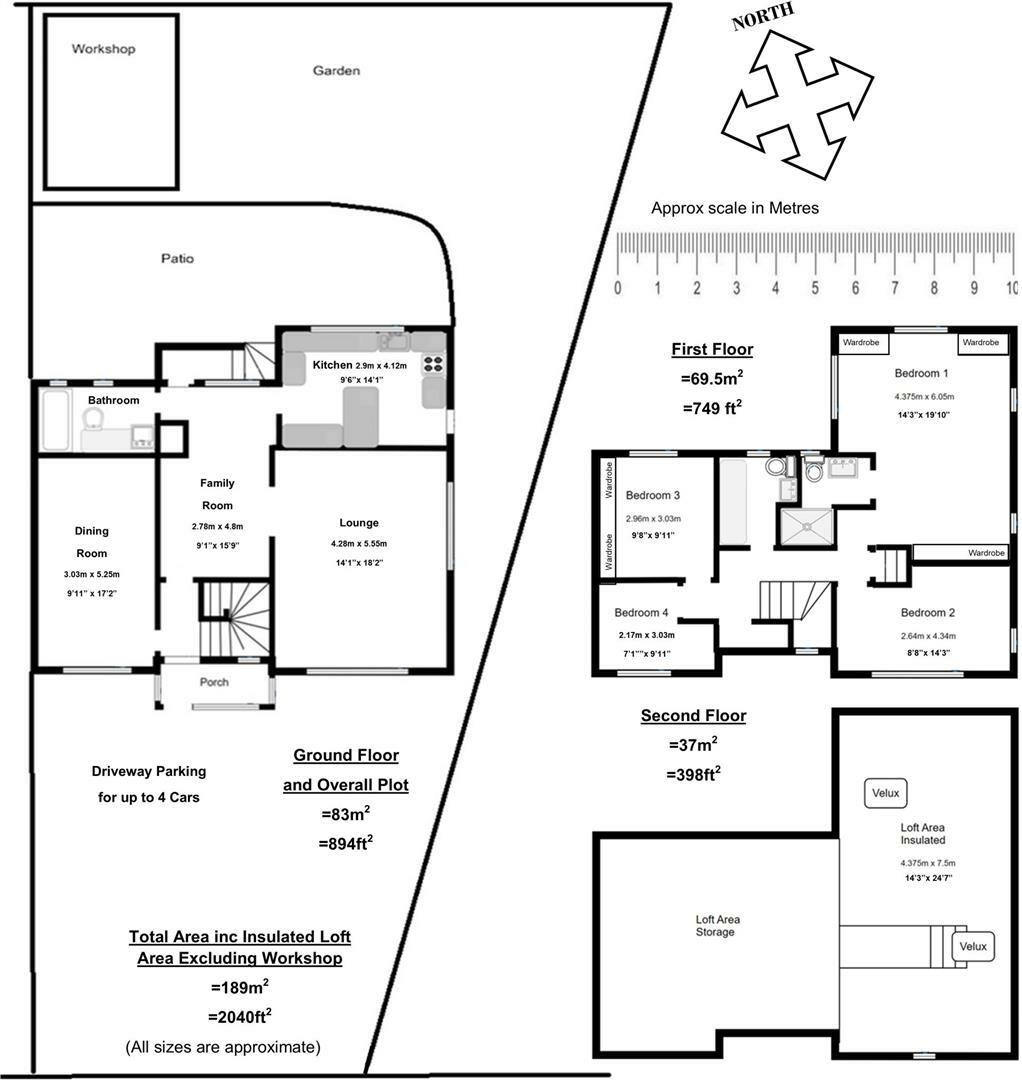
This spacious semi-detached house is arranged over three floors and offers more than 2,000 sq ft of flexible family living. The ground floor provides generous reception space for family life and entertaining, including an 18'x14' lounge, large dining room and separate play/family room, while the kitchen/breakfast room opens onto a private, landscaped garden with patio, pond and a powered workshop.
The first floor delivers three good-sized bedrooms and a family bathroom, while the triple-aspect master suite benefits from built-in wardrobes, an en-suite and elevated valley views. A converted loft room plus a fully boarded walk-in loft provide valuable additional living and storage space — useful for a growing family or home working.
Recent works include a new boiler and mains water supply pipe fitted in 2024 and a new mains electrical distribution board installed in 2023, which reduce immediate maintenance concerns. Driveway parking for three to four vehicles and a secluded rear garden add practical everyday benefits, and the property is offered chain free for a quicker move.
Buyers should note the property’s mid-20th-century construction: double glazing pre-dating 2002 and solid brick walls (insulation assumed absent) mean improvements such as upgraded insulation or window replacement could be considered to improve comfort and EPC rating (currently D). Council tax band D applies. Overall this is a roomy family home with strong location and school access, ready to occupy with sensible improvement potential.
4 bedroom detached house for sale in High Street South, Northchurch, Berkhamsted, HP4 — £975,000 • 4 bed • 3 bath • 2000 ft²
3 bedroom semi-detached house for sale in Valley Road, Northchurch, Berkhamsted, HP4 — £625,000 • 3 bed • 1 bath • 876 ft²
4 bedroom house for sale in Lyme Avenue, Northchurch, Berkhamsted, Hertfordshire, HP4 — £675,000 • 4 bed • 2 bath • 1331 ft²
4 bedroom semi-detached house for sale in Lyme Avenue, Northchurch, Berkhamsted, HP4 — £795,000 • 4 bed • 2 bath • 1804 ft²
5 bedroom semi-detached house for sale in Dell Road, Northchurch, Berkhamsted, HP4 — £900,000 • 5 bed • 3 bath • 1984 ft²
4 bedroom semi-detached house for sale in Dell Road, Northchurch, Berkhamsted, Hertfordshire HP4 — £725,000 • 4 bed • 1 bath • 1355 ft²






















































































































































