0.72 acre plot with garage, flexible layout and convenient transport links.
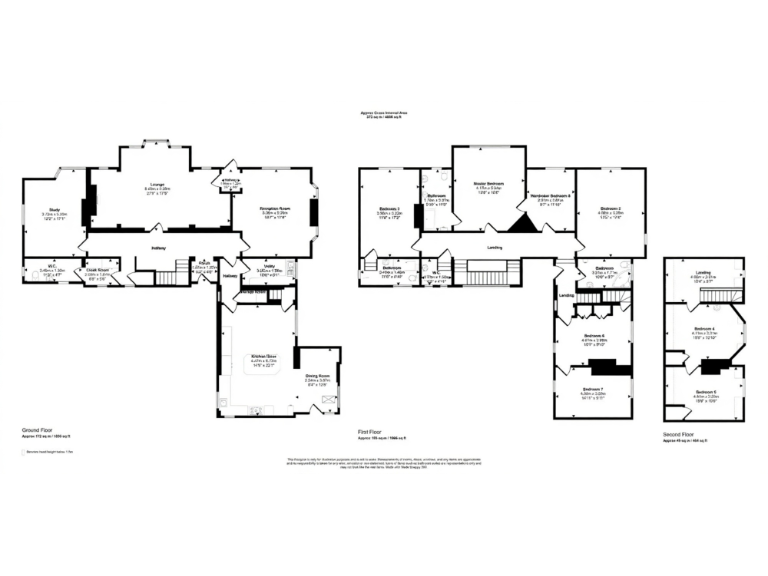
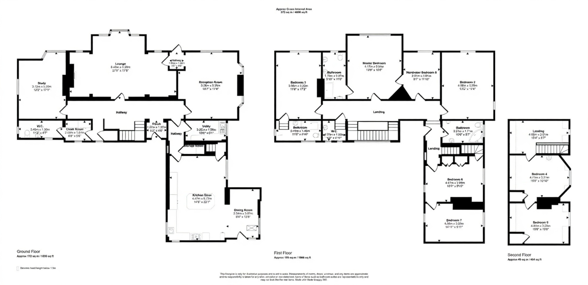
Seven bedrooms and three reception rooms — substantial family accommodation
Set well back from Meadow Road, this substantial detached period‑style house occupies a very large 0.72 acre plot with mature gardens, automated gated driveway and detached double garage. The property extends to around 4,006 sq ft across multiple storeys and offers seven bedrooms, three reception rooms and three bathrooms — space enough for a large or multi‑generational family, home office suites or conversion to separate living zones.
The interior retains traditional proportions and features such as high ceilings, parquet flooring and generous room sizes. A large open‑plan kitchen/dining/family room sits at the heart of the house, while multiple reception rooms provide flexible living and entertaining options. The garden is mainly lawned, bordered by mature trees that create a private and sheltered outside space.
There is clear potential to modernise or reconfigure parts of the house to suit contemporary family living; some areas will benefit from cosmetic updating and modern services to fully unlock the property’s value. Buyers should note the home sits within the Calthorpe Estate and is subject to Scheme of Management charges. Council tax is very expensive and local crime levels are above average — factors to weigh alongside the property’s size and location.
For families the location scores highly for access to a wide choice of state and independent schools and nearby sporting venues. Excellent road links and strong mobile and broadband connectivity make the house convenient for commuters and home workers. The property is offered freehold and connected to mains services.
7 bedroom detached house for sale in Meadow Road, Harborne, Birmingham, B17 — £1,700,000 • 7 bed • 3 bath • 4000 ft²
6 bedroom detached house for sale in Portland Road, Birmingham, B17 8LR, B17 — £770,000 • 6 bed • 4 bath • 2735 ft²
6 bedroom house for sale in Rednal Road, Birmingham, B38 — £1,180,000 • 6 bed • 3 bath • 2874 ft²
5 bedroom detached house for sale in Chad Road, Edgbaston, Birmingham, B15 — £1,525,000 • 5 bed • 2 bath • 3536 ft²
6 bedroom detached house for sale in Woodbourne Road, Harborne, Birmingham, B17 — £2,995,000 • 6 bed • 4 bath • 6857 ft²
4 bedroom detached house for sale in Church Road, Edgbaston, Birmingham, B15 — £1,250,000 • 4 bed • 3 bath • 3259 ft²










































































