Contemporary family living close to riverside towpath and town amenities.
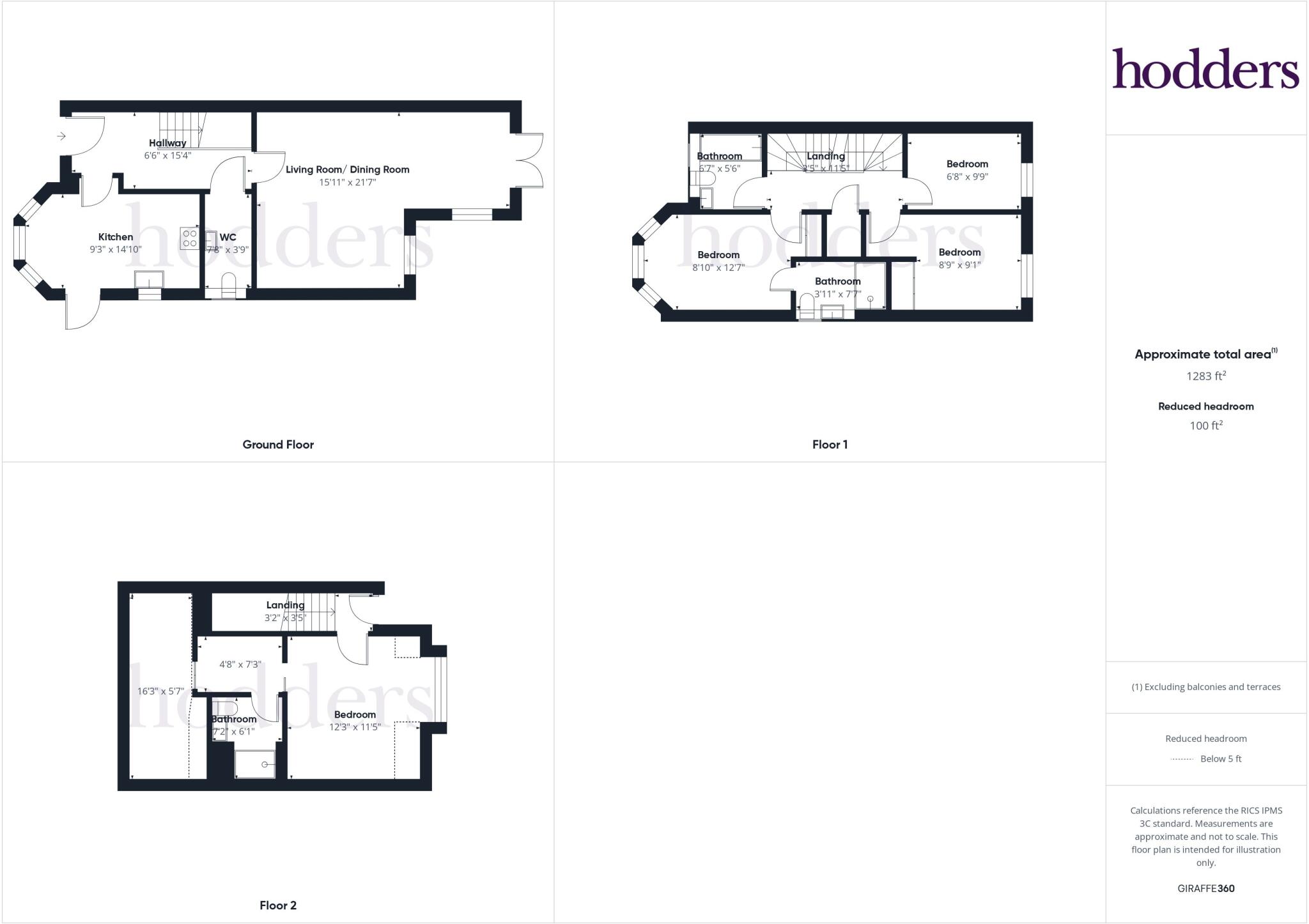
- Four bedrooms and three bathrooms across three floors
- Built in 2011, modern fittings and double glazing throughout
- Spacious open-plan living/dining room with French doors to garden
- Private off-street parking and gated paved forecourt
- Small, low-maintenance rear garden with good privacy from trees
- Medium flood risk; check resilience measures and insurance premiums
- Freehold tenure; council tax level described as expensive
- EPC awaiting; buyers should confirm rating before exchange
This modern semi-detached family home spans three floors and offers flexible living across approximately 1,283 sq ft. Built in 2011, the property feels contemporary throughout with a long open-plan living/dining room that opens to an enclosed rear garden, a fitted kitchen, and three bathrooms including two en-suites — practical for family life and visitors.
Light-filled rooms, double glazing and gas central heating deliver comfortable, low-maintenance day-to-day living. Off-street private parking and a paved, low-maintenance rear garden increase convenience for busy households. The home sits close to the River Thames towpath and Chertsey town centre, with good local primary and secondary schools and fast broadband for home working.
Buyers should note material facts: the plot is modest in size and the property sits in a medium flood-risk zone; Flood resilience and insurance costs should be checked. Council tax is described as expensive and the EPC is awaited. Overall, this freehold house will suit families seeking a modern, well-presented home near riverside amenities and reliable commuter links.
4 bedroom semi-detached house for sale in Thames Close, Chertsey, Surrey, KT16 — £625,000 • 4 bed • 3 bath • 1730 ft²
3 bedroom semi-detached house for sale in Fordwater Road, Chertsey, Surrey, KT16 — £465,000 • 3 bed • 2 bath • 1020 ft²
3 bedroom terraced house for sale in Chertsey, Surrey, KT16 — £439,950 • 3 bed • 1 bath • 872 ft²
4 bedroom end of terrace house for sale in St. Anns Hill Road, Chertsey, KT16 — £900,000 • 4 bed • 2 bath • 1233 ft²
4 bedroom detached house for sale in Chertsey, Surrey, KT16 — £979,950 • 4 bed • 3 bath • 1758 ft²
4 bedroom semi-detached house for sale in Chertsey, Surrey, KT16 — £689,500 • 4 bed • 2 bath • 1595 ft²






































































































