Chain-free two-bed flat with private garden, garage and balcony in sought-after Westbury on Trym.
Chain-free two-bedroom apartment with private garden
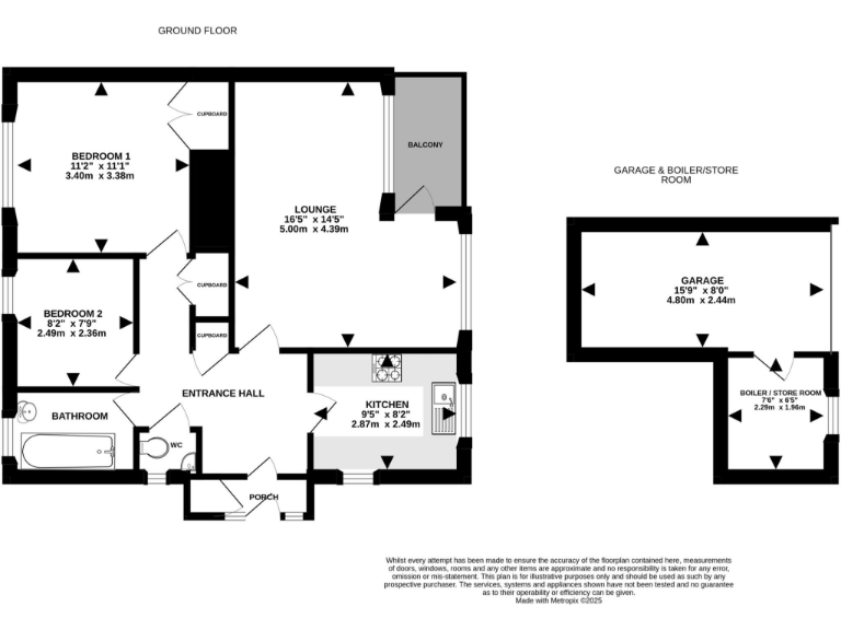
Light-filled two-bedroom apartment set on a quiet Westbury on Trym street, offered chain-free and with a private garden. The hall-floor layout gives a sense of independence with its own entrance, while a rear lounge opens onto a balcony for outdoor sitting. A single garage and driveway parking add practical convenience for families or commuters.
Internally the accommodation feels balanced and well-proportioned for its size, with fitted storage, a good-sized master bedroom and a second bedroom both overlooking the garden. The kitchen has ample worktop and integrated appliances, and there is a separate WC in addition to the bathroom. The apartment measures about 61 sqm (503 sq ft) — compact but usefully planned.
The property sits within a very affluent, low-crime area with excellent mobile and broadband connectivity and walking distance to Westbury on Trym village amenities, green spaces and well-regarded schools. Tenure is leasehold with a very long lease (around 999 years) and a very low ground rent (£12.60/year). There is no set management charge, but owners share 50% of any required works with the other flat owner.
Buyers should note the building dates from the mid-20th century and external descriptions reference mid-century materials; potential buyers may wish to investigate any asbestos-containing materials and general maintenance of older concrete/roof extensions. The apartment has a single bathroom, and its overall footprint is modest, so it will suit those prioritising location, outdoor space and parking over large internal floor area.
2 bedroom apartment for sale in Westover Road, Westbury on Trym, BS9 — £260,000 • 2 bed • 1 bath • 647 ft²
2 bedroom apartment for sale in Northover Road, Bristol, BS9 — £280,000 • 2 bed • 1 bath • 695 ft²
2 bedroom flat for sale in Clover Ground | Westbury On Trym, BS9 — £250,000 • 2 bed • 1 bath • 883 ft²
2 bedroom flat for sale in Stratford Court, Westover Gardens, Bristol, BS9 — £265,000 • 2 bed • 1 bath • 722 ft²
2 bedroom flat for sale in Ashdown Court, Northover Close, Bristol, BS9 — £210,000 • 2 bed • 1 bath • 710 ft²
2 bedroom flat for sale in Falcondale Road, Westbury-on-Trym, BS9 — £285,000 • 2 bed • 1 bath • 807 ft²






















































































