BB1 4DZ - 3 bedroom end of terrace house for sale in Harwood Road, Ri…

View on Property Piper

3 bedroom end of terrace house for sale in Harwood Road, Rishton, Blackburn, BB1

Summary - 100 HARWOOD ROAD RISHTON BLACKBURN BB1 4DZ

3 bed 3 bath End of Terrace

**Standout Features:**
- Newly renovated end-terrace property
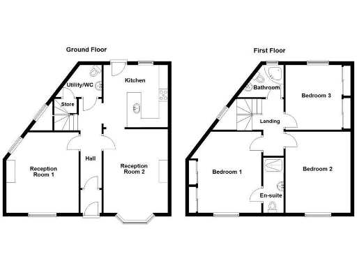
- Three spacious double bedrooms, including a master with en-suite
- Two well-appointed modern bathrooms
- Two generous reception rooms with original features
- Contemporary kitchen with integrated appliances and underfloor heating
- Low-maintenance enclosed rear yard perfect for entertaining
- Convenient on-street parking in a chain-free sale
- EPC Rating D; Council Tax Band B

This beautifully presented, newly renovated end-terrace property in Rishton emerges as an exceptional family home, offering a blend of modern living and classic charm. With 1,432 square feet of intelligently designed space, the home features three double bedrooms, ensuring comfort for every family member. The open-plan layout includes two inviting living rooms and a contemporary kitchen equipped with high-end appliances for effortless family gatherings.

The stylish interiors, high ceilings, and large windows create a serene atmosphere filled with natural light. Spend your evenings in the low-maintenance yard, featuring Indian stone paving and decking, perfect for summer barbecues. While the surrounding area has a higher-than-average crime rate and is classified as deprived, its convenient location near local schools and amenities, along with excellent transport links, provides significant upside for families and first-time buyers alike. Don’t miss your chance to move into this turn-key property that caters to all your needs. Act quickly—homes like this are rare finds!

Property Details

Brochure Descriptions

Image Descriptions

Floorplan Description

Rooms

Textual Property Features

Detected Visual Features

EPC Details

Nearby Schools

Nearest Bars And Restaurants

,,,,}

Nearest General Shops

,,}

Nearest Grocery shops

,,}

Nearest Supermarkets

,,}

Nearest Religious buildings

,,}

Nearest Medical buildings

,,,}

Nearest Leisure Facilities

,,,,}

Nearest Tourist attractions

,,}

Nearest Train stations

,,,,}

Nearest Bus stations and stops

,,,,}

Nearest Hotels

,,}

Tags

Local Market Stats

Similar Properties

Meta

High Res Images

Compatible Images

Low res Images

Thumbnails

Raw Images

High Res Floorplan Images

Compatible Floorplan Images

Low res Floorplan Images

FloorplanImages Thumbnail

Raw Floorplan Images