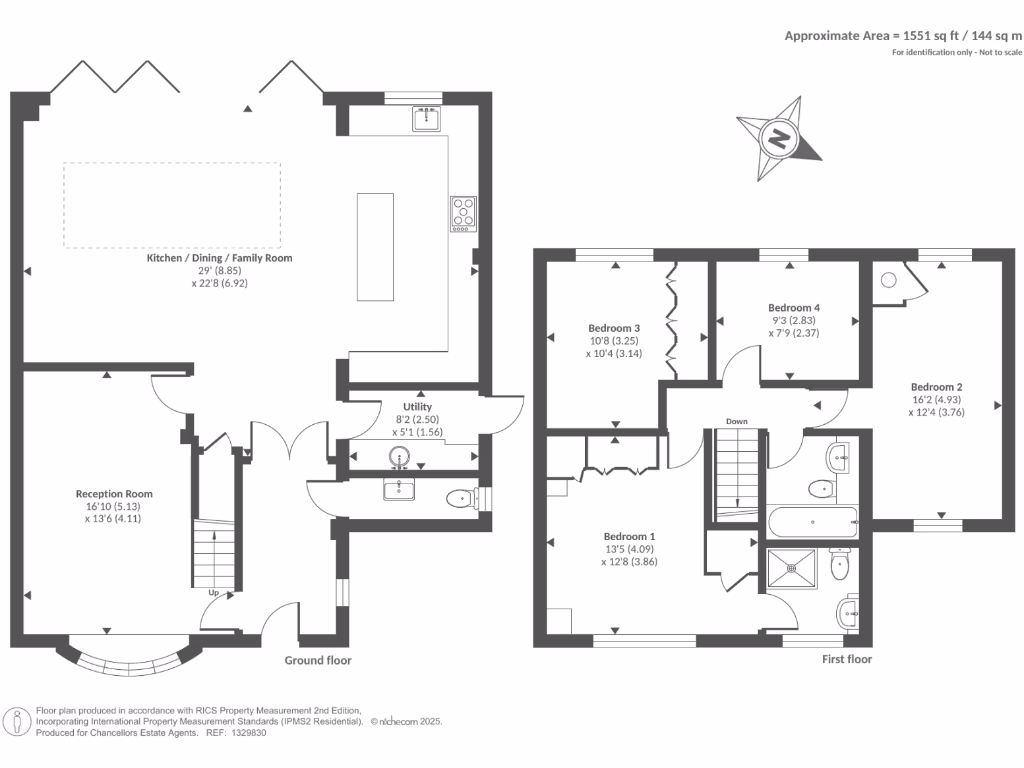
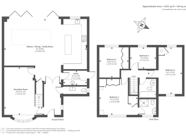
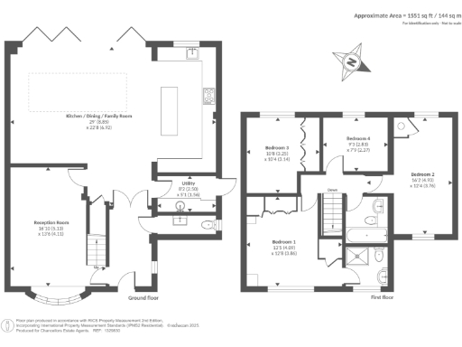
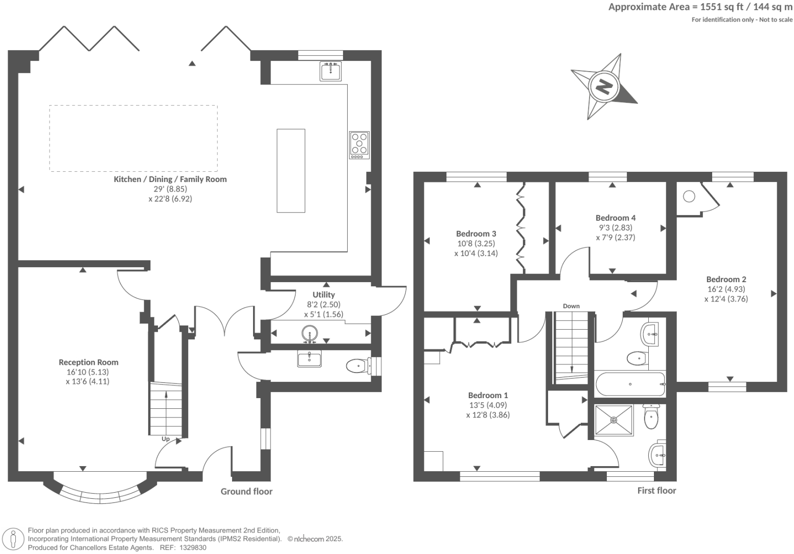
**Standout Features:**
- Four generous bedrooms, including a master suite with en suite and built-in wardrobes.
- Contemporary open-plan kitchen and reception area with bi-fold doors leading to the outdoor space.
- Spacious family/dining room, ideal for gatherings.
- Utility room and convenient downstairs cloakroom.
- Large patio area with artificial grass, perfect for low-maintenance outdoor living.
- Garage for parking and additional storage shed.
**Property Summary:**
Discover an exquisite four-bedroom detached home situated within a mile of Lightwater village—ideal for families seeking space and modern convenience. The heart of the home is the expansive open-plan kitchen and reception room, flooded with natural light and effortlessly connecting to a generous outdoor patio through stylish bi-fold doors. Enjoy the comfort of four well-proportioned bedrooms, including a luxurious master suite with en suite facilities, providing both privacy and elegance.
Outside, the large, artificial grass lawn offers an inviting area for children to play or for hosting summer barbecues, paired with the practicality of a storage shed. While the property exudes an appealing modern traditional charm and boasts excellent broadband and mobile connectivity, it presents a prime canvas for family living in an affluent community, close to highly-rated schools.
Although the council tax is relatively high, the investment in this property provides an unparalleled opportunity for a comfortable lifestyle in a secure and welcoming neighbourhood. With very low crime rates and a sense of community, this home is a rare find that combines style, space, and family-friendly features. Don’t miss your chance to embrace the comfort and excitement of your future home—it's waiting for you!
3 bedroom detached house for sale in Lightwater, Surrey, GU18 — £650,000 • 3 bed • 2 bath • 1274 ft²
4 bedroom detached house for sale in Lightwater, Surrey, GU18 — £875,000 • 4 bed • 2 bath • 2159 ft²
4 bedroom detached house for sale in Birchwood Drive, Lightwater, Surrey, GU18 — £725,000 • 4 bed • 3 bath • 1616 ft²
5 bedroom detached house for sale in Colville Gardens, Lightwater, Surrey, GU18 — £975,000 • 5 bed • 3 bath • 2666 ft²
4 bedroom detached house for sale in Junction Road, Lightwater, Surrey, GU18 — £725,000 • 4 bed • 2 bath • 1860 ft²
4 bedroom detached house for sale in Withy Close, Lightwater, Surrey, GU18 — £650,000 • 4 bed • 1 bath • 1118 ft²


































































































