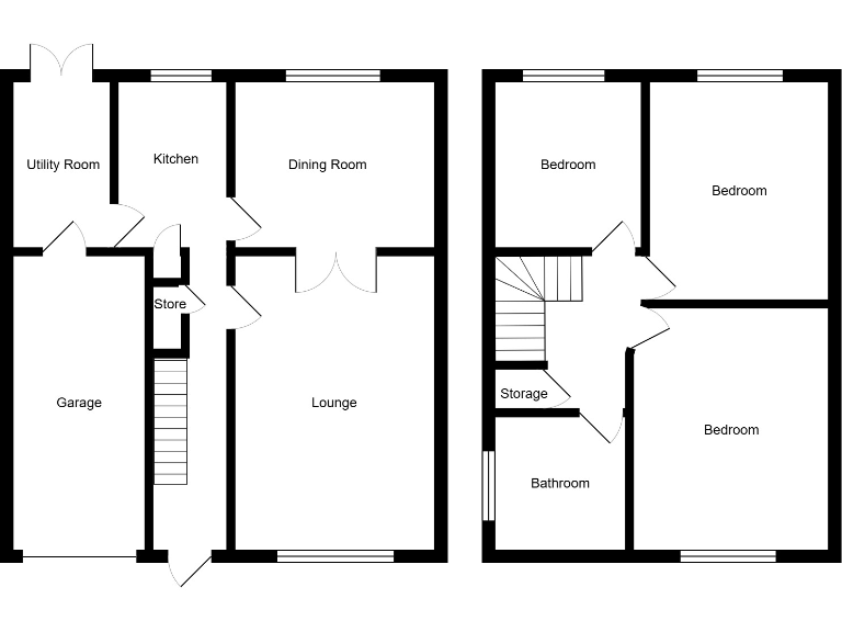
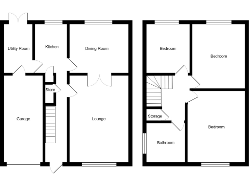
Renovation-ready family home with garage and enclosed garden.
Three bedrooms with built-in wardrobes in two rooms
A three-bedroom semi-detached house on Avondale Road offering a solid family layout and clear potential for modernisation. The property sits in an affluent suburb with good local schools, fast broadband and low crime — attractive features for families seeking a long-term home.
Ground floor accommodation includes two reception rooms, a functional kitchen with pantry and a separate utility room, providing everyday practicality. Large windows and a stone fireplace give the lounge character, while the dining room overlooks the rear garden. Upstairs are three bedrooms and a single bathroom; the master and second bedrooms both include built-in wardrobes.
Outside there is an enclosed split-level rear garden backing onto woodland, a single garage with internal access and a driveway for off-street parking. The house is freehold, in council tax band D, and sits at about 838 sq ft overall. This property is best suited to buyers willing to update finishes and styling to unlock its full value.
Notable drawbacks are its dated interior (carpets, plaster walls and older fixtures) and a single bathroom for three bedrooms — factors to consider for larger families. Early viewing is recommended for anyone wanting a family home in a desirable area with scope to add value through refurbishment.
 3 bedroom semi-detached house for sale in Sandals Road, Baildon, Shipley, BD17 — £325,000 • 3 bed • 1 bath • 1129 ft²
 3 bedroom semi-detached house for sale in Sandals Road, Baildon, Shipley, BD17 — £325,000 • 3 bed • 1 bath • 1129 ft² 3 bedroom semi-detached house for sale in Wrose View, Shipley, BD18 — £217,000 • 3 bed • 1 bath • 845 ft²
 3 bedroom semi-detached house for sale in Wrose View, Shipley, BD18 — £217,000 • 3 bed • 1 bath • 845 ft² 3 bedroom semi-detached house for sale in Cornwall Crescent, Baildon, Shipley, West Yorkshire, BD17 — £285,000 • 3 bed • 1 bath • 903 ft²
 3 bedroom semi-detached house for sale in Cornwall Crescent, Baildon, Shipley, West Yorkshire, BD17 — £285,000 • 3 bed • 1 bath • 903 ft² 4 bedroom semi-detached house for sale in West Avenue, Baildon, Shipley, West Yorkshire, UK, BD17 — £465,000 • 4 bed • 1 bath • 1799 ft²
 4 bedroom semi-detached house for sale in West Avenue, Baildon, Shipley, West Yorkshire, UK, BD17 — £465,000 • 4 bed • 1 bath • 1799 ft² 3 bedroom semi-detached house for sale in Acre Drive, Bradford, West Yorkshire, BD2 2LU, BD2 — £220,000 • 3 bed • 1 bath • 1145 ft²
 3 bedroom semi-detached house for sale in Acre Drive, Bradford, West Yorkshire, BD2 2LU, BD2 — £220,000 • 3 bed • 1 bath • 1145 ft² 3 bedroom semi-detached house for sale in St. Annes Terrace, Baildon, Shipley, BD17 — £300,000 • 3 bed • 1 bath • 803 ft²
 3 bedroom semi-detached house for sale in St. Annes Terrace, Baildon, Shipley, BD17 — £300,000 • 3 bed • 1 bath • 803 ft²






































































