NW3 3JH - 2 bed garden flat swiss cottage in 136, Fellows Road, NW3 3…

View on Property Piper

2 bedroom flat for sale in Fellows Road, Swiss Cottage, NW3

Summary - Fellows Road, NW3 NW3 3JH

2 bed 1 bath Flat

Sunny lower-ground home with private outside space and ready to move into.
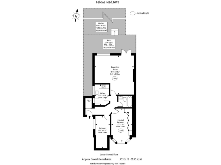
18' x 18' bright reception with direct private garden access
Share of freehold with 119 years remaining on the lease
Newly renovated throughout; double glazing fitted after 2002
Approximately 753 sq ft; two bedrooms with built-in wardrobes
Service charge around £1,200 per year; council tax above average
Mains gas boiler and radiators; fast broadband and excellent mobile signal
Solid brick walls likely without insulation — potential heat loss
0.2 miles to Swiss Cottage underground; close to Primrose Hill and schools
This attractive two-bedroom garden flat is presented in excellent order following a recent renovation, offering a bright 18' x 18' reception room with direct access to a private garden. The layout works well for everyday living and entertaining, with built-in wardrobes in both bedrooms and generous natural light through large windows and patio doors.

Practical details add to the appeal: a share of freehold, a long 119-year lease, double glazing (fitted post-2002), and a compact service charge of about £1,200 per year. The 753 sq ft interior is complemented by a sizeable outdoor area, rare for this part of NW3, and the property sits in a very affluent, low-crime neighbourhood with excellent mobile and fast broadband speeds.

Commuting and local life are convenient — the flat is approximately 0.2 miles from Swiss Cottage underground and close to Primrose Hill and several well-regarded schools. Heating is mains gas via boiler and radiators, and the building is a mid-terrace solid-brick period property typical of the 1900–1929 era.

A few practical points to note: the building’s original solid brick walls are assumed to have no cavity insulation, which may affect heating efficiency. Council tax is above average for the area. Overall, the property suits buyers seeking a move-in-ready urban home with private outdoor space, or investors wanting a well-presented garden flat in a desirable NW3 location.

Property Details

Brochure Descriptions

Image Descriptions

Floorplan Description

Rooms

Textual Property Features

Target Audience

AI Tags

Detected Visual Features

EPC Details

Nearby Schools

Nearest Bars And Restaurants

,,,,}

Nearest General Shops

,,}

Nearest Grocery shops

,,}

Nearest Supermarkets

,,}

Nearest Religious buildings

,,}

Nearest Medical buildings

,,,}

Nearest Airports

,}

Nearest Leisure Facilities

,,,,}

Nearest Tourist attractions

,,}

Nearest Train stations

,,,,}

Nearest Bus stations and stops

,,,,}

Nearest Hotels

,,}

Tags

Local Market Stats

AirBnB Data

Similar Properties

Meta

High Res Images

Compatible Images

Low res Images

Thumbnails

Raw Images

High Res Floorplan Images

Compatible Floorplan Images

Low res Floorplan Images

FloorplanImages Thumbnail

Raw Floorplan Images