SK7 6JZ - 3 bed cul de sac semi detached in Edale Close, SK7 6JZ

View on Property Piper

3 bedroom semi-detached house for sale in Edale Close, Hazel Grove, Stockport SK7 6JZ, SK7

Summary - 39 EDALE CLOSE HAZEL GROVE STOCKPORT SK7 6JZ

3 bed 1 bath Semi-Detached

Ready-to-move-in three-bed home with garden and garage, ideal for growing families.
- Three bedrooms in a practical family layout
- Good-sized rear garden backing onto railway embankment
- Detached single garage plus long driveway parking
- Within strong local school catchments and near station
- Gas central heating and double glazing already installed
- Single bathroom with electric shower; separate WC
- Double glazing pre-2002 may need future replacement
- Vacant possession and chain free for quick move
Set in a quiet cul-de-sac in Hazel Grove, this three-bedroom semi-detached home offers a practical family layout and immediate vacant possession. Built in the 1950s, the property sits within strong school catchments and is a short walk from the village centre and railway station, making commutes and school runs straightforward.

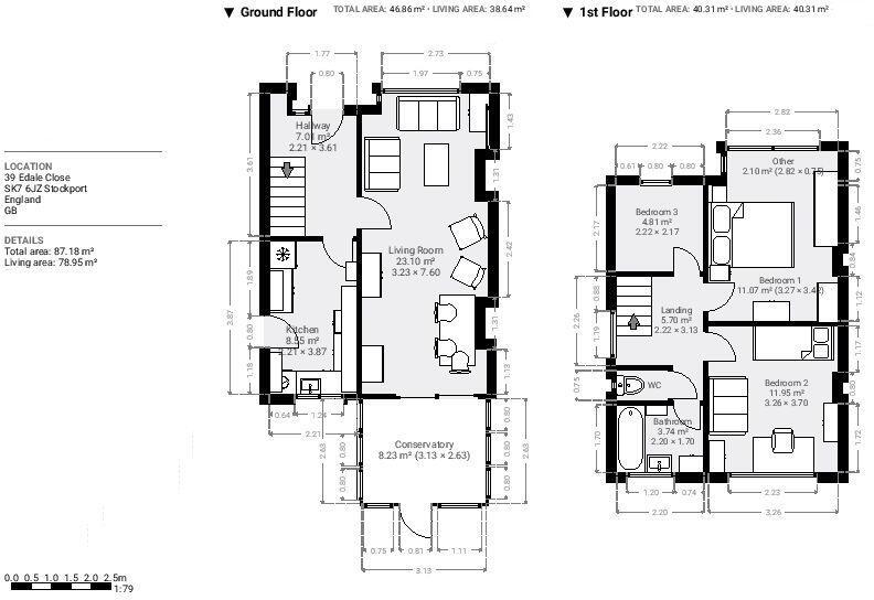
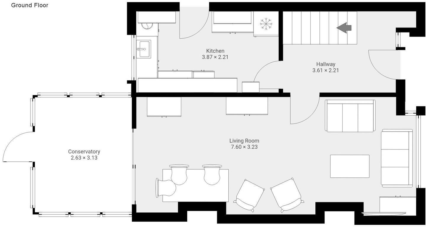
Internally the house offers a through living room, conservatory, kitchen with integrated cooker, three bedrooms, bathroom with electric shower and a separate WC. Gas central heating and double glazing are already installed, and the rear garden is of a good size, backing onto the railway embankment. A small detached garage and long driveway provide useful off-street parking.

The house is well suited to a family seeking a ready-to-move-into home in a very affluent area, with scope to modernise and add value. Buyers should note the single-family bathroom with electric shower and that the double glazing was fitted before 2002, which may mean windows are due for future replacement. There is also potential for refurbishment to update finishes and maximise the 938 sq ft floor area.

Chain-free sale and immediate vacant possession simplify the purchase. Overall this is a practical, well-located home with good outdoor space and straightforward renovation potential for someone wanting to personalise a classic 1950s suburban property.

Property Details

Image Descriptions

Floorplan Description

Rooms

Textual Property Features

Target Audience

AI Tags

Detected Visual Features

EPC Details

Nearby Schools

Nearest Bars And Restaurants

,,,,}

Nearest General Shops

,,}

Nearest Grocery shops

,,}

Nearest Supermarkets

,,}

Nearest Religious buildings

,,}

Nearest Medical buildings

,,,}

Nearest Airports

}

Nearest Leisure Facilities

,,,,}

Nearest Tourist attractions

,,}

Nearest Train stations

,,,,}

Nearest Bus stations and stops

,,,,}

Nearest Hotels

,,}

Tags

Local Market Stats

Similar Properties

Meta

High Res Images

Compatible Images

Low res Images

Thumbnails

Raw Images

High Res Floorplan Images

Compatible Floorplan Images

Low res Floorplan Images

FloorplanImages Thumbnail

Raw Floorplan Images