Affordable single-level living with garden and refurbishment potential near town and rail.
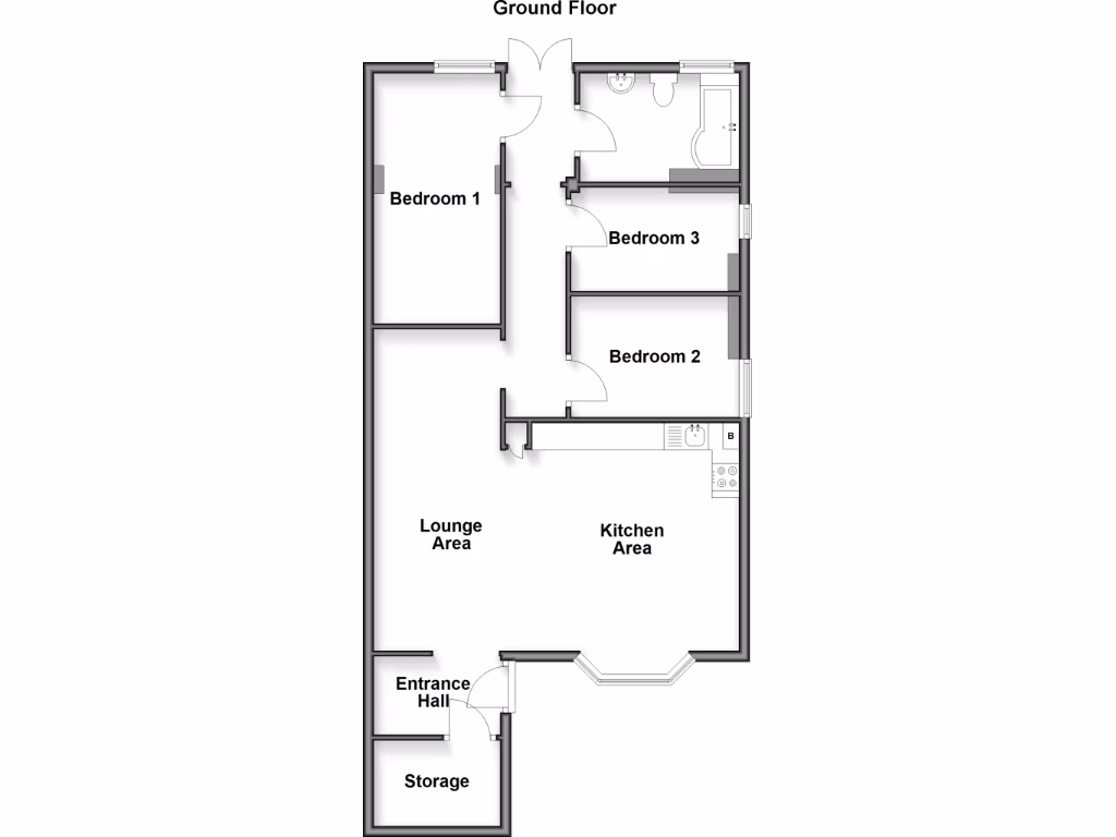
Ground-floor three-bedroom maisonette with private rear garden
This ground-floor, three-bedroom maisonette sits in a Victorian semi and includes a large private rear garden ready for landscaping. At 631 sq ft it offers compact, single-level living with high ceilings and period character that will appeal to those seeking a manageable home with outside space.
The property requires updating: heating is by electric room heaters, walls are likely uninsulated solid brick, and parts of the garden are overgrown. These are straightforward refurbishment jobs that present scope to add value and improve comfort, but budget for electrical/insulation upgrades and general redecoration.
This home is offered with a long lease (approx. 989 years) and is chain free. There is a Home for Life (Lifetime Lease) purchase option for buyers aged 60+, which can reduce the upfront cost (example guide price shown: £115,500 versus full market value £175,000). Exact Lifetime Lease terms and the percentage purchased vary by individual circumstances.
Location advantages include proximity to Dover town centre, regular bus routes and Dover Priory station with high-speed rail to London. Be aware the immediate area records very high crime and is classed as very deprived; there is also a medium flood risk. Service charge is modest and council tax is very low.
3 bedroom ground floor maisonette for sale in Maison Dieu Road, Dover, Kent, CT16 — £175,000 • 3 bed • 1 bath • 631 ft²
3 bedroom end of terrace house for sale in Woods Place, Dover, Kent, CT17 — £198,500 • 3 bed • 2 bath • 1411 ft²
3 bedroom end of terrace house for sale in Mayfield Avenue, Dover, Kent, CT16 — £145,500 • 3 bed • 1 bath • 624 ft²
3 bedroom terraced house for sale in Buckland Avenue, Dover, Kent, CT16 — £165,500 • 3 bed • 1 bath • 937 ft²
2 bedroom flat for sale in Templar Street, Dover, CT17 — £160,000 • 2 bed • 1 bath • 857 ft²
2 bedroom ground floor flat for sale in Ardent Road, Whitfield, Dover, Kent, CT16 — £119,500 • 2 bed • 1 bath • 448 ft²


















































