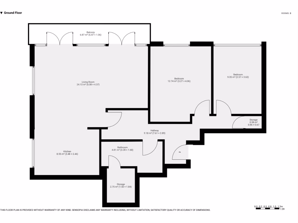
Chain-free two-bed apartment with parking and long lease in central L5..
- Chain-free sale with 977 years remaining on the lease
- Two double bedrooms within an 851 sq ft layout
- Off-street parking included
- Double glazing fitted post-2002
- Electric storage heating — potentially higher running costs
- Building from 1967–1975; communal maintenance likely
- Area classed as very deprived with high local crime levels
- Fast broadband and excellent mobile signal
A straightforward, well-sized two-bedroom apartment offering practical city living in L5. The property comes chain-free with a very long lease (977 years), off-street parking and an 851 sq ft layout that will suit first-time buyers or landlords seeking low-entry investment in a central location.
The flat benefits from double glazing installed since 2002, electric storage heating, built-in storage and generally modern finishes — ready for immediate occupation with scope for cosmetic updates. Broadband speeds are fast and mobile signal is excellent, supporting home working or rental demand from students and young professionals.
Be clear about local context: this address sits in a very deprived area with a higher-than-average crime rate, and the building dates from the late 1960s–1970s, so communal maintenance and external repairs are possible future costs. The heating is electric storage heaters rather than gas, which can mean higher running costs compared with gas-heated homes.
Overall, this is a practical, low-stress purchase: long lease, low council tax (Band B), parking and good transport/amenity links. It will suit a buyer who prioritises location and value, or an investor targeting let-ready accommodation with modest refurbishment potential.
2 bedroom flat for sale in Conway Street, Liverpool, L5 — £105,000 • 2 bed • 1 bath • 640 ft²
2 bedroom apartment for sale in Courtier Close, Liverpool, Merseyside, L5 — £150,000 • 2 bed • 1 bath • 722 ft²
2 bedroom flat for sale in Taylforth Close, Liverpool, Merseyside, L9 — £75,000 • 2 bed • 1 bath
2 bedroom apartment for sale in Conway Street, Liverpool, L5 — £114,950 • 2 bed • 1 bath • 410 ft²
2 bedroom apartment for sale in Vale Lodge, Rice Lane, Walton, Liverpool, L9 — £65,000 • 2 bed • 1 bath • 664 ft²
2 bedroom flat for sale in Vale Lodge, Rice Lane, Liverpool, L9 — £70,000 • 2 bed • 1 bath • 516 ft²










































































