Profitable Yorkshire village inn with boutique rooms, extensive outdoor seating and large parking.
Established food-led country inn with high-quality letting rooms
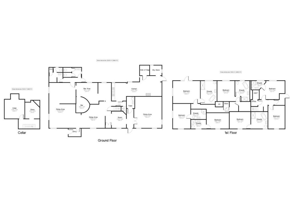
The Tickled Trout is an immaculately presented Yorkshire country inn in affluent Bilton-in-Ainsty, offered as a freehold going concern. The business delivers strong trading figures (T/O year end 31.03.25 £1,102,840 net of VAT) with adjusted net profits around £150,000, five boutique ensuite letting rooms and flexible dining spaces across numerous trade areas. Outside there is seating for circa 86 and off-street parking for about 35 cars, supporting both dining and accommodation trade.
Internally the property presents traditional character — flagstone floors, open fires, oak panelling — alongside a large commercial kitchen, walk-in fridge, cellar and ancillary stores. The first floor houses five high-quality letting bedrooms plus two additional staff/owner bedrooms. The layout allows clear separation of trade areas for different covers or private events, increasing trading versatility.
From an operator/investor perspective the location is a major strength: a sought-after village within the Golden Triangle, close to York, Wetherby and good road links to the A1(M), A59 and A64. Energy Rating C supports operational running costs. The sale offers an established, well-reviewed food-led operation with scope to maintain or grow turnover through driven marketing, events or modest investment in services.
Material considerations are straightforward: broadband speeds are reported slow, glazing was installed pre-2002, and the building walls are noted as cavity without added insulation (assumed). External amenity space is well arranged for trade but the site has limited private garden beyond customer seating. Prospective purchasers should review full accounts, business rates payable and trading licences; detailed inspections are recommended to confirm fabric and services before committing.
Pub for sale in N-526520 - Nelson Inn, 134 Ousegate, Selby YO8 8BL, YO8 — £315,000 • 1 bed • 1 bath • 3756 ft²
Pub for sale in N-526584 - Golden Lion, 69-70 Allhallowgate, Ripon HG4 1LE, HG4 — £425,000 • 1 bed • 1 bath
Pub for sale in The White Bear Inn, Main Street, Stillington, York, North Yorkshire, YO61 1JU, YO61 — £59,950 • 1 bed • 1 bath
Pub for sale in St Vincent Arms, Main Street
Sutton on Derwent, York, YO41 4BN, YO41 — £900,000 • 1 bed • 1 bath
5 bedroom hotel for sale in Main Street, Flaxton, York, YO60 — £395,000 • 5 bed • 5 bath • 3264 ft²
Pub for sale in Carlton Inn, Carlton Husthwaite, Thirsk, North Yorkshire, YO7 2BW, YO7 — £575,000 • 1 bed • 1 bath • 2831 ft²






































































































