Well-presented four-bed home near Pinderfields and Wakefield centre, no chain.
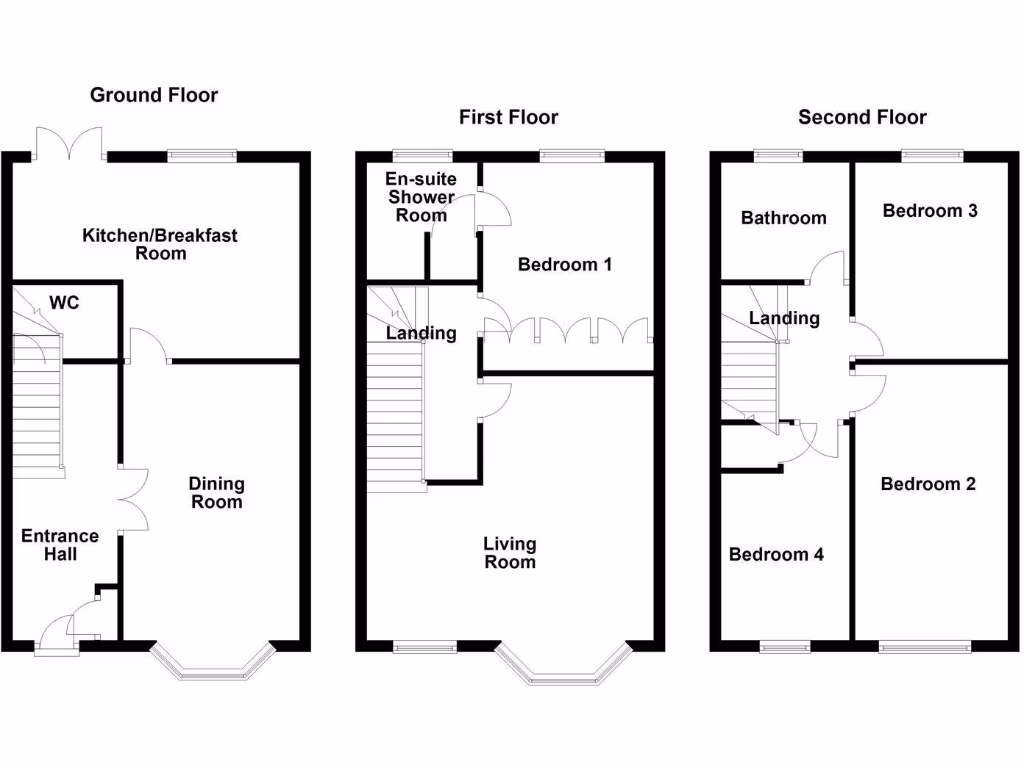
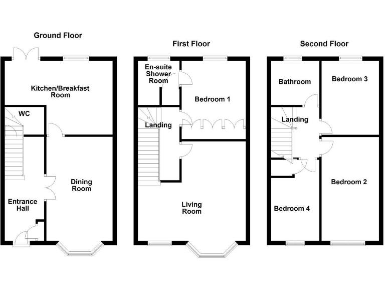
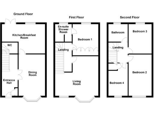
Four bedrooms over three floors with en suite to master
A spacious modern four-bedroom mid-terrace arranged over three floors, ideal for families or hospital staff seeking convenient access to Pinderfields and Wakefield city centre. The ground floor offers a formal dining room, a large kitchen/breakfast room with integrated appliances and granite surfaces, plus a useful downstairs WC and storage. The first-floor living room and master bedroom with en suite create flexible living for adults while three further bedrooms and a family bathroom occupy the top floor.
Externally the house offers low-maintenance frontage, a single garage with driveway parking and an enclosed rear garden with artificial lawn and paved patio — easy to maintain and good for outdoor dining. Built in the early 2000s, the home benefits from double glazing, gas central heating and an EPC rating of C79, reducing immediate energy concerns.
Buyers should note practical drawbacks: the plot is relatively small and the property sits in an area recorded with very high crime levels, which may affect suitability for some purchasers. There is an annual service charge of £200. While the finish is generally modern and well presented, buyers wanting larger private gardens or a quieter crime profile may prefer other locations.
4 bedroom house for sale in Tuke Grove, Wakefield, West Yorkshire, WF1 — £275,000 • 4 bed • 2 bath • 1314 ft²
4 bedroom detached house for sale in Wolfenden Way, Wakefield, WF1 3FA, WF1 — £499,000 • 4 bed • 2 bath • 1421 ft²
4 bedroom house for sale in Royal Troon Drive, Wakefield, WF1 — £285,000 • 4 bed • 2 bath • 1191 ft²
3 bedroom house for sale in Ashworth Square, Wakefield, WF1 — £260,000 • 3 bed • 2 bath • 1109 ft²
4 bedroom detached house for sale in Riverdale Avenue, Stanley, WF3 — £400,000 • 4 bed • 2 bath • 1357 ft²
4 bedroom town house for sale in Stafford Terrace, Wakefield, WF2 — £235,000 • 4 bed • 3 bath • 1195 ft²










































































