Compact modern flat near shops, transport and communal gardens.
Newly fitted modern kitchen and excellent decorative order
Allocated off-street parking space and communal gardens
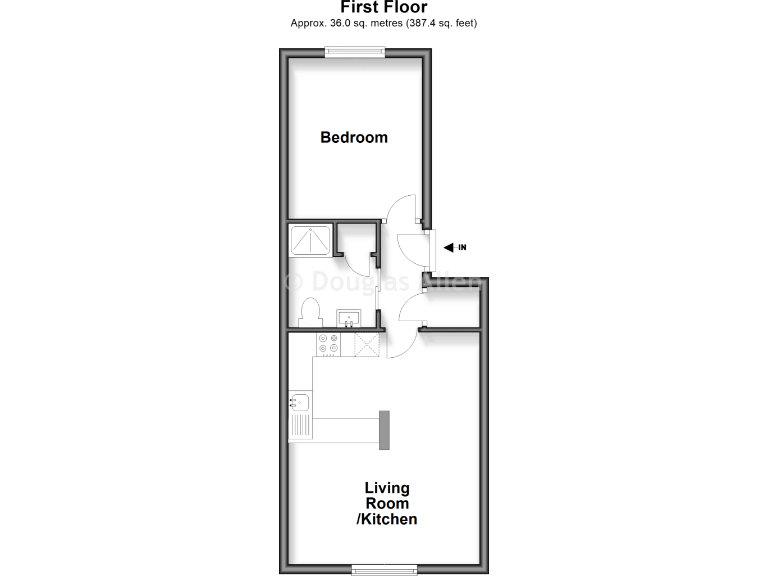
Compact one-bedroom — total area approx 304 sq ft
Double glazing installed post-2002; mid-terrace block
Leasehold with c.100 years remaining; service charge ~£1,250 pa
Electric storage heating; higher running costs likely
Very slow broadband in the area — poor for heavy remote work
Local recorded crime level is high — consider location suitability
Light-filled and well-presented, this one-bedroom flat in Oak Court is ready to move into. The open lounge with a newly fitted modern kitchen suits a single buyer or couple seeking a compact, low-maintenance home close to Chingford’s shops, cafés and transport.
Practical features include double glazing, an allocated parking space and communal gardens, plus a 100-year lease and no flood risk. At around 304 sq ft the accommodation is small but efficiently laid out; the bathroom and bedroom are serviceable and the property has been newly renovated throughout.
Buyers should note the property uses electric storage heaters and relies on electricity as the main fuel, which can raise running costs. Broadband speeds in the area are reported as very slow and the local recorded crime level is high; factor these into suitability for remote working and family needs. Service charge is around £1,250 per year and the tenure is leasehold.
For a first-time buyer or investor after a straightforward, ready-made flat in a well-connected part of Chingford, this apartment offers immediate occupation, rental potential and low upkeep. Confirm lease details, service charge and utilities before committing.
1 bedroom flat for sale in Elm Court, Chingford, E4 — £240,000 • 1 bed • 1 bath • 398 ft²
1 bedroom flat for sale in Lower Hall Lane, Chingford, E4 — £240,000 • 1 bed • 1 bath • 339 ft²
1 bedroom flat for sale in Westward Road, London, E4 — £210,000 • 1 bed • 1 bath • 751 ft²
1 bedroom apartment for sale in Lockwood Place, Chingford, E4 — £250,000 • 1 bed • 1 bath • 490 ft²
1 bedroom flat for sale in Ashton Court, Chingford, E4 — £275,000 • 1 bed • 1 bath • 516 ft²
1 bedroom flat for sale in Ashton Court, Connington Crescent, Chingford, E4 — £310,000 • 1 bed • 1 bath • 768 ft²


















































