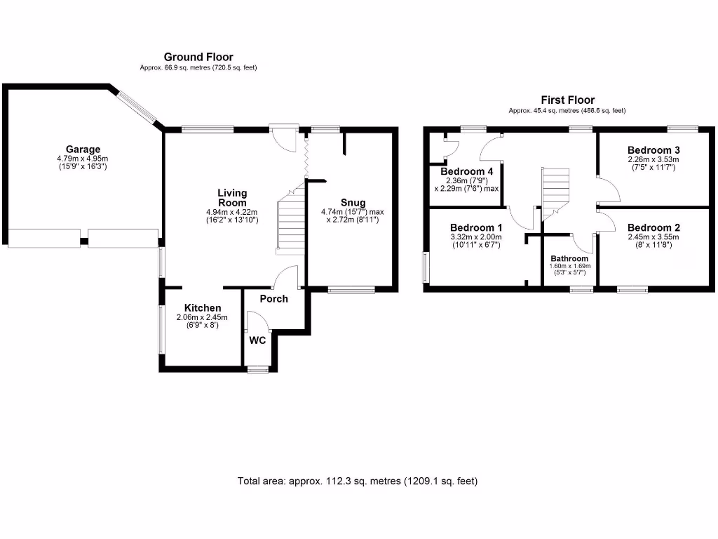
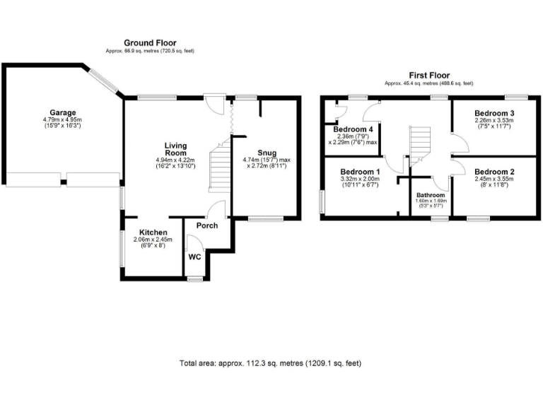
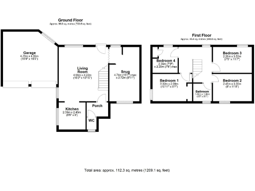
**Standout Features:**
- 4 spacious bedrooms
- 2 reception rooms
- Double garage and driveway parking
- Central location with easy access to amenities
- Significant renovation potential
**Notable Concerns:**
- Requires updating and modernization
- Dated interior decor
- Some exterior damp patches noted
Nestled in the heart of Crediton, this charming end-of-terrace home offers a rare opportunity to own a spacious property close to the vibrant High Street. With four well-sized bedrooms and two inviting reception rooms, this residence boasts generous living space perfect for families or investors looking to capitalize on its potential. The double garage and driveway parking are distinct advantages, providing much-needed space in this central location.
While the property requires some updating, it presents an excellent canvas for renovation enthusiasts to create their dream home. The classic cob and stone exterior hints at its period character, while the possibility of integrating the garage space into the main accommodation could significantly enhance its value (subject to permissions). Enjoy easy access to local amenities, including shops, schools, and leisure facilities, all within walking distance.
With a council tax Band B, this property is not only a fantastic investment but also an opportunity to live in a serene yet accessible town environment. Act now to explore the potential of this unique gem and envision the possibilities it holds!
3 bedroom terraced house for sale in High Street, Crediton, EX17 — £210,000 • 3 bed • 1 bath • 966 ft²
3 bedroom end of terrace house for sale in High Street, Crediton, Devon, EX17 — £260,000 • 3 bed • 2 bath • 715 ft²
3 bedroom town house for sale in Parliament Street, Crediton, EX17 — £185,000 • 3 bed • 1 bath • 786 ft²
3 bedroom terraced house for sale in Town Park, Crediton, Devon, EX17 — £255,000 • 3 bed • 1 bath • 874 ft²
4 bedroom town house for sale in Parliament Street, Crediton, EX17 — £325,000 • 4 bed • 1 bath • 1324 ft²
4 bedroom detached house for sale in 3 Hawthorne Road, EX17 2DF, EX17 — £350,000 • 4 bed • 2 bath • 1001 ft²






























































